查看完整案例


收藏

下载
项目位于武汉光谷一高新产业园内,主要作为园区的公共展厅和共享会客厅功能空间。围绕这个建筑都是高层、均质的办公空间,体现着生产最大化的、坪效最高的要求——类似柯布西耶在《走向新建筑》里鼓吹的“居住的机器”的形态,方正的体量,密集的窗户,多米诺体系的无限延展——是重复而无趣的。好在建筑设计公司给与了这个展厅稍微不同的椭圆形外观,意图在方盒子体量群中植入一个异型,其内空也达到了9米的高空。
The project is located in Wuhan Optics Valley High-tech Industrial Park, mainly used as a public exhibition hall and shared living room functional space in the park. The buildings surrounding this building are high-rise, homogeneous office spaces, reflecting the requirements for maximum production and maximum efficiency—similar to the form of the “living machine” advocated by Le Corbusier in “Towards a New Building”, square volume, dense windows, and the infinite extension of the domino system—which is repetitive and uninteresting. Fortunately, the architectural design company gave this exhibition hall a slightly different oval appearance, intending to implant an alien shape in the square box volume group, and its inner space also reached a height of 9 meters.
设计掌握了一个度:并没有把所有的空间功能填满;而是依托这个半毛坯的空间,为后面的一些不确定功能,打一个基底。随着时间的推移,未来这里拥有更多的可能性,使空间具有可变,拓展的可能。
The design masters a degree: it does not fill all the space functions; Instead, relying on this semi-blank space, it lays a foundation for some uncertain functions behind. With the passage of time, there are more possibilities here in the future, making the space variable and expandable.
▼一层大堂概览,overview of the lobby
The function is not so specific, and the space is very empty, a bit like the life of everyone surrounded by boring videos such as TikTok today, boring and empty. This reminds me of Malevich’s manifesto of supremacism: “The visual phenomena of the objective world are meaningless in themselves, meaningful things are emotions, and meaningful emotions have nothing to do with the environment in which they evoke.” This kind of emotional supremacy is the pursuit of creative art.
▼空旷的一层大堂,an airy lobby
身处这个空间的情感是什么呢?我觉得是一种“向上”的情绪:原始的两层楼板空间,在内部交通上并不直接连通,应该有一种手段让人能到达,能连通,能探究身在高处的感觉。而身在高处,又是那种“悬浮感”最让人着迷。
What is the emotion of being in this space? I think it’s an “upward” mood: the primitive two-story space, which is not directly connected to internal traffic, should have a means for people to reach, connect, and explore the feeling of being on a high place. And being in a high place, it is that “sense of levitation” that is most fascinating.
▼如同漂浮在空中一般的空间盒子,the box as if it’s floating in the air
功能上联系一层二层的折板楼梯,成为这个空间中向上情绪的直接表达,从顶板悬挂下来的金属网将楼梯的体量立体化表达出来。在二层和三层中间再植入一个会议功能的盒子,巧妙的结构斜撑,让这个盒子如同悬浮在空中。但是二层并不是终点,继续踏上沿墙的悬挑楼梯走向三层的围廊,一段桥梁横架在高空之上。
Functionally, it is linked to the folded plate staircase on the first and second floors, which becomes a direct expression of the upward mood in this space, and the metal mesh suspended from the top plate expresses the volume of the staircase in three dimensions. In the middle of the second and third floors, a conference function box is implanted, and the clever structure is braced, making the box seem to be suspended in the air. But the second floor is not the end, continue to walk along the cantilevered staircase along the wall to the third floor of the corridor, a section of bridge crossed above the sky.
▼折板楼梯,the folded plate staircase
新的植入,主题色是橙色:会议悬浮盒子、楼梯、扶手等都被赋予橙色,它与我们刻意保留的原始混凝土梁板柱形成了鲜明的新旧对比、质感对比、颜色对比。
The new implant, the accent color is orange: the meeting floating box, stairs, handrails, etc. are given orange, which forms a sharp contrast between the old and the new, the contrast of texture and color with the original concrete beams and slabs that we deliberately preserve.
▼楼梯扶手近景,close shot of the handrill
在楼板和地板之间,感觉缺少一些呼应;我对概念草图的否定又否定,偶然得来一个联系——“天与地”的X形。好吧,就把这个无功能的X形给与这个空间吧——它是神来之笔,一瞬间让空间灵动起来,它同时成为丈量这个空高的一个“尺度”。
Between the floor and the floor, it feels like some echo is missing; My negation and negation of the conceptual sketch coincided with a connection – the X-shape of “heaven and earth”. Well, give this non-functional X-shape to this space – it is a divine pen, which makes the space move in an instant, and it also becomes a “scale” to measure this empty height.
▼衔接天花和地板之间的X形构架,the X-shape structure
两个锥形的圆筒,一个白色,一个克莱因蓝,貌似支撑起二层的楼板,其实只是空间对比的游戏。比起对比,空间游走和对望的游戏更有意思,也是刻意为之:从各处停留平台互相对望,如山之重峦叠嶂。
Two conical cylinders, one white and one Klein blue, seem to support the floor slab of the second floor, but in fact it is just a game of spatial contrast. The game of space wandering and looking at each other is more interesting and deliberate than the comparison: from everywhere to stop at the platform to look at each other, like mountains and mountains.
▼锥形圆筒,the conical cylinders
当所有的线条、颜色、体块自由地组合起来,体现出斜线与穿插的特征,从而带来不稳定的趋势,顺势向彼得·艾森曼的“解构主义”致敬。也算是把“至上主义”向建筑空间“物化”走的更近一步。空间,只是表象;情绪,才是关键。
When all lines, colors, and volumes are freely combined, reflecting the characteristics of diagonal lines and intersperses, thus bringing about an unstable trend, it pays homage to Peter Eisenmann’s “deconstructionism”. It can also be regarded as taking “supremacy” to the “materialization” of architectural space. Space is just appearance; Emotions are the key.
▼走廊空间,the corridor
▼仰视天花,look up to the ceiling
▼一层平面图,first floor plan
▼二层平面图,second floor plan
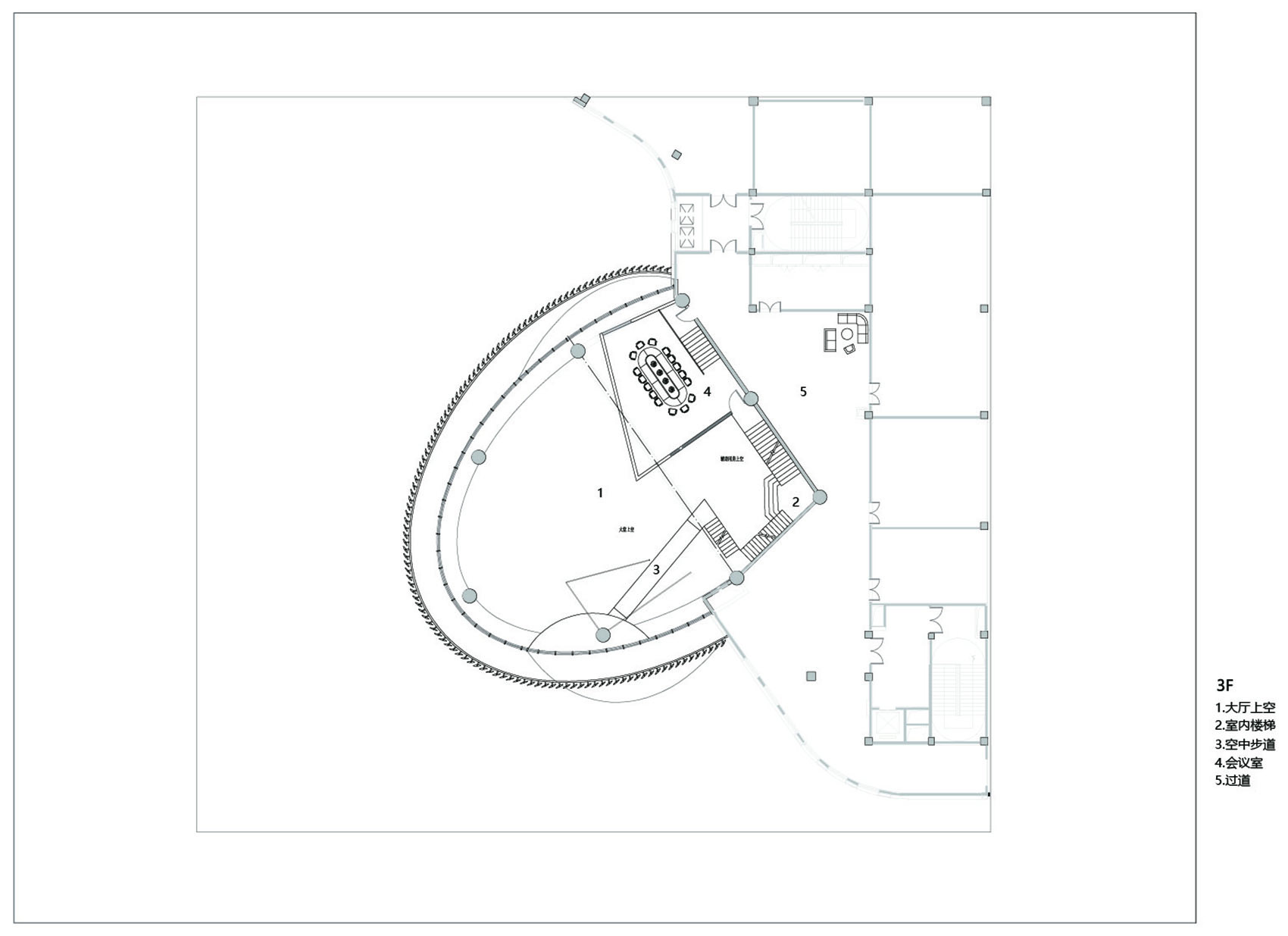
▼三层平面图,third floor plan
项目名称:武汉高科医疗器械先进制造园共享客厅室内设计
设计方:UAO瑞拓设计
项目设计 & 完成年份:2022/10/1
主创及设计团队:李涛( 胡炳盛、龙可成、阚文慧、姜海洋)
项目地址:武汉市东湖新技术开发区高新二路378号
建筑面积:919㎡
摄影版权:赵奕龙
更多关于他们:
UAO瑞拓设计
客服
消息
收藏
下载
最近



















