查看完整案例


收藏

下载

翻译
Architects:Escala Arquitectos, Michan Architecture
Year :2020
Photographs :Alexandra Bové
Design Team : Narciso Martinez, Benjamin Espindola, Emilio Gamus, Isaac Michan
M/E/P : RAGER Rafael Barra
Structural Design : Arturo Rosales + MdO
City : Mexico City
Country : Mexico
Located in front of the iconic Parroquia de la Santa Cruz del Pedregal by designed by Antonio Attolini Lack on the corner between Boulevard de la Luz and Av. de las Fuentes at Jardines del Pedregal, OKU opened its second restaurant in Mexico City.
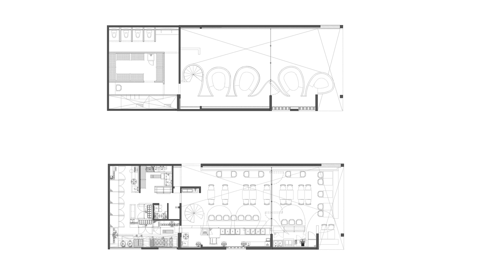
The interior layout takes advantage of the height and elongates the proportions of the space. The kitchen and services are situated in the back area, leaving the rest of the open space for dining and bar.
The bar and sushi bar works as the storefront of the long space. On its upper part, a mezzanine is created with tables and a corridor at the back. This mezzanine generates individual tables that are hung from the existing structure, proposing a unique dining experience. the structure is composed of light steel members that are welded into the existing steel structure of the building.
Cylindrical lighting elements are hung from the ceiling, merging the electric cables with the structural elements of the mezzanine. On the upper dining area, the drop ceiling is interrupted, leaving exposed the steel structure to have more height, generating a sensation of cutting and pasting the ceiling into the tables.
The cladding material is a combination of pinewood, gfrc concrete panels, and pigmented stucco, producing a light and open atmosphere that plays with polished and raw finishes.
▼项目更多图片
客服
消息
收藏
下载
最近






















