查看完整案例

收藏

下载

翻译
Architects:Studio Arquiteturas
Area :125 m²
Photographs :Guilherme Pucci
Manufacturers : AutoDesk, Indusparquet, Brick Studio, By Kamy, Carbono Design, Coral, Deca, Fernando Jaeger, Google, Marcenaria Pimentel, Portobello, REKA, Studio Vitty, Wooding DesignAutoDesk
Lead Architect :Luciana Uras / Evelyne Grande
Design Team : Cinthya Marques, Leondenes Furtille
City : Vila Ipojuca
Country : Brazil
A young executive man from São Paulo is the resident of this 125m2 apartment. The apartment 73 at Edifício Flora was project by Studio ArquitetUras. "The client was incredible about the process of creation. He arrived at the office without images. We tried to understand his personality and lifestyle" explains the architect Luciana Uras.
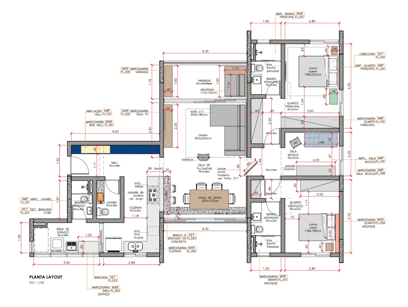
The surprises of this apartment start on the entrance hall. The space with a blue bar is an invitation to visit the apartment that has a lot of details on the walls, floor and ceiling.
The primary cores, lots of wood and concrete make an integration hall, kitchen, TV room and dining room. The furniture consists of contemporary national design.
The challenges were on the construction. The number of differents suppliers and the short time for execution. Every detail thought of in the office made all the difference to the final result", says the architect Evelyne Grande.
The big highlight is the toilet. A glass translucent door is already unusual for a bathroom. “We brought the neighboring Vila Madalena into the toilet with arts by Luís Bueno and Gráfica Fidalga" explained the architects. Scenery for many selfies!
▼项目更多图片
客服
消息
收藏
下载
最近


























