查看完整案例


收藏

下载
项目场地位于柏林快速发展的Schöneberger Linse区与EUREF-Campus区的入口,从环城路与城市快速路远远望去,新建筑与一侧Jürgen Sawade设计的办公楼共同组成了令人瞩目的城市地标。这栋大楼由Werdauer Weg 3 Immobilien Projektentwicklungs GmbH & Co. KG委托设计,功能涵盖酒店与办公,目前由Debeka-Berlin和the niu酒店共同使用。
Viewed from a distance – from the Berlin Ring or the city motorway – the new building and its hitherto solitary neighbouring building by architect Jürgen Sawade merge to form a striking ensemble at the entrance to the rapidly developing new Berlin quarters “Schöneberger Linse“ and “EUREF-Campus”. The new building, commissioned by Werdauer Weg 3 Immobilien Projektentwicklungs GmbH & Co. KG combines offices and hotel space, which has now been occupied by the users – Debeka-Berlin and hotel brand “the niu”.
▼从东南方向远眺,bird‘s eye view from northeast
▼从西南方向远眺,bird‘s eye view from southeast
这栋酒店兼办公功能的大楼位于Schöneberg区,与场地内Jürgen Sawade设计的高层办公楼Platinum互为“姊妹楼”,在构图上相互补充。建筑师参照相邻大楼的特征设计了内外颠倒的阶梯退台。新楼呈对称结构,两个制高点分别与Werdauer路及南侧道路毗邻。从五层向上,六层至十一层都采用了“每两层一退台”的结构,呼应了一旁的Platinum大楼。
The hotel and office building in Berlin’s Schöneberg district is conceived as an architectural sister building to “Platinum” the office high-rise by architect Jürgen Sawade. As a complementarily developed figure, it picks up on the cascading of the neighbouring building and reverses its movement from the exterior to the interior so to speak. The structure forms two symmetrically arranged high points, one north of the Werdauer Weg and one to the south. From a common five-story base, they are each staggered upwards in two-storey steps to a height of 11 storeys – analogous to the “Platinum” building.
▼从Sachsendamm街道出发的视角,view from the Sachsendamm street
▼东立面,east facade
▼从中间庭院看北侧,view to the north from the courtyard
新建筑的落成修补了自1990年代以来破碎至今的城市肌理,两栋建筑组成的整体构成了棱形的平面,勾画出Schöneberger Linse区的结构特征。朝西布置的大楼体块为相邻的历史建筑——New Twelve Apostles教堂庭园与Paul Egeling设计的礼拜室留出了充足的空间,并作为教堂的背景展示出新的城市风貌。
The new building retroactively embeds the previously context-free building from the 1990s into the urban fabric. Together, the two buildings form an urban ensemble whose lenticular floor plan reflects the structure of the neighbouring urban development area of the “Schöneberger Linse”. Its west-facing silhouette frees the adjacent New Twelve Apostles’ churchyard with its chapel by Paul Egeling, which is listed as a historic monument, from its backyard situation and gives it a new urban presence.
▼大楼与历史庭院,the building and the historical courtyard
▼大楼与一侧的历史建筑,the building and the historical church
整齐统一的浅色砖砌立面赋予建筑强烈的雕塑感,奶油色与米黄色的搭配与Platinum大楼的花岗岩立面相协调,砖的运用则源于街区中的纪念碑。大楼表面均匀分布的窗户构成了水平与垂直的网格,塑造出极具抽象感的立面图像。外表皮上,建筑师以浅浮雕的手法刻画了诸多细节。窗洞深深嵌入墙壁,立面的凹陷带来强烈的光影变化。此外,遮盖收缩缝的涂层在墙壁的横纵交界处形成了细微的凹口,通过富有韵律的重复强化了立面的浮雕感。除去多余的装饰,建筑师通过这些结构性的细节赋予墙体自然的美学处理。
The uniformly light brick façade strengthens the sculptural character of the new building. With its cream-beige colouring, it refers back to the granite of the “Platinum” building. In its materiality, it also ties in with the brick of the neighbouring monument. Windows evenly distributed over the surface create an abstract façade image as a web of vertical and horizontal lines. The plasticity of the building’s exterior, conceived as a relief, develops from the details. The details are not ornamental, but arise from their structural function. Window openings cut deeply into the wall lend the façade a depth that creates a changing play of light and shadow. The cladding necessary to conceal the expansion joints results in subtle recesses in the wall at the interfaces between vertical and horizontal bands. In their regular repetition, they become a further structuring element in the relief of the façade, recalling the aesthetic use of wall cramps or bossage.
▼立面细节,the facade details
大楼位于两个中央火车站之间,为入驻其中的两家公司提供了十分便利的位置。大楼的南侧是Debeka-Berlin的德国总部办公室,北侧是 the niu酒店,共包含了约300个房间。
The two occupants of the new building benefit from its well-connected location between two central train stations: the southern section is home to the national headquarters of Debeka-Berlin, while the northern section houses a hotel by the company “the niu” with almost 300 rooms.
▼北侧的酒店入口,north facade, entrance of “the niu”
▼总平面,the general plan
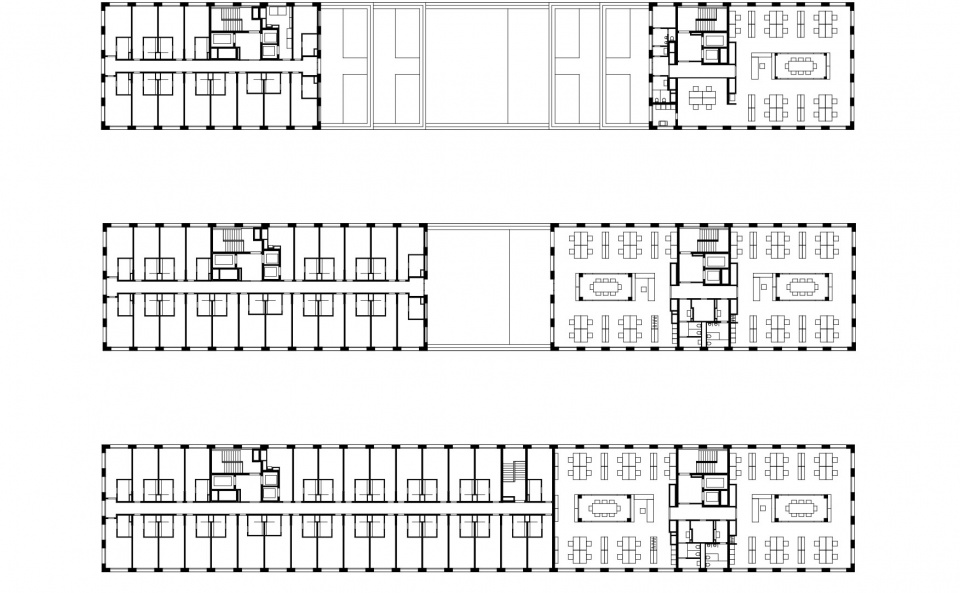
▼平面,the plans
▼立面,the elevation
▼剖面,the section
Building: Hotel- und Bürogebäude Werdauer Weg 3
Location: Werdauer Weg 3, D-10829 Berlin
Client: Werdauer Weg 3 Immobilien, Projektentwicklungs GmbH & Co. KG
User: the niu Hotels, Debeka
Dimensions: NF 8.450 m² BRI 46.560 m³
Completion: 2020
Architect: Max Dudler,
Project managers: Alexander Bonte, Erik Lippold (stellv. PL)
Team: Miriam Barona, Hera Kastanaki, Liliya Lukynchuk, Clara Wellbergen
Construction management: Ed. Züblin AG
Structural engineering: Bornscheuer Drexler Eisele GmbH
Housing technology: Ingenieurbüro ASTARA GmbH
Fire safety concept: lenzenarchitekten
Landscape planning: TDB Landschaftsarchitektur, Thomanek Duquesnoy Boemans, Partnerschaft
客服
消息
收藏
下载
最近
















