知末
知末
创作上传
VIP
收藏下载
登录 | 注册有礼

青岛院士港办公楼室内设计

2017/07/08 00:00:00
查看完整案例
微信扫一扫
收藏
下载
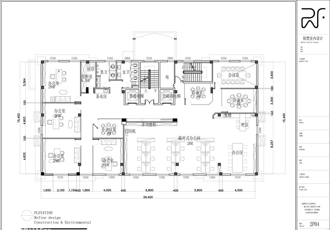
青岛院士港办公楼室内设计-0
青岛院士港办公楼室内设计-1
青岛院士港办公楼室内设计-2
大会议室
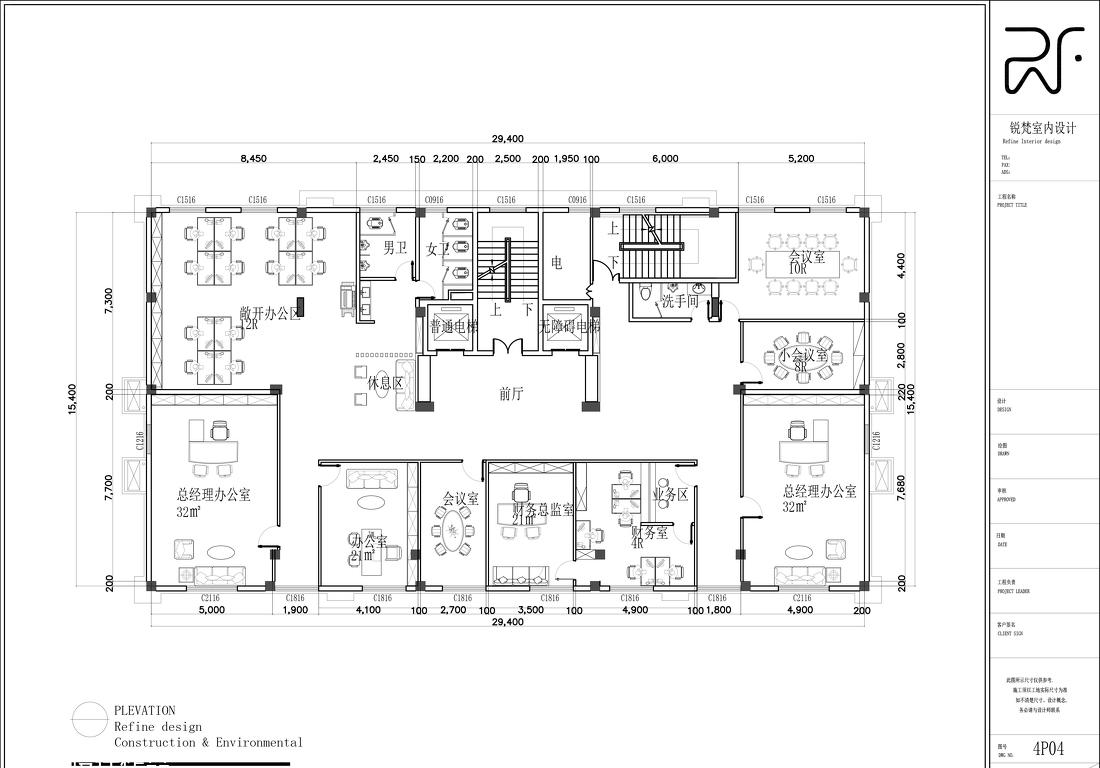
青岛院士港办公楼室内设计-4
电梯厅
青岛院士港办公楼室内设计-6
水吧区
青岛院士港办公楼室内设计-8
敞开办公区
青岛院士港办公楼室内设计-10
袁隆平院士办公室
青岛院士港办公楼室内设计-12
中型会议室
青岛院士港办公楼室内设计-14
电梯厅
青岛院士港办公楼室内设计-16
小会议室
青岛院士港办公楼室内设计-18
董事长办公室
青岛院士港办公楼室内设计-20
敞开办公区
青岛院士港办公楼室内设计-22
青岛院士港办公楼室内设计-23
会客室
青岛院士港办公楼室内设计-25
宴会厅
青岛院士港办公楼室内设计-27
接待室
青岛院士港办公楼室内设计-29
青岛院士港办公楼室内设计-30
门厅
青岛院士港办公楼室内设计-32
青岛院士港办公楼室内设计-33
青岛院士港办公楼室内设计-34
青岛院士港办公楼室内设计-35
青岛院士港办公楼室内设计-36
青岛院士港办公楼室内设计-37
青岛院士港办公楼室内设计-38
青岛院士港办公楼室内设计-39
青岛院士港办公楼室内设计-40
青岛院士港办公楼室内设计-41
展厅实景照片
青岛院士港办公楼室内设计-43
一层前厅
青岛院士港办公楼室内设计-45
展厅入口
青岛院士港办公楼室内设计-47
展厅
青岛院士港办公楼室内设计-49
青岛院士港办公楼室内设计-50
青岛院士港办公楼室内设计-51
青岛院士港办公楼室内设计-52
青岛院士港办公楼室内设计-53
展厅鸟瞰图
青岛院士港办公楼室内设计-55
青岛院士港办公楼室内设计-56
一层大会议室
青岛院士港办公楼室内设计-58
二层前厅
青岛院士港办公楼室内设计-60
敞开办公区
青岛院士港办公楼室内设计-62
办公室
青岛院士港办公楼室内设计-64
小会议室
青岛院士港办公楼室内设计-66
四层前厅
青岛院士港办公楼室内设计-68
五层茶室
青岛院士港办公楼室内设计-70
五层会客室
青岛院士港办公楼室内设计-72
五层宴会厅
青岛院士港办公楼室内设计-74
袁院士办公室
青岛院士港办公楼室内设计-76
青岛院士港办公楼室内设计-77
青岛院士港办公楼室内设计-78
青岛院士港办公楼室内设计-79
青岛院士港办公楼室内设计-80
南京喵熊网络科技有限公司 苏ICP备18050492号-4知末 © 2018—2020 . All photos and trademark graphics are copyrighted by their owners.增值电信业务经营许可证(ICP)苏B2-20201444苏公网安备 32011302321234号
客服
消息
收藏
下载
最近