查看完整案例


收藏

下载
Wutopia Lab 受高和资本邀请将一座9层的办公大楼转换成融合生活和社交的新型办公社区。旧建筑位于上海的东北角,是典型工业经济向服务经济转变过程中产物。在这个项目中,Wutopia Lab重新思考了改造旧建筑的方法。
Wutopia Lab was invited by Go High Fund to transform a 9-story office building into a new office community that blends life and sociality. Located in the northeast corner of Shanghai, the old building is a typical product during the transition from a typical industrial economy to service economy. In this project, Wutopia Lab rethought the way to transform old building, by simply draping it with a new overcoat.
▼鸟瞰建筑,
aerial
view
▼入口的引子,entrance primer
▼建筑入口,entrance
▼入口雨棚,层叠的云朵与原来的玻璃雨棚共存,The entrance canopy, the overlapping clouds coexist with the original glass canopy
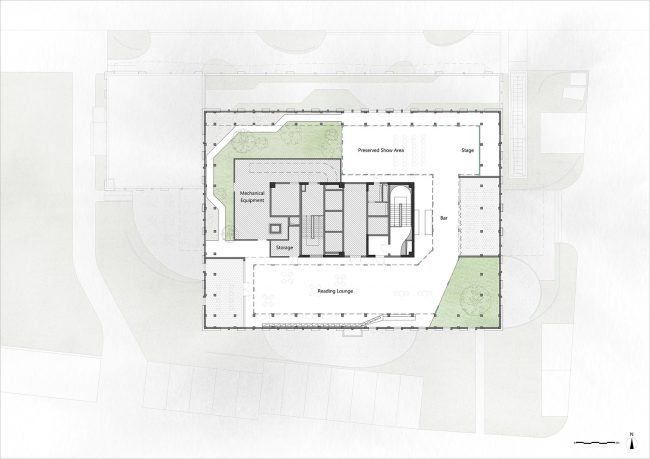
一层大堂由可定制社群服务的DNA Café&More, 以Lobby Hobby的共享大堂的方式运营,在传统大堂的基础上融入社交、办公、会议、短休、康娱、零售六大场景和多种业态形式,把司空见惯的楼宇大堂变成一个复合的办公社区中心。二层整合了共享书吧、共享会议室还有共享健身仓来强化一楼的场景应用。高和云峰在办公区域则推出了HIWORK,一种通过悬挂活动家具来应对不用办公需求可以灵活变化办公场景的新型联合办公模式。顶楼露台设有轻餐酒吧、休息区和舞台秀场。
Wutopia Lab has identified three key moments in the office, a multifunction lobby, a co-working place and a rooftop garden. The first floor is designed as a flexible event space, operated by DNA Café&More, a customizable community service, operated by Lobby Hobby’s shared lobby, which integrates social, office, conference, short break, recreation, retail, six formats together based on a traditional lobby. The second floor integrates shared book, shared meeting rooms and shared gyms to enhance the scene application on the first floor. Go High Fund launched HIWORK in the office area, a new co-working mode that can flexibly change the office scene by hanging the movable furniture to meet the needs of the office. The top floor terrace features a light bar, lounge area and stage show. The public functions at the top and bottom also ensure a multidimensional experience for the various users of the building.
▼一层大堂概览,lobby over view
▼从大堂回望入口,Looking back to entrance from the lobby
▼一层休息区域,Lounge
▼光滑的金属屋顶倒映出铝板化作的山水,The smooth metal roof reflects the landscape of the aluminum plate
▼通向二层的楼梯,stairs to second floor
Wutopia Lab用穿孔铝板作为笔墨,用写意山水的方式把立面,景观,大堂,办公和屋顶串联起来形成一幅立体的完整连续的青绿山水长卷。
Wutopia Lab uses perforated aluminum plates as pen and ink to connect the facade, landscape, lobby, office and roof in a way that creates a three-dimensional, continuous stream of clouds.
▼楼梯间,staircase
▼电梯厅,Elevator hall
▼二层书吧,Reading bar on second floor
山水装置以最小的构件支撑,像一层漂浮在旧建筑上的面纱,仿佛山水都要动起来。有限的预算、谨慎的城市规划、周边社区居民的干涉,把这个明显的叙述剪成了片段。相较于正面硬抗周围的干涉,我们希望通过新旧立面不接触的设计手法表现出的一种抽离的哲学态度。我们在入口保留了一个片段,一则短小的山形铝板整合了门房和绿化,像一个抽象的盆景,作为这个设计的引子。
The landscape installation is supported by the smallest components, like a layer of veil floating on the old building, as if the landscape is alive. Limited budgets, urban planning rules, and interference from neighbors have cut this obvious narrative into fragments. Compared with the the frontal hard resistance, we chose to show a philosophical attitude of detachment through the design method in dealing with the new and old façade. We kept a fragment at the entrance, it’s a short mountain-shaped aluminum panel integrated the doorway and greenery, like an abstract bonsai, as an introduction to this design.
▼屋顶花园,roof garden
▼穿孔铝板的山水与城市景观构成了精彩的片段,The landscape of the perforated aluminum plate and the urban landscape constitute a wonderful fragment
▼俯瞰屋顶,Overlooking the roof
Wutopia Lab在上海的旧工业区里用穿孔铝板创作了一个立体的青绿山水。
Comprising a sequence of different layers of cloud, developed around the lobby, reading room and rooftop garden, Wutopia Lab created a three-dimensional green landscape with perforated aluminum panels in the old industrial area of Shanghai.
▼首层平面图,first floor plan
▼屋顶平面图,roof plan
▼大堂铝板结构平面图,lobby plan
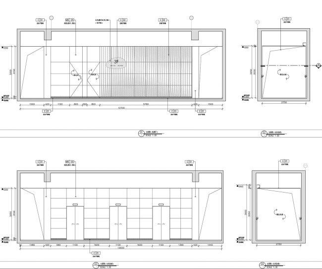
▼标准层电梯厅剖面,Standard floor elevator hall sections
项目信息
项目地点:上海市杨浦区
建筑面积:9层,10372.5平方米
建筑设计:Wutopia Lab
主创建筑师:俞挺
项目建筑师:张朔炯
设计咨询:一栋|ArchUnits
照明咨询:张晨露
摄影师:CreatAR Images
业主单位:高和资本
施工图:何龙龙、成剑水
施工单位:上海室内装饰(集团)有限公司
Credit
Location:Shanghai, China
Project Year: 2018.07
Area:10372.5sqm
Design Firm:Wutopia Lab
Chief Architect:YU Ting
Project Architect:Shuojiong ZHANG
Design Consultant:ArchUnits
Lighting Consultant:Chloe ZHANG
Photographer:CreatAR Images
Client:Go High Fund
Construction Drawing: Longlong HE, Jianshui Cheng
Construction Unit: Shanghai Interior Decoration Group Co., Ltd.
客服
消息
收藏
下载
最近

























