查看完整案例


收藏

下载
西安陕建雲玥府社区中心 ShanJian Moon Mansion CommunityCenter,Xian 中国,西安 XiAn, China
矛盾本身就孕育着生机。
--丹下健三
背景:
项目坐落于西安市港务区,如何借由西安历史文化的优势,挖掘自身的文化价值;传统的空间与秩序如何在现代语境下融入到当代建筑中,成为本案试图解决的主要问题。方案着眼于空间的秩序与色彩,我们试图用代表着现代化的灰白色金属材料与传统的院落式空间来一次“碰撞”,于这两相矛盾的元素中寻找新的可能性。
空间:
方案位于社区总体规划的南侧大门处,作为社区南北轴线的门户,沿轴线依次布置街边公园、转角景墙、水院、社区中心、下沉会所及休憩亭,形成多进院空间布局。
△转角景墙夜景
△水院近景
△鸟瞰图
受用地条件限制,主体距离道路约 50m,因此景观上采用景墙和绿篱等隔断布置前场,形成小型绿地公园以拉近人与建筑的距离。通过廊架、景墙围合形成中央水景,在归家动线中增加迂回曲折的节点,用传统的空间秩序为归家者创造仪式感与归属感。
△空间概念生成
△下沉庭院
下沉庭院形成更加具备沉浸感的空间,在平面方向的院落式空间中丰富垂直方向上的空间层次。在四面围合的下沉庭院中,将景观借由玻璃幕墙延申至建筑中,建筑与自然形成了更为紧密的联系。
△地下大堂
布局
社区中心整体采用中轴对称的布局,轴线上将主要的空间相互交织,功能空间布置在两侧。从雨棚进入大堂,首先引入眼帘的是贯通一层负一层的通高区域,直通负一层展示大厅,作为对核心空间的引导。通过西侧景观折角楼梯达到地下,首先进入核心的展示区。地下平面以展示区和下沉庭院为中心,东侧布置水吧、休闲洽谈、儿童活动,北侧布置办公室、辅助功能,西侧布置健身区、国学馆,各功能区串联形成游览环路。环路围绕下沉庭院,所有活动空间面向庭院打开,将日光与景观引入室内,增加人与自然的联系。
△旋转楼梯
△轴测图
序列
在空间序列营造上,我们创造了多个停留的空间,每个空间如同胶片中定格的画面,观赏者可以通过这多层次的画面,串联出其中的意境与情绪。
△路径流线图
望楼
隔园相望,水院入口被景墙遮挡,形成中式含蓄的出入口关系。建筑二层错落布置的格栅于景墙之上显现。灰色墙体与白色格栅的“碰撞”表现出既现代又传统的特质,呈现出独特的标识效果,是与繁华都市的对话。
△沿街面远望,入画。开放性的街边公园在建筑和道路之间留有了一片舒适的缓冲带,用轻松自然的语言引导人流。踏入园中,便开始了与城市的别离。
△水院
归园
一面照壁成为空间气氛转折的起点,顺墙而入,便是层层叠叠的玻璃砖墙于水波中闪耀,形成一条半虚半实的甬道。光影模糊了建筑的形体,复行数十步,豁然可见一风雨长廊通向那开敞的水院,而此刻城市的喧嚣早已抛之脑后。
△玻璃砖景墙
登堂
移步入院,水院之北仿佛坐落着一方印玺,银灰色纤细的立柱浮于水面之上,划分出一片檐下的空间,建筑和自然的界限于此淡化。缓步向前,社区中心的如画卷般徐徐展开,灰色铝板搭配型材形成的基座托起二层的白色体量,营造出稳定的空间感。白色格栅造型自城墙纹路提炼而来,取其形制,用错落的、虚实变化的铝板构件去引伸城墙砖之美。构件之间拼接细致,重复排列,依着光影呈现变化的韵律效果,方正雅致又不失细节品质。
△水院夜景
△格栅近景
△格栅近景
堂中之艺术装置,贯通上下,如梦幻般的丝线在光中流动,让人不禁想去触摸,不禁想去前方的庭中望一望。
△地下大堂
△地下大堂
观庭
移步换景,当步入下沉庭院之时,便是再度置身于自然之时。一座白色旋转楼梯再度将注意力引导向庭院的景观平台。草木之间、动静之间,人们拾级而上,漫步其中,宁静自然。
△旋转楼梯
品园
于亭中回望,一庭一院、一楼一园已经自成天地。
△庭下回望
细节
银白色雨棚立柱为铝板与铝型材的组合处理,单块铝板尺寸约 1200X1000mm,采用对缝的拼接方式,型材采用更大块的尺寸作为门套,与铝板形成 1:2 的模数关系。
△雨棚立柱节点
东西两侧山墙面采用错缝的拼接方式,铝板尺寸约 600X1200mm,并在山墙面底部与南北两侧大面形成 1:2 的收边关系,规整有序。
△山墙面分缝节点
二层铝格栅为玻璃幕墙之外的另一层表皮设计,横向格栅间距 120mm,采用角钢固定于竖向龙骨之上。为保证横向格栅的连续性与立面的纯粹简约,将格栅龙骨与玻璃幕墙立柱相重叠,并采用相近的颜色以隐去其对立面的影响。为减少横向格栅交接点数量,依据玻璃幕墙划分关系将格栅分为 6000mm 一段,并采用插芯嵌套的方式串联,将缝宽控制在 3mm 以内。
△格栅节点
白色铝合金装饰方管采用自攻自转螺钉于方管内固定,并用外侧盖板的方式隐藏固定节点。铝合金装饰方管保证自身效果的同时,具有控制格栅间距防止格栅弯折的功能。
△铝合金装饰方管节点
下沉庭院墙面采用石材与铝板组合的方式来控制覆土带来的立面比例失衡的问题。
△下沉庭院墙面构造节点
结语
建筑,历史,人,三者之间的关系,一直是建筑学与社会学探索的课题,亦有许多哲学上的思考和解释。历时近一年,本案于平地之间,将人文与自然相互交织,通过石材铝板玻璃等元素的碰撞,用建筑语汇表达当代语境下人们的生活状态。灰色与白色铝板是建筑立面形象的主要基调,是极具现代性的建筑语汇。而建筑空间秩序却是传统的院落式布局。我们试图用这样带有“碰撞”关系的组织方式去复刻传统的空间旋律。
△施工现场
技术图纸
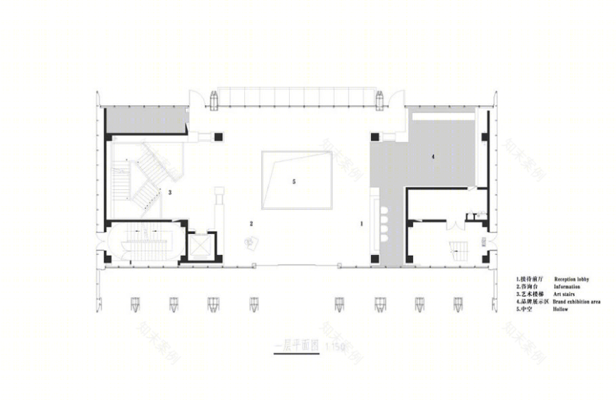
△一层平面图
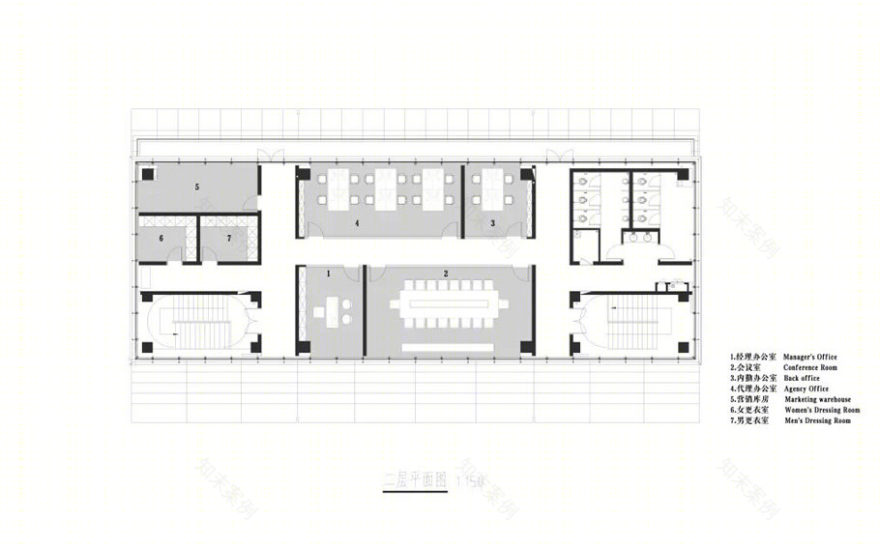
△二层平面图
△负一层平面图
△南立面图
△北立面图
△东立面图
△西立面图
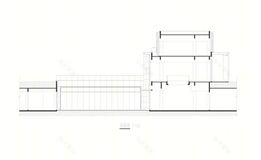
△剖面图
工程档案
项目名称|陕建雲玥府社区中心
项目类别|社区大堂
项目位置|西安市港务区
业主单位|陕西建工房地产开发集团有限公司
业主团队|李凤展 野佳 杨嘉欣 许建超 陈蕊
设计单位|上海日清建筑设计有限公司
项目总负责|赵晶鑫
项目负责人|姜茗博
设计团队|董晓斌 陈良鹏 朱侠豪 潘朋 李秀茹 覃夷简
景观设计|西安杦犁景观设计咨询有限公司
室内设计|矩阵纵横设计股份有限公司
建筑面积|1697.56㎡
占地面积|1194.96㎡
建筑摄影|远近影像
客服
消息
收藏
下载
最近






































