查看完整案例


收藏

下载
现代主义只是一种语汇,而非固化的一种建筑风格。相较于被简单的现代风格所定义,我们更愿意用当代建筑去解读我们当下所做的设计。华侨城滁州·欢乐明湖体验中心项目正是应对了这样的设计理念。
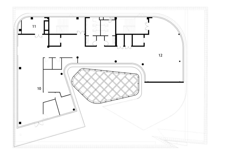
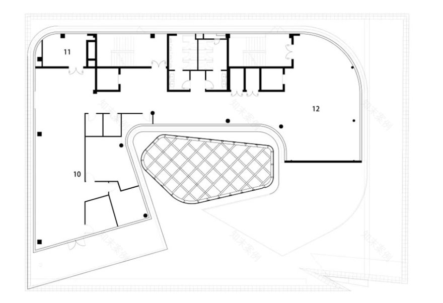
项目坐落明湖,地处规划新城的东南部,毗邻滁扬高速与京沪高铁,地块总用地面积2000平方米。
基地景观环境优渥,原野茂郁,拥有简单质朴的自然美,任何人工建筑在此似乎都会显得唐突。于是,设计希望从“人的体验路径”入手,建成后的体验中心将成为游客行为的引导者,它以一种自然的形态出现,阴雨天好像一团萦绕于湿地上的飘渺雾气,晴日里如同生长这里已久的田间磐石。
项目名称丨华侨城滁州·欢乐明湖体验中心
项目位置丨滁州市南谯区滁州大道
业主单位丨华侨城滁州
设计单位丨上海日清建筑设计有限公司
项目总负责丨宋照青
项目负责人丨陈斌 鲁健
设计团队丨林静滨 狄中华 车喜刚 柯菲
甲方设计团队丨郝东旭 潘力 张勇 黄志成
施工图设计丨同济大学建筑设计研究院(集团)有限公司
施工图团队丨建筑:张镇 王丽莉 结构:杨晖柱 朱丙虎 李韵竹
现场管理丨李冬冬 唐旭 张圆圆
景观设计丨上海骏地建筑设计事务所股份有限公司
幕墙单位丨上海中原雄狮企业发展集团有限公司
室内设计丨苏州金螳螂建筑装饰股份有限公司上海设计公司
建筑面积丨3864.5m²
建成时间丨2020年7月
建筑摄影丨是然建筑摄影 Schran Image
客服
消息
收藏
下载
最近





































