查看完整案例


收藏

下载
睿住天元 / REMAC TY DESIGN
“建筑的目标在创造完美,也就是创造美的效益”
睿住天元 / 璟悦风华 • 以变化探索设计之旅 中国. 贵阳
TRANQUILITY / WARMTH / MINIMALIST AESTHETICS /
“建筑留存下来因为它是艺术,因为它超越实用”。
Architecture survives because it is art and because it transcends practicality.
——[法] 柯布西耶 (Corbusier)
贵阳轴承厂是一个工业进程当中的缩影。与改革开放后的工业建筑不同,贵阳轴承厂始建于 1958 年,其建筑形态和空间规划,不可避免地带有苏联美学及计划经济时代工业美学的痕迹。
Guiyang Bearing Factory is the epitome of an industrial process. Different from industrial buildings after the reform and opening up, Guiyang Bearing Factory was built in 1958. Its architectural form and spatial planning inevitably bear traces of Soviet aesthetics and industrial aesthetics in the era of planned economy.
ORIGINAL APPEARANCE
NEW APPEARANCE
贵阳轴承厂的建造在标准化下诞生,尽管建筑被剔除了“人”的情感,数十年的工业进程,几代人从沿海发达城市迁往西北、西南山区、投身工业,扎根成家,爱恨情仇,被夹杂在今日的残垣之中,成为磨不灭的记忆。建筑是冰冷的,但正因承载了人的成长和故事,它带来的情感价值得以覆盖旧有的肌理,成为“新”的历史意义。
The construction of the Guiyang Bearing Factory was born under standardization. Although the building has been removed from the human emotions, decades of industrial progress, generations of people have moved from the developed coastal cities to the northwest and southwest mountainous areas to devote themselves to industry, rooted and family, love and hate. Love and hatred are mixed in today’s ruins and become indelible memories. Architecture is cold, but because it carries human growth and stories, the emotional value it brings can cover the old texture and become the new historical significance.
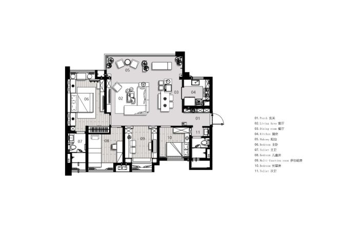
|#Compound tpye 141
时光静好,岁月醇香。光阴镌刻下的我们拾起每一件记忆的物证,累积出我们独有的宝藏。在只属于自己的一方天地,启动乐章,悠然自得。拨动精妙的时间齿轮,光阴流转间,我们依旧牢牢握住自己的时间馈赠。
Time is quiet and time is sweet. Time engraved we pick up each piece of memory evidence, accumulated our unique treasure. Start the movement in your own place, and feel at ease. With the delicate time gear, we still firmly hold our time gift.
客餐厅联通一体,上部挑空,拉升视觉,同时开放空间和大面积观景面给人一种尽收人间烟火的生活感。餐桌、台几、柜体利落的规划着生活轨迹,而吊灯弧度划破其中,灵动的玻璃软装以及黑、白、木色的穿插,打造了集温润和理性于一体的空间,也勾画了简单恣意的私享生活。
The guest restaurant is connected to one, the upper part is empty, and the vision is enhanced. At the same time, the open space and large viewing area give people a sense of life in which people can enjoy the worlds fireworks. The dining table, table table and cabinet are neatly planning the life track, while the arc of the chandelier cuts through it. The flexible glass soft decoration and the interspersed black, white and wood colors create a space integrating warmth and rationality, and also sketch a simple and arbitrary private life.
餐桌、台几、柜体利落的规划着生活轨迹,而吊灯弧度划破其中,灵动的玻璃软装以及黑、白、木色的穿插,打造了集温润和理性于一体的空间,也勾画了简单恣意的私享生活。
The dining table, table table and cabinet are neatly planning the life track, while the arc of the chandelier cuts through it. The flexible glass soft decoration and the interspersed black, white and wood colors create a space integrating warmth and rationality, and also sketch a simple and arbitrary private life.
在这里,音乐和酒,乐声绕梁,过往氤氲。在这里,堆积的有年少的轻狂,更有岁月的醇香。
Here, music and wine, music ring beam, past dense. Here the accumulation of young frivolity, more years of mellow.
“年少不听李宗盛,听懂已是不惑年。”一楼客餐厅的挑高空间隔出半隅形成了二楼半开放的休闲区,凌于公共空间之上,凝聚了居者对生活的认知。在这里,音乐和酒,乐声绕梁,过往氤氲。在这里堆积的有年少的轻狂,更有岁月的醇香。
If you dont listen to Li Zongsheng when youre young, its not confusing to understand. The high-rise space of the restaurant on the first floor forms a half open leisure area on the second floor, which is above the public space and condenses the residents cognition of life. Here, music and wine, music ring beam, past dense. Here the accumulation of young frivolity, more years of mellow.
主卧室告别冷峻,配色更加柔和安谧,营造出简约氛围。木饰与布艺结合呈现沉静的、舒适宜人的居室空间,主卧衣帽间和卫浴隐于一道若有若无的隔档后,开放又私密,不失仪式感。
Master bedroom bid farewell to cold, color more soft and quiet, create a simple atmosphere. The combination of wood decoration and cloth art presents a quiet, comfortable and pleasant living space. The cloakroom and bathroom of the master bedroom are hidden behind a seemingly absent partition, which is open and private without losing the sense of ceremony.
清新明媚的音乐私域,伴随着日夜安眠、年岁成长。
The fresh and beautiful music private area, accompanied by sleeping day and night, growing up. To dream as a horse, live up to your time.
雅致安详的白抚平了时光,静谧安适的蓝温柔了岁月,沉寂的等候在家中一隅,悄悄享受静静的时光,孤芳自赏中,暗自思考未来与当下,传承着家和时间的记忆。
Elegant and serene white smoothes the time, the quiet and comfortable blue softens the years, waiting in a corner of the home, enjoying the quiet time quietly, thinking about the future and the present in solitude, inheriting the memory of home and time.DRAWING PRESENTATION
|#High rise 123 Apartment
客餐厅是一家的凝聚,体现出家族的文化与传承,让朋友能够瞬间感悟与你的共性和特性。家中的老照片历经时间的冲刷,流传到现在,成长带来的不止压力,还有家庭的温暖,时间的温柔。
Guest restaurant is the cohesion of a family, reflecting the family culture and heritage, so that friends can instantly feel the similarities and characteristics with you. The old photos of the family have gone through the scour of time. Now, the growing up brings not only the pressure, but also the warmth of the family and the gentleness of time.
客餐厅是聚集友人之地,将线条感十足的吊灯漂浮空中,优雅的线条划开空间的规整,独具一格。日光透过窗户零散的洒在桌上,客厅右侧光影渐上,让人如梦似幻,共享空间轻藏于恬静。
Guest restaurant is a gathering place for friends. The chandelier with full sense of lines floats in the air, and the elegant lines separate the space, which is unique. Sunlight scattered through the window on the table, the living room on the right side of the light and shadow gradually, let people dream, sharing space light hidden in the quiet.
客厅走廊设置收藏柜,从胶片相机到数码相机,数代交替,更迭变换。漫长艰难的流转时光却又顺其自然地继续生命的传承,像是代代相传的文化,又像是层层不变的情缘,相机的更迭也见证着时间的变迁。
The living room corridor sets up the collection cabinet, from the film camera to the digital camera, the alternation of generations. The long and difficult circulation time, however, continues the life inheritance naturally. Its like a culture handed down from generation to generation, and its like a constant love relationship. The change of cameras also witness the change of time.
在共享空间中讨论有趣的话题,将此户的客厅、餐厅、共享空间及阳台连接,共同营造一个家人可以彼此分享陪伴的互动空间,拉近家人之间的距离,将亲情带回现实。
Discuss interesting topics in the shared space, connect the living room, dining room, shared space and balcony of this family, and jointly create an interactive space where family members can share company with each other. Close the distance between family members and bring the family back to reality.
主卧背景将冷静客观结合,低调的涵雅,刚柔并济,于细节处铸就奢华的体验。透过窗户,光影在窗帘上晃动交错,让人沉浸于安谧。光线在室内中晕开,温润了触感,柔和了界限。
Master bedroom background will be calm and objective combination, low-key elegant, rigid and soft, in the details of the casting luxury experience. Through the window, the light and shadow on the curtain swayed and staggered, making people immersed in tranquility. The light in the room halo open, warm touch, soft boundary.
长辈房还原了一种阳光惬意的生活本味,不只是空间氛围的营造空间,而是构建了一座盛放美好生活的容器,美好生动且令人向往,质感的同时也不乏温馨的点缀充盈空间。
The elder rooms restore a kind of sunshine and comfortable life flavor, not only to create space atmosphere, but to build a container for a better life, beautiful and vivid and people yearn for, texture at the same time, there is no lack of warm ornament filling the space.
勇气、坚持、和平与爱,拥有这些也许不能翱翔天空,却可以保护孩子的成长道路不会迷失方向。
It includes courage, persistence, peace and love. With these may not be able to soar in the sky, but can protect the childs growth path will not be lost.
现实生活中没有超级英雄,却可以拥有英雄梦想。这包括勇气、坚持、和平和爱。拥有这些也许不能翱翔天空,却可以保护孩子的成长道路不会迷失方向。房间的独特,可以开发孩子的特性,孩子的私密空间,不仅可以让孩子感觉安全,更能让孩子在生活中成长,在成长中优秀。
There are no superheroes in real life, but we can have heroic dreams. It includes courage, persistence, peace and love. With these, we may not be able to soar in the sky, but can protect the child’s growth path will not be lost. The unique room can develop children’s characteristics. Children’s private space can not only make children feel safe, but also let them grow up in life and excel in growth.
DRAWING PRESENTATION
|#98 House Type
超大 kaws 雕塑和公仔体现出年轻的潮流文化,尖锐的色彩组合与前卫的艺术家具,塑造出年轻人对家的想象。一切皆为时尚,开放式客餐厅、无茶几设计、客厅整面投影屏、可伸缩式的大餐桌,都给小空间带来更多的可能性。
XXXL KAWS sculptures and dolls manifest pop culture. Vibrant colors matched with vanguard artistic furniture capture youth’s imagination for home. All for modernity. Full-size projection wall, retractable dinner table, the open living room and the main dining room with no traditional tea table design create more possibilities on a small footprint.
卧室被赋予跳跃的色彩,直线与圆弧软化着空间。白色背景加上黄色点缀,犹如加了魔法的数学方程式,吊灯的弧线延续着时尚前卫的梦境。
Youthful color in bedroom with lines and arcs. Magic is done when the white meets yellow, and arc chandelier delivers avant-garde design.
也许每个人都有一个画家梦,每个梦想都应该被珍视。每一个孩子都属于孩子的房间也应该。
Perhaps, every one has a dream of being a painter and each individual dream shall be valued. There is no two kids with same identity. Children shall have their unique bedroom.
年轻人不仅喜欢收藏各种潮牌联名、鞋子、手办,还可以将这里做成直播秀场,赋予空间更多的“玩趣”的生命力。房间还设置了一个隐形柜子床,人多时立马放下就变为客房,做到书房客房切换自如。
Multi-function room is design for fun play. In this room, young generation can display their collaboration, sneakers and figurine, or do a live broadcast. Diversified functions make the room more interesting. See that wallbed? Guest room or study room is all in your decision.
DRAWING PRESENTATION
-Name | 项目名称- 贵阳美的.璟悦风华
-Project name | 项目地址- 中国•贵阳
-Spatial properties | 空间属性- 住宅样板
-Area | 项目面积-98㎡、123㎡、141㎡
-Completion date | 竣工时间- 2021 年 7 月
-Design guidance | 设计指导- 陈学深
-Main case design | 主案设计- 米雪晨 黄锋森
-Soft outfit team | 软装团队- 覃冬雪 麦瑞妍 祁雪莲 李京璟
-Interior design team | 室内团队- 王梓
Guangdong Tianyuan Architectural Design Co., Ltd. (REMAC TY) is positioning design technology integrated service provider. It is an important subject of the design p of Ruizhu, with full-process and full-professional design consulting capabilities and integrated design and services. As a decathlon enterprise with architectural design, it adheres to high-quality design and services to provide customers with full-specialties and full-category Comprehensive solutions for architectural design.
企业拥有建筑设计甲级、规划乙级资质、园林乙级资质,坚持以设计结合科技创造更有温度的空间,深耕设计科技前沿的装配式 BIM 和智能化设计,推动装配式全链条模式打造,促进智慧建筑设计全产业链发展。
The company has Grade A for Architectural Design, Grade B for Planning, and Grade B for Gardening. It insists on combining design with technology to create a more warm space, deepens the cutting-edge prefabricated BIM and intelligent design of design technology, and promotes the creation of a prefabricated full-chain model. Promote the development of the entire industry chain of smart building design.
广东省勘察设计协会理事单位、广东省建设工程绿色与装配式协会副会长单位、中国建筑业协会绿色建造与智能建筑分会常务理事单位,高新技术企业,列入省装配式产业基地,参与 BIM 及智能化标准修编。企业拥有专利 30 项,通过了 ISO9001:2015 质量管理体系认证,知识产权管理体系认证。连续 11 年获广东省守合同重信用企业,获评 2019 年度广东省工程勘察设计民营企业勘察设计收入十强企业,成为华南理工大学、华南农业大学、广东工业大学等多个高校的校外基地。
Director unit of Guangdong Survey and Design Association, Vice President Unit of Guangdong Construction Engineering Green and Prefabricated Association, Standing Director Unit of Green Construction and Intelligent Building Branch of China Construction Industry Association, National High-tech Enterprise, Listed in Provincial Prefabricated Industrial Base, Participated Revision of national BIM and intelligent standards. The company has 30 patents and has passed ISO9001:2015 quality management system certification and intellectual property management system certification. For 11 consecutive years, it has been awarded as a contract-abiding and credit-worthy enterprise in Guangdong Province, and it has been awarded as one of the top ten enterprises in Guangdong Province for engineering survey and design private enterprise survey and design revenue in 2019. It has become an off-campus base for many universities such as South China University of Technology, South China Agricultural University, and Guangdong University of Technology.
客服
消息
收藏
下载
最近



































































