查看完整案例


收藏

下载
▲清华大学设计中心楼西立面
清华大学占地392.4公顷,其中清华大学建筑设计研究院有限公司坐落在一栋四层的建筑单体——清华大学设计中心楼内,设计中心楼占地面积仅占到清华大学总占地面积的千分之3.6。在整个校园的映衬下,设计中心楼显得非常小巧精致。
▲清华大学设计中心楼在清华大学中的位置
如何正确的进入清华大学到达设计院,想必各位已经观察出来了,当然是从中关村东路或双清路进入清华大学东南门,直走右转600米即可到达。
▲绿色报告厅
清华大学设计中心楼是2001年竣工的,距今已经有18年的历史,日晒和风霜已经让设计中心楼有了岁月的痕迹。设计院的员工从项目落成后就已工作和奋斗在这里,他们的一颦一笑、泪水汗水都映现洒落在设计中心楼里。设计院的项目和图纸,也在设计师的笔下和电脑屏幕下,以设计中心楼为原点,辐射到各地,一个个的实施落成。
今天就让我们跟随设计中心楼的设计理念和历史,走进清华大学建筑设计研究院的同仁们工作的地方——清华大学设计中心楼。
清华大学设计中心楼
项目概况
建筑师:胡绍学设计团队
项目地点:北京市清华大学校园内
总建筑面积:约7800平米
建筑层数:4层
设计时间:1999年
竣工时间:2001年
摄影师:郑庆龄
获奖情况
2009年中国建筑学会建筑创作大奖
2001年国家优秀工程设计金奖
2001年建设部优秀设计一等奖
2000年教育部优秀设计一等奖
2001年亚洲建协荣誉奖
THAD建筑师简介
胡绍学
胡绍学|教授,清华大学建筑设计研究院顾问总建筑师,特许一级注册建筑师,全国工程勘察设计大师。
社会兼职
中国工程设计大师;中国建筑学会理事、学术工作委员会副主任;中国注册建筑师管委会委员;2000年当选为中国工程设计大师;2003年获亚洲建筑师协会荣誉奖;2005年获世界华人建筑师协会建筑设计奖。
获奖(或参与的主要工程项目、科研项目)
1. 国家大剧院 (与法国机场公司合作,实施方案)
2. 清华大学设计中心楼 获国家优秀设计金奖、建设部优秀设计一等奖、获建国60周年建筑创作大奖
3. 清华大学经管学院 获国家优秀设计银奖、获建国60周年建筑设计大奖
4. 武钢博物馆 获建国60周年建筑创作大奖
5. 清华大学主楼前规划及教学楼群 其中建筑获教育部、建设部及国家级优秀设计二等奖以上共九项
6. 海口市“名人花园”设计 获中国建筑学会人居奖金奖
7. 济南、宁波、烟台、青岛、天津等城市的中心区、开发区、旧城改造的规划与城市一共20余项目。
译、著、论文
1. 《建筑创作与技法研究》(1996年建工出版社出版);
2. 在国家一级刊物发表学术论文,《绿色生态建筑》、《视觉艺术心理学》、《非线性的设计思维、超三维的空间认知》等共四十篇。
THAD项目概况
▲入口透视
本项目是我国第一幢实践性的绿色生态办公建筑。
▲入口门厅
项目设计中根据可持续发展的原则,运用绿色生态建筑设计理念,采用适宜的常规建造技术,结合实际情况,制定出一整套较完整的具体绿色设计策略,为工作人员创造出一个健康、舒适、宜人的室内工作环境。在我国生态建筑的实践方面迈出了示范性的第一步。
▲二层共享空间
办公建筑作为为工作者提供工作空间的“容器”。而它作为自然生态系统中的资源消费者,其“绿色精神”的体现意味着办公建筑的存在,本身应该真实的反映出环境特征(场地乃至地域的地理、气候)与使用者的需求,由内而外的体现出一种健康、和谐、充满生机的存在状况。
▲门厅接待处
THAD设计理念
▲绿色建筑设计理念表述
缓冲层策略—内外环境的调节器
▲二层中庭(边庭)
热缓冲中庭(边庭)在冬季是一个全封闭的大暖房。在“温室作用”下, 成为中间办公环境的热缓冲层, 有效地改善了办公室热环境并节省供暖的能耗。
▲设计办公室
在夏季是一个缓冲凉棚。中庭南侧的遮阳百叶能有效的遮蔽直射阳光,在尽可能不影响空气流动的情况下, 成为一个过渡空间, 对工作空间起到良好的缓冲作用。
▲二层中庭(边庭)冬季夏季功能分析图
▲设计室流场和温度场模拟
从形健康化策略—绿化引入室内
▲二层中庭(边庭)植被
植被化是绿色办公建筑设计的重要手段之一。绿色植物的引入也可以起到某种调节器的作用, 并且与缓冲层策略的被动性不同, 这是一种积极主动的“绿色手段”作为对植被化手段的应用。
▲二层中庭(边庭)植被
南侧中庭的绿化平台(种植有天然草皮和树木花草) 不但为工作者提供了充满生机的、令人愉快的视觉效果以及一个休憩与交流的场所, 同时绿色植物的存在本身亦成为一个健康的自然调节器。绿色中庭的草坪、树木等植被在促进室内空气清洁新鲜, 改善空气湿度条件(北京的空气往往比较干燥,尤其是在冬季里) , 降低室内温度(夏季) 等等方面都将起到有效的作用。
▲设计中心楼舜德厅
缓冲层策略—防晒墙与架空屋顶
▲西侧防晒墙
即在西向设计一面大尺度的防晒墙, 这面由混凝土制成的防晒墙完全与建筑脱开, 在夏季与过渡季节, 可以完全遮挡西晒的直射阳光。同时防晒墙与建筑主体之间的空隙还有利于室内空气的流通(拔风作用) 并可保证主体建筑室内的均匀天光照明。
▲西侧防晒墙
在冬季, 防晒墙能有效的遮挡西北风, 在阳光照度大的天气甚至还能积蓄热量而成为一个蓄热体, 在建筑西侧形成一个热保护层, 从而有效缓解外部气温对建筑内部的影响。
▲西侧防晒墙剖面图
除此之外, 从建筑造型角度看, 防晒墙的设计手法和细部处理给人们以一种新颖的感觉, 它也将是令人兴奋的。
遮阳板系统与自然通风
▲南侧遮阳板
系统适当的遮阳设计对减少太阳辐射进入建筑内部是十分必要和有效的。
▲南侧遮阳板功能示意图
▲中庭采光井
设计楼的各层办公室在过渡季节完全可以依靠自然通风维持室内的舒适条件。
▲自然通风分析图
▲设计室与办公室之间中庭采光井
▲入口共享空间
THAD项目图纸
▲总平面图
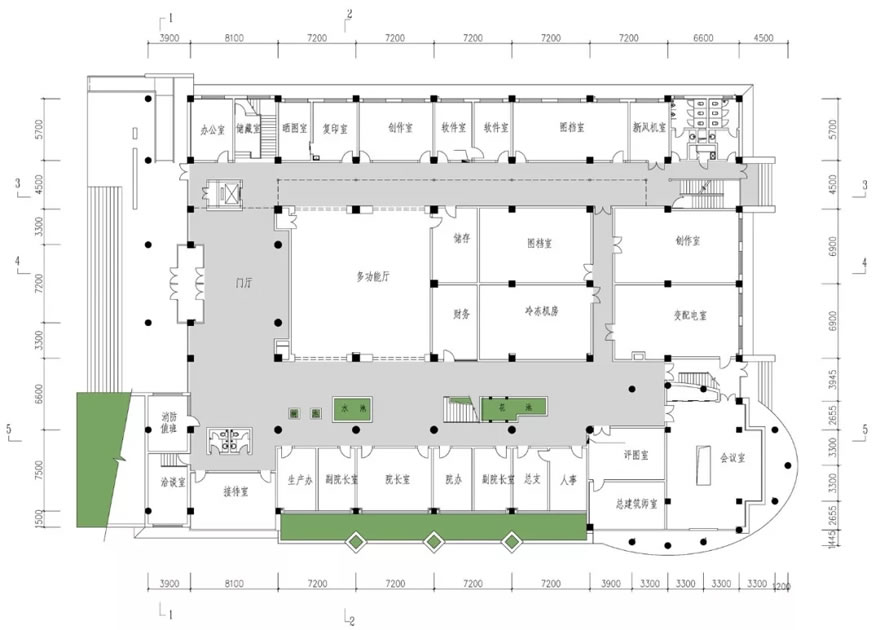
▲首层平面图
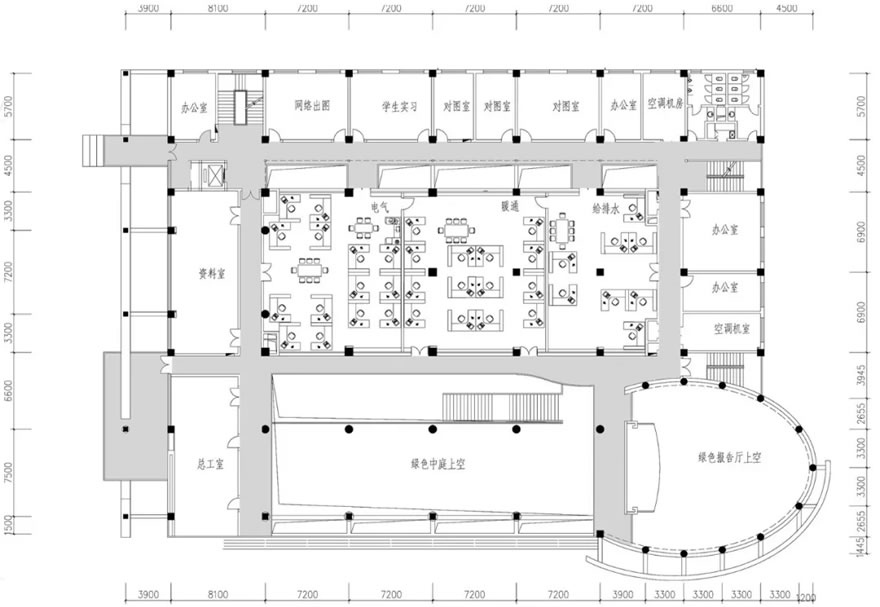
▲二层平面图
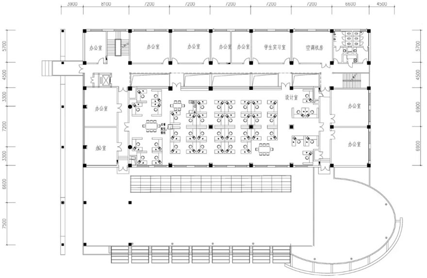
▲三层平面图
▲四层平面图
▲西立面图
▲南立面图
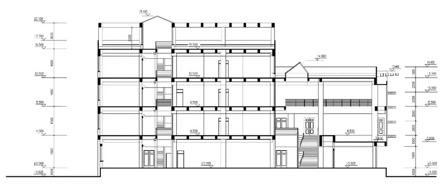
▲剖面图
参考文献:
[1] 胡绍学,宋海林,胡真,谢坚.“生态建筑”研究绿色办公建筑——清华大学设计中心楼(伍威权楼)设计实践和探索[J].建筑学报,2000(5):10-17
[2] 走向新思维1994~2008——胡绍学团队清华大学建筑设计研究院有限公司“艺匠传承”作品展
撰写:企划部
编辑:企划部
客服
消息
收藏
下载
最近



































