查看完整案例


收藏

下载
探索事物于不同角度的发散认知
以相对述平化的方式来阐述其内在诸多的复杂可能性
挖掘更多不同的生活方式探讨和对人性的再思考
让空间更具可考究及情感共鸣的建立......
KINSUN DESIGN / 于间所隐 自形其述
中国 . 温州
“活得越久,生命就越加美丽。如果你愚蠢地忽视美感,您很快会发现自己失去了它,生活将陷入困乏。但如果你是明智的追求者,它将伴随你一生。”
——弗兰克·劳埃德·赖特 (Frank Lloyd Wright)
/ DESIGN DESCRIPTION /
所谓的留空,绝不仅仅只是单纯空洞的留白处理,也非一味过度的做减法,而是有结合的适当。探讨日常与空间所关联的互动间隙,进而提升私宅对外所阐述的情感共鸣。
有结合的对外方式梳理,且伴有对空间的留白平衡,传达体验值的同时,思考其存在的合理性,深入于情感于空间的多维及方面。
往复的过程直面空间内容的面貌呈现,
保留空间叙述的同时,来表达日常的情景拟定。
对于空间亦如此,它更多的反映着使用者独有的属性,乃至入微的细致体现。
归于空间的本真性,皆少量化,凸显而出的是对生活方式的探讨,以绝多余的一切事物,但留内心的一寸空白,来彰显对于生活,空间对应的态度。
保留并完善自身结构的同时,来捕捉人及事物与处地空间所关联的常态。
以重组的方式来梳理相邻公区所对应的体验感受,使其再双向独立后,也能尝试另一种日常发生的可能性。
结合‘度’的衡量,更好的求善功能的完整性,匹配对应空间所要满足的诉求,多的结合实际功求来反复验证,尽可能的满足物质与精神双重的享受。
围绕人为的日常变化及所处空间的叙事性来作为情感寄托的可延展点,去探讨生活方式更多可能性的存在。
伴有反思的心态去验证空间的切实可操作性,归于实际,归于体验。
伴有反思的心态去验证空间的切实可操作性,归于实际,归于体验。
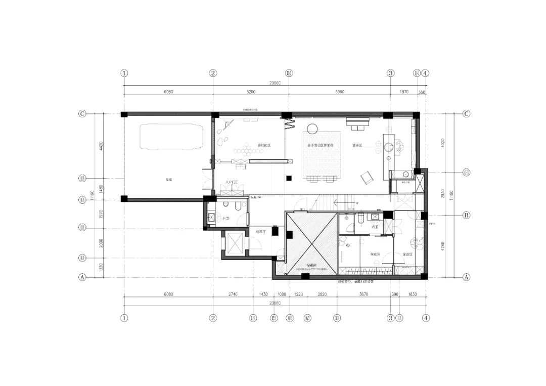
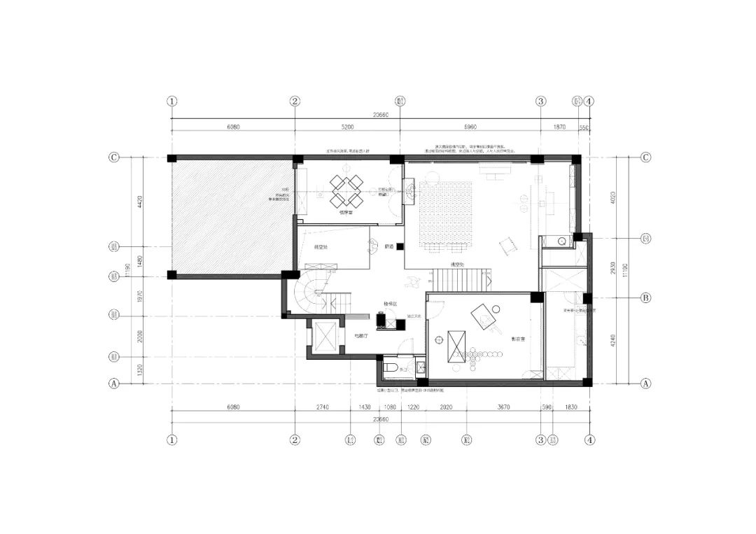
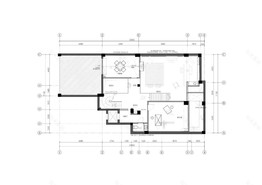
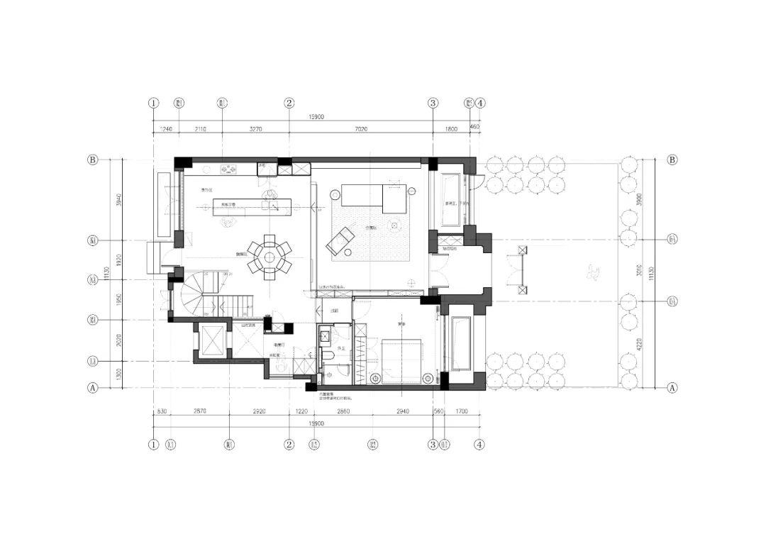
图纸呈现 | DRAWING PRESENTATION
Name | 项目名称 :序 述
Co-creative Design | 联合主创设计 :姜万静 . 兰斯
Project Name | 项目地点 :温州.乐清
Area | 项目面积 :550㎡
Project time | 项目时间 :2021年
ABOUT DESIGNER
姜万静 / 兰 斯
千上设计 执行董事 / 高级合伙人
关于 / 千上
于人、于事、于物,
于千
我们心胸广阔,有容乃大,
我们专注美学,积极向上;
千上设计继续肩负千盛国际原有的使命,以“坦诚,担当,专注,向上”为公司的核心价值观,以全新的设计公司定位,聚集一批对设计有理想有追求的优秀设计师,集众人之智,及时的捕捉市场流行元素,快速的通过信息传送及互动形式带动设计观念的不断进步,充分的尊重本土文化以及当地人们的生活习惯,专注空间美学创新;
在未来的发展道路上,千上依旧秉持严谨的职业态度,结合周边成熟的项目顾问资源系统,以专业的设计和卓越的服务来对待每一位业主,以解决并改善城市人居环境而努力践行;
客服
消息
收藏
下载
最近






































