查看完整案例


收藏

下载
Rakta Studio是一家全方位服务的建筑公司,总部位于印尼西爪哇岛的万隆,在定制建筑和设计方面取得卓越成就。
Trividor Apriadi Saputro作为Rakta Studi的创始人,在建筑行业有了17年的设计经验,VidorSaputro带领Rakta
Studio团队致力于创建简单精致的现代和当代美学设计,Rakta
Studio融合了现代的热带设计,对组装和建造细节的关注、环境和光线的局部特性的利用,以及材料和工艺的精细求精,都使Rakta
Studio项目成为具有独特影响力的环境。他们的建筑是永恒的、宁静而温暖的,并反映了我们的客户的独特价值观和性格。
01.LF HOUSE
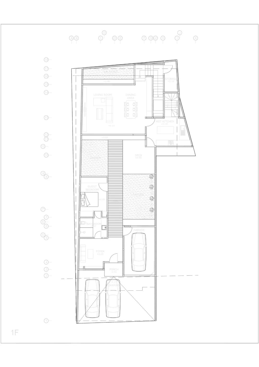
这座半独立式住宅有3个不同风格的花园和庭院。它位于一个相当密集的环境中,周围有公共人行道,隐私是我们首要考虑的问题。这些庭院建在房子的中间、后面,并且保证光天然采光和良好的通风。房间里微风习习,非常适合炎热的热带气候。
房子面朝西,正面有独特的木网和钢梁保护房子不受热而不遮挡视线。木质屏风给上层卧室提供了道路上的隐私,也为室内卧室在太阳下山时创造了了遮阳效果。在一层,木材甲板和木材天花板将两个庭院分割成主要的起居和用餐区,创造了一个独特的空间建筑序列。
庭院还提供了半室外平台,覆盖了一个玻璃屋顶与木材凉亭。从这个角度看,这个半室外平台和客房是欣赏美丽花园风景的好地方。一楼设有客厅、餐厅、餐具室、厨房等公共区域,也设有客房。二楼提供了更多的私人区域,如上层客厅、儿童卧室、衣柜和套房浴室。而主卧室充分占据了顶层,也有屋顶花园,可以欣赏到附近的景色。
02.FE House
在印度尼西亚的万隆的FE
House是一个宁静的住宅,每个元素都围绕着家庭和当地的热带气候设计。房子由宽敞的居住空间组成,既能容纳家庭活动,又能保持实用性,所以每样东西都有自己的位置,空间易于维护。该住宅由三层组成,每层都有不同的功能。主入口区域通过房屋前面的斜坡连接,从这个斜坡可以直接到房子的正门。一层是一个分割层,为车库和服务区创造了一个半地下室区域,二层是生活和家庭区域。
所有的卧室都在三楼,在一楼,当我们进入门厅时,我们可以透过内庭花园看到旁边的游泳池。位于房子后面的家庭娱乐室,初的计划是在家庭生活空间旁边放一个游泳池,在一楼留下开放的区域,用于景观美化和保证业主的隐私。
该住宅旨在重新定义现代和强有力的组成形式,使用自然材料-每一块石头、大理石、木材和金属都以动态的线条和形式提供了独特的质感。
03.BP House
BP住宅位于BSD城市Tangerang的街角,Tangerang是位于印尼雅加达西部的一个相对较新的郊区。住宅由裸露的混凝土盒子组成,相互堆叠和移动组成。
悬挂的盒子上覆盖着木质材料,营造出温暖轻盈的建筑主体,而另一种主要建筑材料则采用了一堵裸露的混凝土墙,为房子营造了一个沉重的底座。面对房子的另一侧,我们看到了一个悬挂的裸露混凝土盒子,通过走廊从入口门厅到起居区,映入眼帘的是内部庭院中的游泳池区域。
客厅和卧室之间的L型区域形成了一个有顶棚的区域,充分展现了了它的私人空间的隐私性和游泳池区域的优势。沐浴在透明的半透明玻璃中,阳光温柔地洒进了中心的生活空间。
在从客厅进入主卧室之前,有一个禅意花园作为过渡,而卧室的外墙也覆盖着垂直花园。弧形的艺术楼梯是空间的视觉中心,面向建筑正面大面落地玻璃。卧室和主卧室位于较高楼层,并设有玻璃窗,可俯瞰内部庭院的游泳池。
04.ETC House
ETC House
位于一栋住宅区内,是一幢150平方米的建筑,其建造目的是满足房主孩子的个人篮球场的需求。这三个孩子喜欢打篮球,他们的朋友经常聚集在那里度过闲暇时光。
由房主选择的“ RaktaStudio”建筑公司创建了一个“爱好之家”,将Japanesse风格的设计理念与热带现代风格相结合,这已成为Rakta
Studio本身的特色设计。
ETC House
有以下空间功能:客厅、厨房、卫生间、车库。该建筑还有一个观赏植物的花园,以便为进入其中的人提供凉爽的空气和舒适的环境。观赏性的花盆也被放置在建筑的一侧,面对着作为分隔墙的一排排铁柱。
内墙以黑色剪影的形式装饰着篮球比赛的画面,从而明确了建筑作为一个打篮球的地方的功能。这面墙旁边是一间简单的现代厨房。
在临近傍晚的时候,悬挂在走廊地板上的美丽灯光散发出一种微妙的感觉。在房间的角落是一个竹制的悬挂椅,可以是一个放松的地方,当看篮球比赛或休息的地方。
在众多的住宅中,ETC House 是独特的住宅,总是能吸引路人的注意。
客服
消息
收藏
下载
最近



























































