查看完整案例


收藏

下载
Houses, Bandung, Indonesia
设计师:Rakta Studio
面积: 400 m²
年份:2020
摄影:KIE
建造商: AutoDesk, Toto, Nirwana Landscape, YKK aluminium
设计团队:Vidor Saputro, Regina Leviana, Christian Halim
业主:Raegan & Regina
工程师:Vonny Valentina
景观设计:Nirwana Landscape
City:Bandung
Country:Indonesia
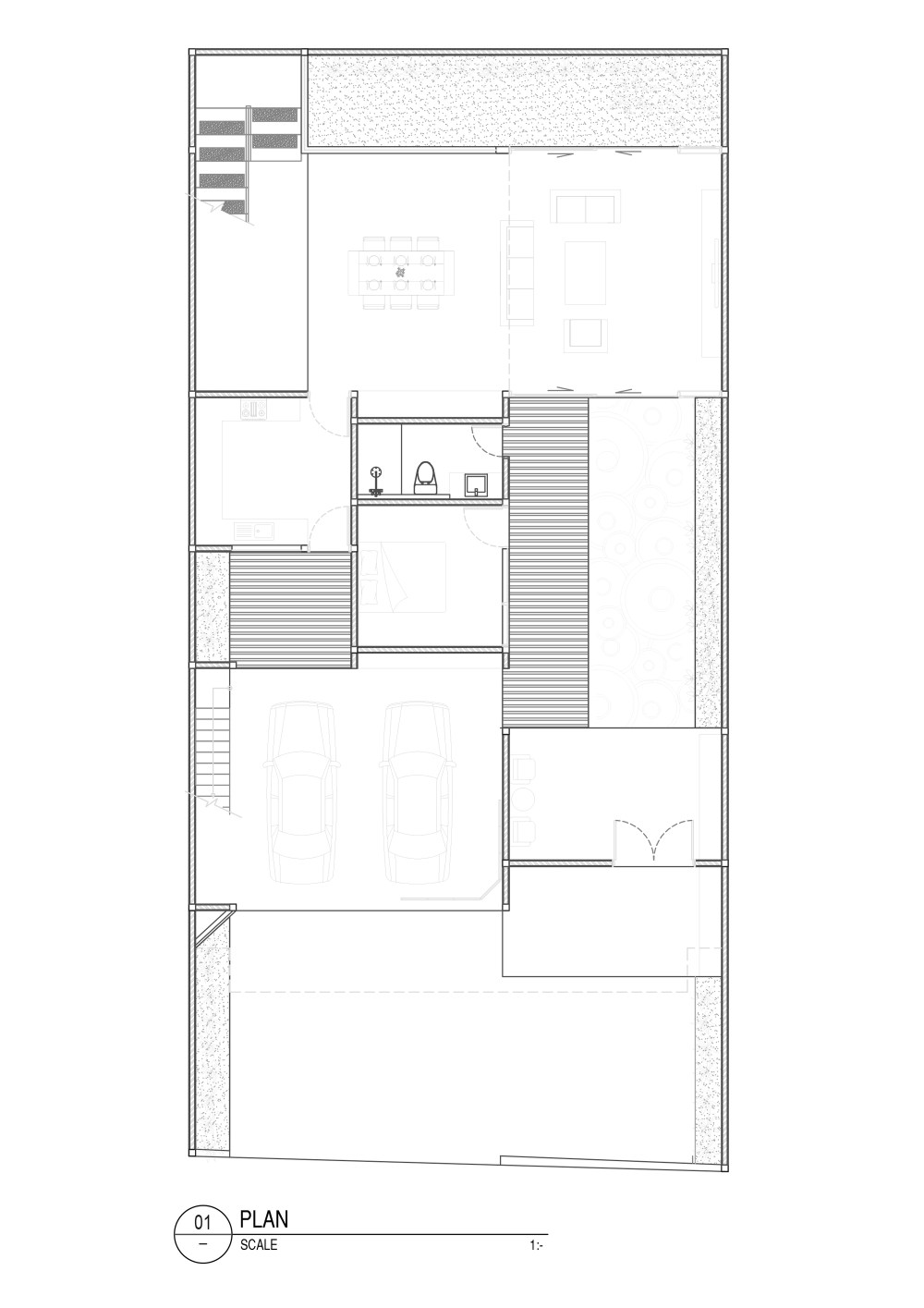
The Ruang Bayang - RR House is located in the center of Bandung, city, West Java Indonesia. The main idea was to create a sequential progression from the public to private zones by using the courtyard & vertical circulation as the divider between the two. Also, the varied volumetric scales of the public & private zones and their different interactions with the exterior was an essential part of the idea.
The double-height of the inner court with the skylight above gives users the experience of how natural lighting interacts with architectural elements. In addition, the sun creates a beautiful shadow / “bayang” as we named it in Indonesian, towards the wall below, yet the light will constantly change the shape of the shadows and its direction following the movement of the sun each day. Upon arrival, the main entrance welcomes us with a spacious foyer with a zen garden along with the reflection pool beside. As a further matter, climate concern is another key design for this small house. Heat avoidance elements on two sides are created.
It helps reduce heat and create more privacy for the house as the separator the public from the private living area of the house, the double-height volume of the courtyard also creates better air circulation and the pool itself maintains the humidity of the house. While this courtyard area is covered with a skylight to keep the natural light get through inside the house and create an aesthetics shadow effect as well. The staircase is at the side of the house, which creates an attractive point due to the unique design itself. Moreover, the trees are planted along with the backyard of the house.
项目完工照片 | Finished Photos
设计师:Rakta Studio
分类:Houses
语言:英语
阅读原文
客服
消息
收藏
下载
最近




















