查看完整案例


收藏

下载
架构师提供的文本描述。位于住宅综合体,等爱好房屋是一座150平方米的建筑,是为满足个人篮球操场的需要,为房屋所有者的孩子。这三个孩子有一个爱好打篮球,他们的朋友经常聚集在那里度过他们的空闲时间。
Text description provided by the architects. Located in a residential complex, the ETC hobby house is a 150 m2 building that was built to meet the need of a personal basketball playground for the children of the house owner. The three children have a hobby playing basketball and their friends often gather there to spend their free time.
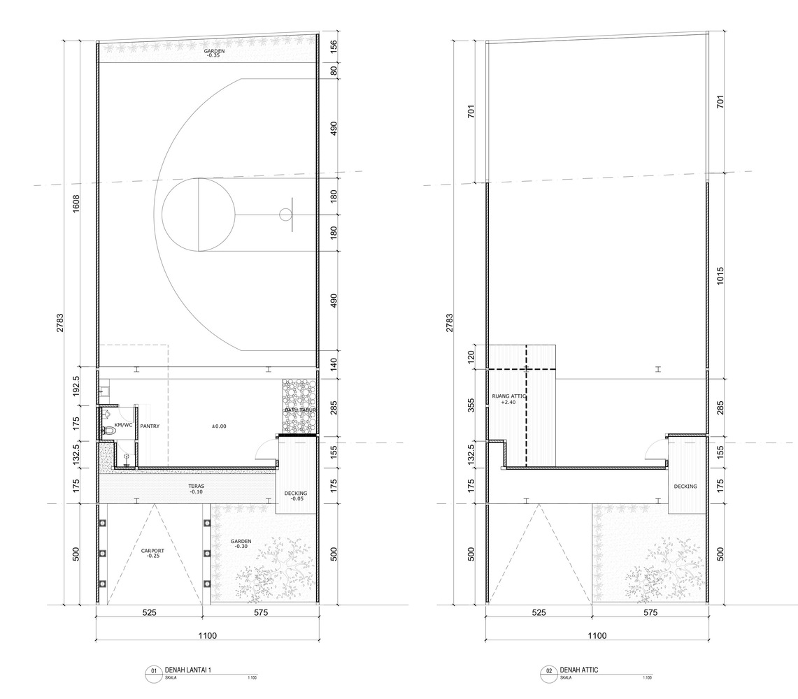
Text description provided by the architects. Located in a residential complex, the ETC hobby house is a 150 m2 building that was built to meet the need of a personal basketball playground for the children of the house owner. The three children have a hobby playing basketball and their friends often gather there to spend their free time.
“Rakta Studio”建筑公司是由业主选择创建“爱好屋”,采用日式设计理念,结合热带现代风格,已成为Rakta工作室本身的特色设计。
The "Rakta Studio" Architecture Firm chosen by the house owner to create a "hobby house", applies the Japanesse style design concept combined with the Tropical Modern style that has become a characteristic design of Rakta Studio itself.
The "Rakta Studio" Architecture Firm chosen by the house owner to create a "hobby house", applies the Japanesse style design concept combined with the Tropical Modern style that has become a characteristic design of Rakta Studio itself.
爱好住宅具有客厅、厨房、卫生间、车库等空间功能。这座建筑还种植了一座花园,种植了草和观赏植物,以便为进入它的人提供凉爽的空气和舒适的环境。观赏植物盆也被放置在建筑物的一侧,面对起隔墙作用的铁柱的行列。
ETC hobby house has the following space functions: sitting room, kitchen, toilet, and carport. The building also has a garden planted with grass and ornamental plants so as to provide cool air and comfort for those who enter it. Ornamental plant pots are also placed on the side of the building, facing the ranks of iron pillars that function as a dividing wall.
ETC hobby house has the following space functions: sitting room, kitchen, toilet, and carport. The building also has a garden planted with grass and ornamental plants so as to provide cool air and comfort for those who enter it. Ornamental plant pots are also placed on the side of the building, facing the ranks of iron pillars that function as a dividing wall.
内墙以黑色剪影的形式装饰着篮球比赛的画面,从而澄清了建筑作为打篮球场所的作用。这堵墙毗邻一个简单的现代厨房。
The inner wall is decorated with pictures of basketball games in the form of a black silhouette, thus clarifying the function of the building as a place to play basketball. This wall borders a simple modern kitchen.
The inner wall is decorated with pictures of basketball games in the form of a black silhouette, thus clarifying the function of the building as a place to play basketball. This wall borders a simple modern kitchen.
下午晚些时候,在走廊地板上安装的漂亮的灯散发出一种微妙的感觉,美化了房间。在房间的角落里是一个竹子挂椅,可以在看篮球比赛或者休息的时候放松一下。
When the day was approaching late afternoon, the beautiful lights mounted on the floor of the hallway exuded a nuanced feel and beautified the room. In the corner of the room is a bamboo hanging chair that can be a place to relax while watching a basketball game or a place to rest.
When the day was approaching late afternoon, the beautiful lights mounted on the floor of the hallway exuded a nuanced feel and beautified the room. In the corner of the room is a bamboo hanging chair that can be a place to relax while watching a basketball game or a place to rest.
站在其他住宅等的住宅爱好是其他房屋中最独特的住宅,并且总是吸引每一个经过它们的人的注意。
Standing among other residences, ETC house hobbies are the most unique homes among other houses and always attract the attention of everyone who passes them.
Standing among other residences, ETC house hobbies are the most unique homes among other houses and always attract the attention of everyone who passes them.
Architects Rakta Studio
Location Bandung, Bandung City, West Java, Indonesia
Lead Architects Vidor Saputro, Ronald Adikusumo
Area 150.0 m2
Project Year 2018
Photographs KIE
Category Recreation & Training
Manufacturers Loading...
客服
消息
收藏
下载
最近













