查看完整案例


收藏

下载
北欧、美式、现代、日式…… 在这些主流的风格之外, 还有一些小众而美得独特的调调, 比如今天这个案例的Wabisabi风格。
Wabisabi是个比较难以界定的概念, 源自日本传统文化与哲学, 翻译过来是“侘寂”或“禅寂”。 其中的“Wabi” (侘) 原指远离尘世,索居禅林的孤寂, Sabi (寂)原指“寒”“贫”“凋零”, 可以笼统理解为残缺之美、无华之美。
感受一下wabisabi的调调
这种风格只在近几年才稍有流行的趋势, 但在寻常人家的设计中仍然少见, 因此当本案业主对设计师小姐姐表达说: 喜欢侘寂风,喜欢Axel Vervoordt的作品时, 两人瞬间就有了“一见投缘”的欣喜。
房子是二手房,目前是短期居住, 之后可能会卖掉或者长租, 因此装修预算并不高。 不过业主的整体要求也比较简单, 没有太多储物需求, 装修的核心就两个字:好看!
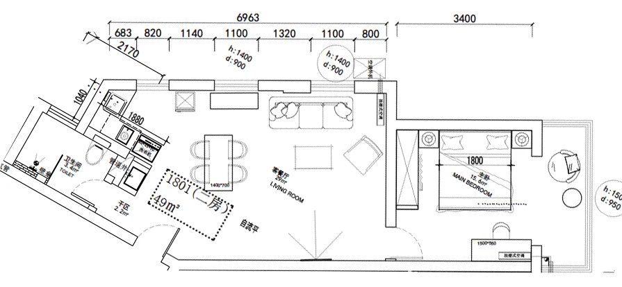
面积49㎡的小户型,客厅难得很宽敞, 原本打算隔出一个卧室做成两房, 后来考虑到业主经常会招待朋友, 需要完整的客餐厅功能, 最后还是决定保留了客厅空间。
由于预算有限,硬装改造不多, 主要是打掉了厨房的隔墙, 让整个空间更开敞通透。
整体决定走水泥风路线, 自流平 水泥艺术漆, 没有多余的线条,看上去整体感更强, 很适合小户型。
买了特殊的刷子, 将墙面涂得肌理感更明显一些, 这种做旧的痕迹仿佛是时光的洗礼, 而老的物件总给人更多的安心感。
空旷的水泥墙挂了一块棉麻布, 单人椅是来自某宝的仿款。 整个空间大都是天然或仿天然的材质, 素雅、淡然、沉静的气息缓缓释放。
藤编花盆里是来自某宝的仿真植物, 干枯的造型令人想到肃杀的秋天, 点出了Wabisabi凋零、残缺的主题之美。
茶几来自某宝“涵客家居”, 古木的躯干,刻画着一圈圈年轮。 沙发是定制的,没有扶手的简洁款式, 摆上一堆软抱枕, 依偎着仙仙的白纱帘, 点起香薰烛,烟雾袅袅升腾, 窝在窗前发呆看景,懒懒的一天……
沙发另一旁同样是枯树枝, 花盆换成了木头罐子, 是另一种古朴的沉淀感。
窗户选了细黑框的款式, 恰到好处的复古味道, 与整个空间的气质中和得很好。 双层的隔音玻璃, 让这个家的颜值与实用得到了统一。
打掉了原厨房的隔墙, 将餐厅设置在客厅与厨房中间, 为小户型保留了完整的客餐厅功能, 对于热爱美食、经常聚餐的业主来说 比起盲目追求更多房间受用得多。
一面墙的成本换来了通透的体验, 两扇窗带来的自然光形成叠加, 让小户型也能宽敞透亮。
这个角度还可以看到进门处, 放了长凳作为换鞋凳,旁边是穿衣镜
餐边柜来自某宝润家家居, 造型和质量都很棒,已被种草~
柜子内部用于储物, 柜子上方则可以摆放好看的物品。 画框也是藤编 黑框的组合, 与客厅单人椅、餐椅形成小小呼应, 细节上满满都是设计师的小心机。
餐椅款式与客厅单人椅大同小异, 这种粗粗的黑色边框, 自带沉静和一丝丝暗黑气质。
餐桌上的两个木头摆件, 淘来的小饰品,质感出乎意料。
卧室延续整体的风格, 软装上更简约清爽一些。 几盏藤编的吊灯带来度假般的闲适, 夜晚灯光亮起,又会投下斑驳的光影, 于细节中点缀曼妙的情调。
一张木头小凳代替了床头柜。 阳台用了与客厅同款的窗, 后期还可以在这里简单摆上小桌椅, 喝茶看书,晒晒发霉的心情。
另一侧的衣柜部分, 用隔墙 旧榆木板做成隔板, 挂上棉麻质感的布帘, 简单清爽的半开放式衣橱就成型了。
地毯是H-M的经典款。 椅子跟书桌是分开买的, 但是配在一起简直浑然一体~ 深色木 细框的造型非常雅致。
花瓶里的寂静的红叶, 令人想到日本庭院的秋天。
入户门左侧就是洗手间位置, 洗手池部分在外面,做成干湿分离。 老木板的台面,木头框的镜子, 小小的角落颜值也毫不逊色。
内部是水泥色的地砖 墙砖, 和外部风格保持了一致, 肌理感看起来很舒适,也很耐脏。
老旧的瓶瓶罐罐,干枯的枝桠, 斑驳的水泥墙和桌椅板凳。 有人喜欢现代的新与亮, 就有人喜欢侘寂的旧与暗, 这种阴晴明暗的交织, 构成了这个多彩纷呈的世界。 在自己喜欢的美好空间里居住着, 哪怕它不华丽,内心也一定是富足的。
客服
消息
收藏
下载
最近






























