查看完整案例


收藏

下载
户型:复式
地区:江苏省 南京市
装修风格:现代简约
房屋面积:260平米
装修预算:102万
这是一个顶层复式住宅项目,屋主既有东方情节,喜欢茶道,收藏紫砂壶,又是一个对当下现代生活方式热爱的人,对事物的认识有着自己清晰的判断,追求生活品质。本案通过精心的材料运用和比例切割,希望能创造出印象东方气质的当代住宅,它可以承载屋主的从容与自信,也能传达出无限的闲适与宁静。
本主题由 为了联盟 于 2020-4-13 09:47 审核通过
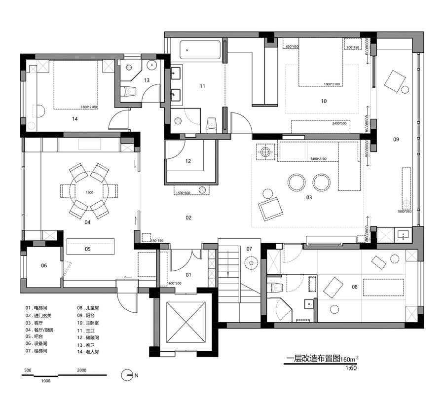
一层平面.jpg
平面1
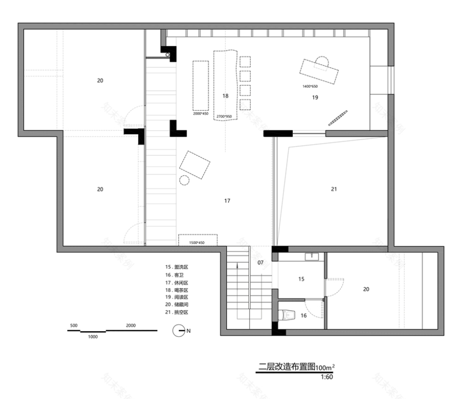
二层平面.jpg
平面2
001A01.jpg
入口玄关处以建筑手法搭建出一个实体盒子,功能上很好地解决了日常收纳的问题。
002A04.jpg
界面用实木薄板覆盖,通过纵向分割的细节处理,创造出肌理感。
003A03.jpg
专门定制的紫光檀明式条案,线条简练;镂空雕花温润祥和。
004A02.jpg
玄关近景。“知者乐水,仁者乐山”,案头上面摆放的太湖石玲珑剔透,传达出主人对自然造化的敬畏,也符合设 ...
005B05.jpg
设计师对房屋格局做了比较大的优化重组,创造出开阔的视野和格局,原来门厅区域被规划为独立楼梯间,设计师 ...
006B01.jpg
客厅全景。原本客厅区域顶部为全封闭楼板,与顶层的阁楼之间完全独立存在,设计师将客厅顶部楼板全部切除, ...
007B04.jpg
客厅挑空区。从阁楼玻璃窗可以看到整个客厅和阁楼的互动交流。
008B02.jpg
沙发背景通过钢板柜拉伸出空间比例,精心拼接的天然大理石背景,淡墨晕染,山水氤氲,气象万千,如入云霄。 ...
009B03.jpg
客厅近景。台灯来自意大利灯具Flos经典系列,黑色钢琴漆配以极简流线设计,让这个空间充满力量感。鼓形开光 ...
010B06.jpg
电视背景材质细节。
011C01.jpg
厨房区域把原有的非承重结构打开,以黑白为基调,做出规整的阔绰空间。厨房,餐厅,吧台,展示区全部统筹在 ...
012C02.jpg
厨房一角。手绘移门屏风可以自由移动,调整出装饰柜的不同比例。
013C03.jpg
餐厅吊灯来自法国设计师Lonna Vautrin,色彩清新,造型犹如中国传统的灯笼,很有东方味道!
014D01.jpg
定制的经典明代家具和意大利床品传递出异曲同工的工匠精神。
015D02.jpg
主卧家私细节
016D03.jpg
主卧休息区
017D03.jpg
老人房配色沉稳大气。
018D02.jpg
019E01.jpg
儿童房希望释放出多一点的空间给小朋友玩耍,同时也兼顾到以后的使用,墙面两幅画作来自女艺术家段革新作品 ...
020E02.jpg
这里是小朋友的游乐场。
021E03.jpg
儿童房卫生间彩色波点瓷片圆形图案如同小朋友最喜欢的多彩泡泡,独立台盆来自 KA,特意定制的柠檬黄置物架 ...
022E04.jpg
从卫生间看向儿童房。
023F04.jpg
阁楼楼梯隔断。留白是中国传统绘画中最为重要的艺术表现手法之一,南宋马远的《寒江独钓图》整幅画中没有一 ...
024F03.jpg
阁楼的强大收纳空间被一排白色柜门巧妙地隐藏起来,立面黄金分割比例强化纵向视觉拉伸,亦有东方禅学意向。 ...
025F05.jpg
扶手休闲椅为意大利顶级品牌 B&B,落地灯出自意大利 FLOS,东方与西方,现代与传统,在这里和谐共处。这 ...
026F01.jpg
阁楼茶室。四平面霸王枨方凳,戏称为“囧凳”。原件由中国古董收藏家安思远先生收藏,“囧凳”打洼委角于四 ...
027F02.jpg
2.7米的原木茶桌是设计师和业主专程到杭州工厂选料加工的,这个尺寸对于高层住宅来说已是极限,搬运过程费 ...
客服
消息
收藏
下载
最近































