查看完整案例


收藏

下载
暖暖的阳光照进房间,沏上杯浓浓的咖啡,香味弥漫了整个屋子,伴随着轻快惬意的旋律,让你尽情想象关于未来的生活场景。
在设计中,在原有硬装的灰色、米咖色的基调里加入高贵的橙色做渐变,让整个空间色彩丰富温馨治愈。
选用水晶、布艺、大理石、金属等材质进行融合,提升整体的品质感,在方法、材料层面拆解重组。
主卧色彩基于克制的变化,以稳定的灰色系为主,整体调性延续设计感体现空间。
充满温度质感的皮草搭毯,以精致和讲究去构建一个时尚精致的居住空间。
儿童房以星空元素主题饰品作为装饰,一个小小天文家的房间就完工了,趣味十足。
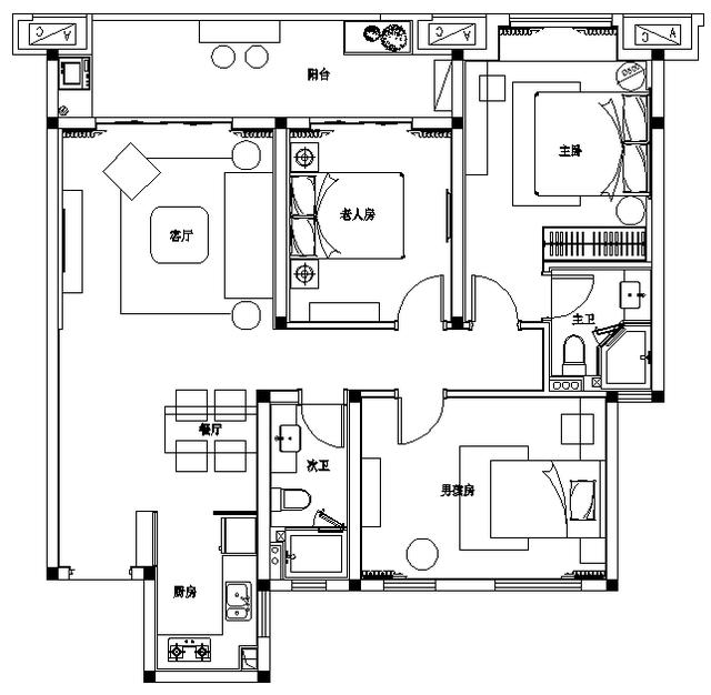
▲平面图
项目名称:大唐世家样板房118户型
业主单位:岳阳唐韵房地产开发有限公司
软装设计单位:美致空间
客服
消息
收藏
下载
最近














