查看完整案例


收藏

下载
傧尔笾豆,饮酒之饫。兄弟既具,和乐且孺。妻子好合,如鼓瑟琴。兄弟既翕,和乐且湛。宜尔室家,乐尔妻帑。是究是图,亶其然乎。
当房子被赋予家的意义,
那它不再是一处栖息,
而是慢拾生活时光的记忆。
01MINIMALIST
极简线条
简练几何线条的空间特征
黑白灰色彩的运用
搭配细节高质感的现代家具
户外的绿意成为背景
空间的虚实明暗 节奏有度
彰显出温文儒雅的君子风范
P. 01
P. 02
P. 03
P. 04
02SIMPLICITY 简约时尚
本案最大的亮点就是采用挑空手法打造空间美学,营造空间氛围。人与空间的共存构成一幅画面,但形式语言完全相反:虚与实、繁与简。寻找一种诗化的语言来描述,给人一种安静和美好。
P. 05
P. 06
白色大理石为主要材质,餐桌吧台以及背景墙和地面上的灰色大理石形成更鲜明对比,凸显空间的时尚质感。精致的吊灯、诺大的挑空层设计以及舒适的座椅,彰显出其乐融融的家庭氛围。
P. 07
P. 08
P. 09
03ATMOSPHERE
感知氛围
度云开夕霁
明月流素光
霁雪舒长野
承载多种光源的空间
以独有的交互逻辑
构建变幻的感知氛围
让居住的印记反哺钟爱艺术的灵魂
沁润暖融的光
通过能量振频
引导我们本能地拥抱生活
体验空间的温度 情怀 价值
P. 10
P. 11
P. 12
P. 13
P. 14
• 04
FUNCTION AREA
舒适格调
咖灰色大理石纹路地砖设计,搭配白色木质储物柜,一柔一刚,让玄关整体空间风格在优雅质感和自由时尚中获得平衡。以古典韵味设计现代生活,将繁复归于至简,将文脉神色融入线条与平面。
P. 15
P. 16
P.17
作为对理想生活的刻画,健身区域是不可或缺的配置。富有流动感的灰色大理石纹理,应和着空间的功能性。而带有线条感的灯光,为此地增添了些许呼吸。
P. 18
P. 19
吧,来自英文音译 bar,大意指聚会喝酒聊天交际的一个地方。而吧台,则是提供服务的核心区域。发展至今,在日常的生活空间中,吧台的设计成了提升品位外加休闲享受不二之选。
P. 20
P. 21
原木茶桌以简洁的线条,天然实木与厚重麻石的现代设计,融合出宁和的禅意。
一壶一茶一友,一场闲谈,收获无限。
P. 22
P. 23
P. 24
P. 25
P. 26
精致的餐桌
收纳有序的酒窖
生活的一切都有迹可循
简雅舒适
开放式的餐厅
使空间更加开阔通透
P. 27
P. 28
• 05
ANALYSIS
DIAGRAM
分析图
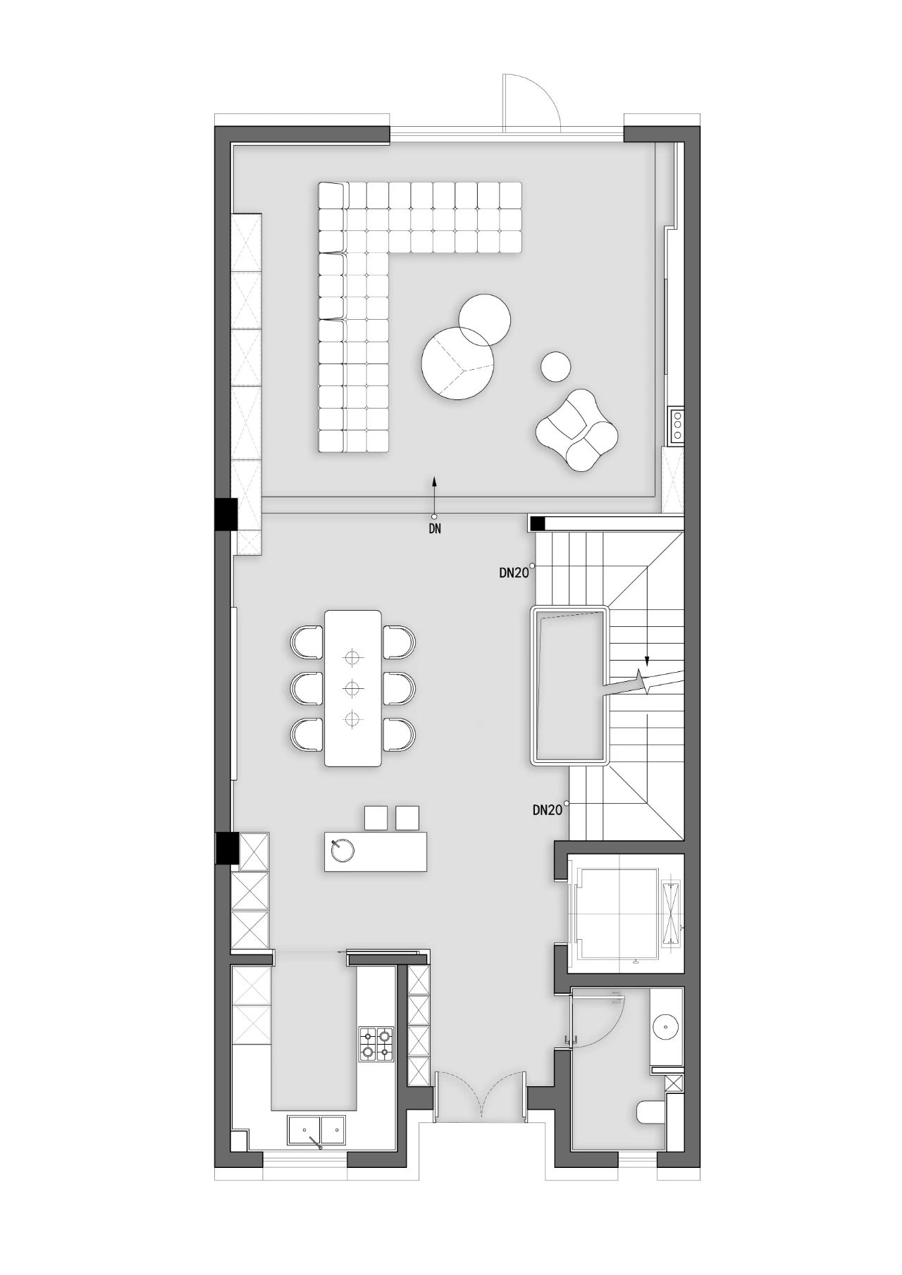
-1F 平面图 P. 29
1F 平面图 P. 30
INFO
- 项目名称 -现代私宅
- 设计机构 -茧界设计
- 主创设计 -冷晨辉
- 设计团队 -彭礼根、贾亭亭、高丽娟、刘晓龙、戴小建、毕玉翔
- 项目面积 -700㎡
- 项目地址 -浙江 宁波
- 项目摄影 -一空一间
DESIGNER
冷晨辉
茧界设计创始人 - 设计总监
上海茧界设计是一家由在室内设计界从业多年的优秀设计师创办并经营的、以设计事务为主的创作型设计机构。擅长酒店及别墅空间等规划设计、陈设配饰设计。设计团队秉承设计理念,创造出类型丰富的项目成果,这些项目成果无一不体现出我们对理论与设计的实践,是一支拥有着各种不同风格的设计团队。
客服
消息
收藏
下载
最近



































