查看完整案例


收藏

下载
【项目名称】:WAVE
【项目面积】:1500平方米
【项目地点】:中国 福州
【室内设计】:東形西見
【设计主创】:李超 陈志曙
【设计团队】:江伟 朱毅 陈志江 吴圣辉
【软装陈列】:東形西見 何物
【装置艺术】:华宇一塑 青骑士
【摄影】:吴永长
项目位于榕城闽江旁,融侨集团早年巨作,肩负着一座城市的理想,缔造福州地标,城市风华自由切换,正央地位不言自明。在本次软装设计中解构流行与文化,突破风格界限,带着自我意识中对人文的理解和态度重新审视陈设艺术与生活百态。
▼室内空间一览
设计从把控力的均衡上给人以稳定的心理感受,硬装设计干净明亮,软装则贯彻现代极简主义的原则,整个空间在协调中寻求冲突,在微妙的反差中获得鲜明的互补平衡。空间中的变调是色彩引发的视觉体验,颜色合而不同,中性灰作为过渡的中间色不偏不倚,让其他色彩在其衬映下呈现出最本质的面貌,一切都那么自然而然。
▼门厅
▼中厅,由简洁材料组成的纯净空间
▼客厅,配色优雅和谐
极简的形式美,木质天然的肌理触感,简单的颜色变化构造出清晰的轮廓,纯粹的材质成为空间的美学载体,伴生出优雅的气质。
▼餐厅和吧台,颜色和材料搭配简洁优雅
一动一静,大方高级的配色与温柔细腻的质感所构建出的时尚调性,带来不一样的俏皮气息,象征孩童纯洁无瑕的生命力。撷取温柔醇厚的摩卡棕为主调,加之抽象元素的独到运用而新意倍出,不同于寻常的刻板印象,将艺术渗透进生活,散发迷人的微醺美感。
▼富有韵律的楼梯
▼从楼梯看向中厅
卧室透漏着低调的品质感;蓝是贯穿全局的点缀色,或深或浅,静谧自然的氛围如一股清泉般缓缓地流淌其中。
▼主卧
▼次卧,蓝色墙面带来静谧之感
▼卧室,以木材为主,给人以温馨的感觉
整个空间通过层次性划分形成节奏,交织着光影的律动,我们本能地寻找具象事物与抽象情感之间的共鸣,辗转至内心深处,是精神上的自省,淡雅从容,宁静致远。
▼浴室
▼地下一层的休闲空间
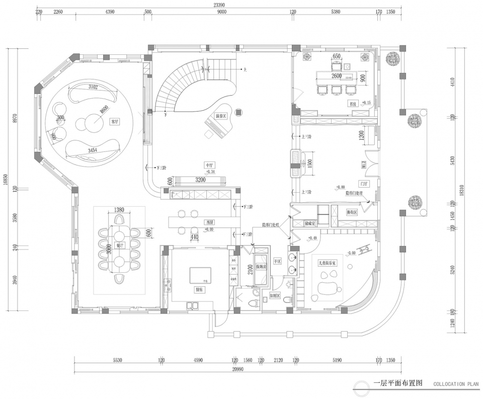
▼一层平面图
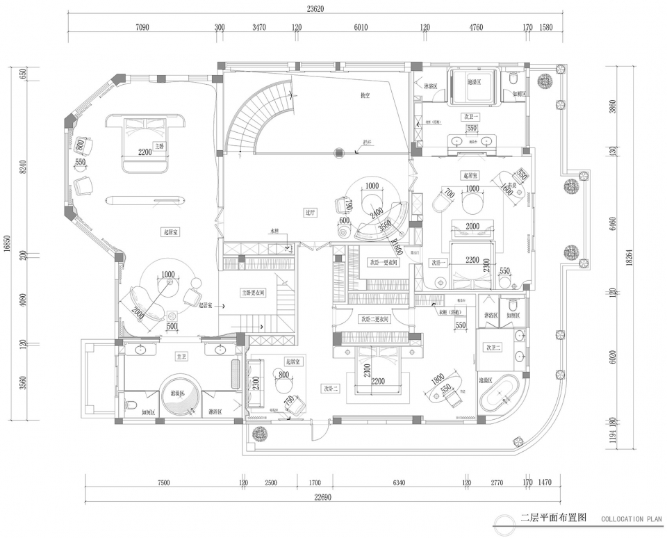
▼二层平面图
▼地下一层平面图
更多实景推荐:
泰国5255公寓设计 | 10DK工作室
清新北欧风,每一平米看起来都很美
工作室与居住一体化艺术公寓 | SVOYA设计
客服
消息
收藏
下载
最近





























