查看完整案例


收藏

下载

翻译
Architects:BHA studio
Area :550 m²
Year :2019
Photographs :Hoang Le
Principal Architect : Nguyen Xuan Minh
City : Thị xã Hương Thủy
Country : Vietnam
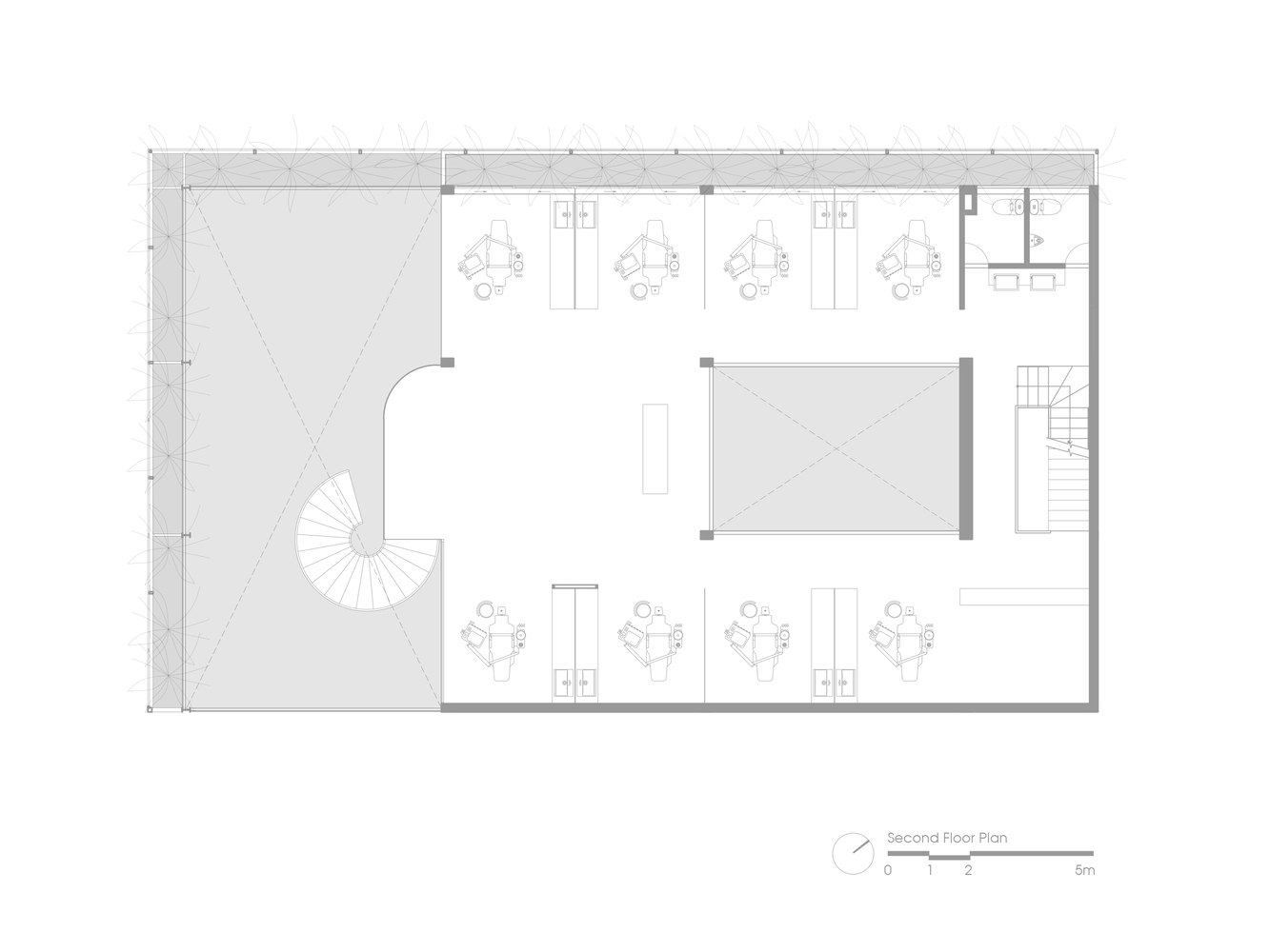
The dental clinic is located in Phu Bai, a small town near Hue city, Vietnam. It aims to improve better healthcare services for the local community. The project approach does not follow the nature of closed, dividing the typical feature of the current medical building in Vietnam. Instead, we create an open-space structure; trees and voids are specific elements of the dental clinic.
In addition to trees and lighting, the space aims to address customers' feelings while sitting, waiting, moving, healing, and interacting with different forms of service. It focused on a relaxed atmosphere designed with people in mind: customers, doctors, and service staff. The central atrium and the surrounding spaces for public and service allow the building to be connected from many sides, providing more flexibility for the internal function of the areas of operation and maintenance. In addition, the design focuses on the comfort of customers and employees.
The shell of the building is covered with an outer layer of steel curtain, followed by a layer of trees that are responsible for filtering the air and light for the establishment, delineating the inside and outside properties through the glass layer. Harsh climates are actively regulated through a multi-layered enclosure that makes the building's atmosphere natural, open, and pleasant.
▼项目更多图片
客服
消息
收藏
下载
最近


























