查看完整案例


收藏

下载
说在前面爱是一种纯粹的,人类精神所投射的正能量,而家正是注入了爱的能量,才更加的幸福温馨。现代简约在整体布局注重软硬装和谐统一,简练的装饰下呈现出一种高雅的气质,家不一定是眼前一亮的惊艳,但是整体给人的舒适感,也许正是我们所想要的家的感觉。就如同本案业主之间透露着的关系,看似平淡其实从很多小细节中透露着甜蜜和温馨。
本案业主夫妻与女儿同住,平时也是一家三口,偶尔才会有亲人和朋友做客,所以在原来的户型布局中需要增加多一个功能房,同时希望女儿的房间可以有更大的衣柜,以及书桌和布偶的收纳功能。
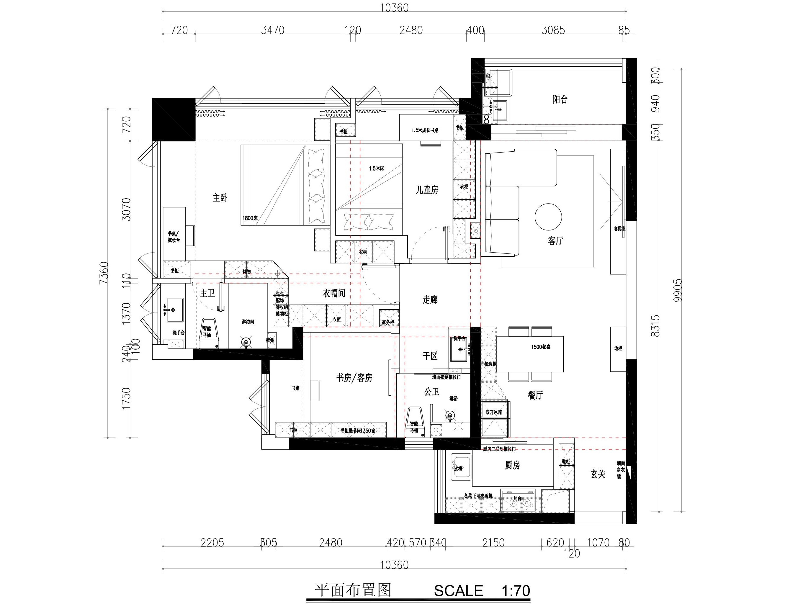
户型图
1. 入户需要鞋柜,方便进门或出门使用
2. 厨房位置偏小要考虑使用功能和采光
3. 主卧室衣柜不好摆放,需要大衣柜,同时保留卫生间
4. 走廊偏长且采光不够,女儿房希望增加更多的储物功能
5. 书房需更多功能,完善书房功能
1. 利用厨房烟囱位置改内嵌鞋柜,增加鞋柜功能
2. 原厨房墙体打掉,将厨房门做成三联动推拉门,门口整体打开让厨房光线更通透。将冰箱功能外置于餐边柜,让原本不大的厨房功能,更加简单且利用率更高
3. 主卧门位置移动,利用走廊及儿童房的的进深,做出衣帽间,同时围合式跟随卫生间墙体增加衣帽间储物量
4. 公卫将做干湿分离,洗手盆外置,改变走廊的动线,将原来的走向简化,改变的布局几乎无走廊
5. 儿童房进深优势,借一部分给主卧衣帽间,同时儿童房开间不够,借部分衣帽间深度,增加儿童房的面积,整墙的衣柜,更多的收纳
6. 书房书柜做隐形床设计,可以应对更多的使用场景
玄关
玄关利用厨房外墙做玄关柜,中间预留位置随手放置进门后的小物品、包包等,下方镂空预留灯带。镂空位置高度为15cm,方便放置拖鞋。
厨房
厨房L型料理台方便烹煮动线,橱柜选择隐藏式拉手的设计让整体看上去更简洁大方。
厨房将原门口墙体拆除改用三联动推拉门,空间感更强,增加餐厅与厨房光线及空气流通。冰箱外置于餐边柜,解放厨房内的空间,餐边柜350mm与冰箱650mm衔接位置用斜角整墙酒柜,化解过渡不同厚度墙体,也增加柜体之间的互动。
餐厅
岩板餐桌配上皮质餐椅,简约大气,透明餐边柜摆放的是业主的珍藏,餐桌紧靠橱柜方便物品的拿取。餐边柜吊柜与地柜之间预留600mm收纳使用。
客厅
客餐厅一体,空间更大气,入户右边的木饰面背景墙让客餐厅不会呆板,整体看上去多了几分暖意。
黑色皮质沙发搭配软糯地毯,干练舒适。大理石瓷砖光面的折射让客厅更明亮,电视下方镂空200mm,电视柜悬空减少卫生死角。
沙发背景墙仅预留壁龛做背景墙点缀,暖光吊灯增添了几分氛围感的同时,减少了沙发背景墙的空白和冷清。
卧室
主卧增加衣帽间,两边为顶柜衣柜厚550mm,拐角处为深咖原木玻璃展示柜,侧面转角外同样预留位置装饰柜,可以化解转角的尖角,将整体动线更柔合。
主卫改变开门方向后藏匿于衣帽间后方,更好地保护个人隐私。门的两边分别是储物柜和玻璃展示柜,为收纳提供更多空间。组合式梳妆台靠窗而立,光线好而不占地方。
皮质床背突显干练,床头两侧抽屉式高脚床头柜,与梳妆台和谐统一,回型吊顶内藏灯带作为主灯,躺下不刺眼。L型两侧落地窗窗台采光极佳,主卧整体通透明亮。
主卫窗台用百叶帘遮挡,柔和光线的同时保护隐私,一体式洗漱台下方镂空储物,减少卫生死角,墙边壁龛方便洗漱用品的摆放,淋浴区用玻璃推拉门隔断。
儿童房
小公主喜欢粉红色,所以儿童房主调为粉红色,进门右手边为小朋友的玩具收纳区,背景墙用粉白拼接,搭配粉色的小兔子造型床头,可爱又俏皮。
床尾利用承重和床的空隙做了个玻璃展示柜,下方收纳柜在侧方开门。床尾靠近窗台的位置为小朋友的学习阅读区。弧形吊顶侧边预留凹槽暗藏灯带,照明的同时不刺眼,给小朋友提供更好的照明环境。
书房
书房利用窗台的位置垫高做书桌,侧边为敞开式书架。
顶柜下方是可伸缩的折叠床,客人留宿的时候可以拉开,平时不用的时候合上,为空间提供多种使用模式。
卫生间
公卫干湿分离洗手台外置,下方镂空无卫生死角,同时可以摆放脏衣篮等临时储物以及未来扫地机器人也可以放置于此,长虹玻璃做空间隔断。镜柜既能满足照镜子又能满足储物,旁边的收纳架方便物品的摆放和拿取,鱼肚白瓷砖上墙,干净明亮。
淋浴间利用原排污管道做双面壁龛,一面用于淋浴间内部,一面用于马桶区域内,储物更丰富。
客服
消息
收藏
下载
最近





















