查看完整案例

收藏

下载
▲更多精品,关注“搜建筑”
构序支撑下的丰富场景,产业办公园区合集
gad 作品
产业发展是城市生长的动力,在当下信息时代,高新技术产业已成为新的增长点。因以人才集聚与密集的智力劳动为特征,其创造性的工作模式对物理空间提出了新的诉求,而相宜的工作场所也将推动培育人们的前瞻思维,两者互动关联。gad 新近落成的办公园区正符合这样的趋势,从选址到功能的衍生都紧密围绕着生态理念展开,内部空间组织灵活且复合,打破了传统写字楼整齐划一的封闭场景,为城市勾勒出职能更丰富的公共空间。
项目基地所在的浙江省舟山海洋科学城集聚了众多海洋科技创新资源,且西侧为规划绿廊,南临滨海公园,拥有一线面海的景观资源。为了落实上位产业布局和空间规划,并充分利用周边良好的景观条件,设计团队提出“企业社区”的概念,通过组团化的布局形成园中有院的开放交往空间。标准办公单元遵循弹性、高效的原则,以适应孵化园区内各类新兴中小型企业的办公需求。
△总平面
项目创新性地提出分散化独栋布局,与传统的塔楼加裙房的布局方式不同。围绕着中心庭院,13 个相对独立的标准单元按 3 至 4 个形成一组,其间各种尺度的庭院与连廊形成完整的底层交往空间,以营造社区氛围。车行交通组织在园区外围解决,内部适宜步行观景。建筑物体块组合关系丰富,通过屋顶轮廓的变化形成南低北高、西低东高的天际轮廓线,面向海景呈梯级式跌落。
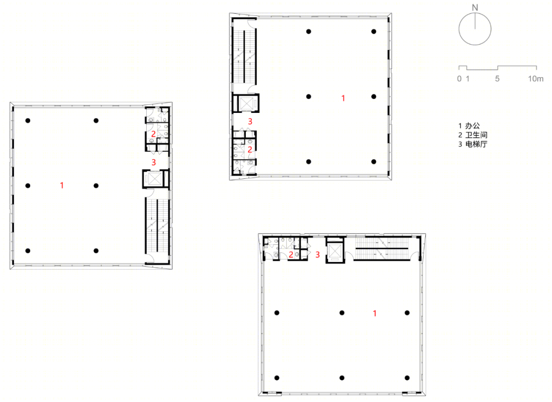
组团单元柱网规则,布局弹性机动,基本单元层 20x20 米,柱网 8.4x8.4 米,服务空间集中设置,释放出完整且三面开敞的办公空间,可根据入驻企业的规模切分使用,增强了园区经营的灵活性。
立面选用了白色穿孔网板与 LOW-E 玻璃幕墙结合,开启扇藏于白色穿孔网板之后,形成虚实对比、开阖有度的整体形象。穿孔板这一材质避免了楼栋间距较近带来的视线干扰,其 45%的通透率也可通过在东西两侧的大量使用遮挡阳光直射,有效降低建筑能耗。
△一号楼标准层平面
△ 四号楼标准层平面
△ 剖面
项目所在:浙江,舟山
项目类型:办公园区
设计/竣工:2017-2021
项目规模:46248㎡
建筑摄影:存在建筑,gad
△总平面
依托于杭州城西互联网产业的发展,场所营造主要从场地特殊性与未来特定的使用状态出发。园区地块背面邻水,周边由低密度住宅区包围,场地现状导向了清晰的设计逻辑:建筑必定不是作为一个巨大的集中性体量闯入。同时考虑到办公用户以年轻的 IT 从业人员为主,他们将在这里度过每天近三分之二的时间,空间的多样性与趣味性不可或缺。
△设计策略示意
设计借鉴了“半宅半园”的传统空间类型,由五组相对独立的矩形体量单元通过横向与纵向组合,形成半开放的围合关系。
在面对相对规整的基地与较高的容积率要求时,这不仅体现出经济性与合理性,也在重叠与交叉中创造了一院一境的办公氛围。
在矩形体量下方,另外置入扁平的正方形体量,在共通中包含错落变化,可灵活应对后期功能设定的调整。
为向使用者提供有别于传统模式的办公体验,功能布局将各区域交互融合,更从流线上强调了行为的可能性。L 形围合体量的差异化层高处理,形成多处可停留可休憩的空中花园,并将远景引入场地内。
建筑体量下方的灰空间将相对独立的院落串联起来,使用者可穿梭其间。在场地西北部的临河处,被托举的餐厅自然形成下沉庭院,将是场地内的空间聚点。
园区外观呈现出透明开放的状态,同样隐含了创作过程中的秩序性。外立面采用了玻璃及颜色相近的石材、铝材,以材料的光影和肌理效果来塑造每组建筑的个性。
天光、云影、绿树等自然元素的引入过渡了室内外空间,在形式背后增添了办公之余的氛围表现。
△东立面
△西立面
△剖面
项目所在:浙江,杭州
项目类型:办公园区
设计/竣工:2017-2020
项目规模:28025㎡
建筑摄影:陈曦
办公园区的内涵正在不断外延。通过丰富的经验积累,gad 积极预判未来的办公模式,不仅塑造出弹性化的功能空间与自然生态互融互通,承载后疫情时代对人性化办公的关照,也着力建构园区内外的对话关系,使其服务于区域产业结构的升级和优化,激发更具公共关怀的城市理念。
▼ 更多精品·点击关注
本资料声明:
1.本文为建筑设计技术分析,仅供欣赏学习。
2.本资料为要约邀请,不视为要约,所有政府、政策信息均来源于官方披露信息,具体以实物、政府主管部门批准文件及买卖双方签订的商品房买卖合同约定为准。如有变化恕不另行通知。
3.因编辑需要,文字和图片无必然联系,仅供读者参考;
7 月 14-15 号,杭州绍兴·精品楼盘考察
▼点击下图,了解报名
推荐一个专业的地产+建筑平台
每天都有新内容
合作、宣传、投稿联系
阅读原文:“gad”更多精品
客服
消息
收藏
下载
最近









































