查看完整案例


收藏

下载
温润质朴的自然,仿若户外的一片秘境,治愈身心 释放压力的自在放松
01
SLOW
慢
当你走进这里,空间暗,时间也变慢了,通过视觉 触觉 听觉 嗅觉的感受,每眼是风景 举步皆如诗
02
FLOW
流
流线型墙面,作为贯穿室内外的建筑体块,宛如一条河流展开,汲取节奏与韵律,透过弧形的错落与均衡展露,形为定格 意在讲述
03
ELEGANT
雅
一弯绿, 一盏热茶,一抹悠香,都是令人心神向往的恬淡意境,静得其间,于雅香袅绕的空灵中觅得安宁
一片简单纯粹的场域,物件的质地轮廓被映衬得格外耐人寻味,光影柔和了静与郁两种层次
局部原木和中古家具的点缀,呈现出质朴又温暖的感觉,这大概就是大自然的迷人所在
设计师整体以大地色系为基调,中性暖色是调色盘中永不过时的经典,温暖又舒适 优雅又高级,低饱和度的柔和色调 不张扬 不媚俗,它既不像高饱和度的彩色系一样活泼奔放,也不像黑白那样简洁,它呈现的是一种温暖的 舒适的,平静优雅的空间,置身于其中可以让人身心放松
04HEART心
运用精心设计的创意,达到一房即一景的审美感受,心之所向 身之所往 终至所归,通过特殊处理来覆盖连接,以使外观具有吸引力和自然
特殊的弧形艺术造景墙面,仿佛从墙中自然生长出来一样,肌理漆的运用具有强烈的自然气息,粗粝且质朴 有着来自原始的包容性
圆 从无到有,或许现代设计已经沉溺于横平竖直的陈规,但是空间本不该如此单调贫瘠
05
ANALYSIS DIAGRAM
分析图
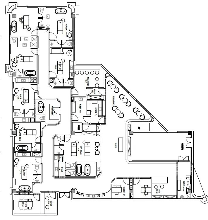
平面图
爆炸图
项目名称:心 SPA
主持设计:沈芳
设计团队:高雪可 程颖 唐甜 郑德丰
设计机构:潜木设计
软装&灯光设计:潜木设计
项目面积 -470㎡
项目地址 -江苏 常熟
项目摄影 -鑫空视觉
客服
消息
收藏
下载
最近





































