查看完整案例


收藏

下载

翻译
Architect:Best Practice Architecture
Location:Seattle, United States
Project Year:2015
Category:Shops
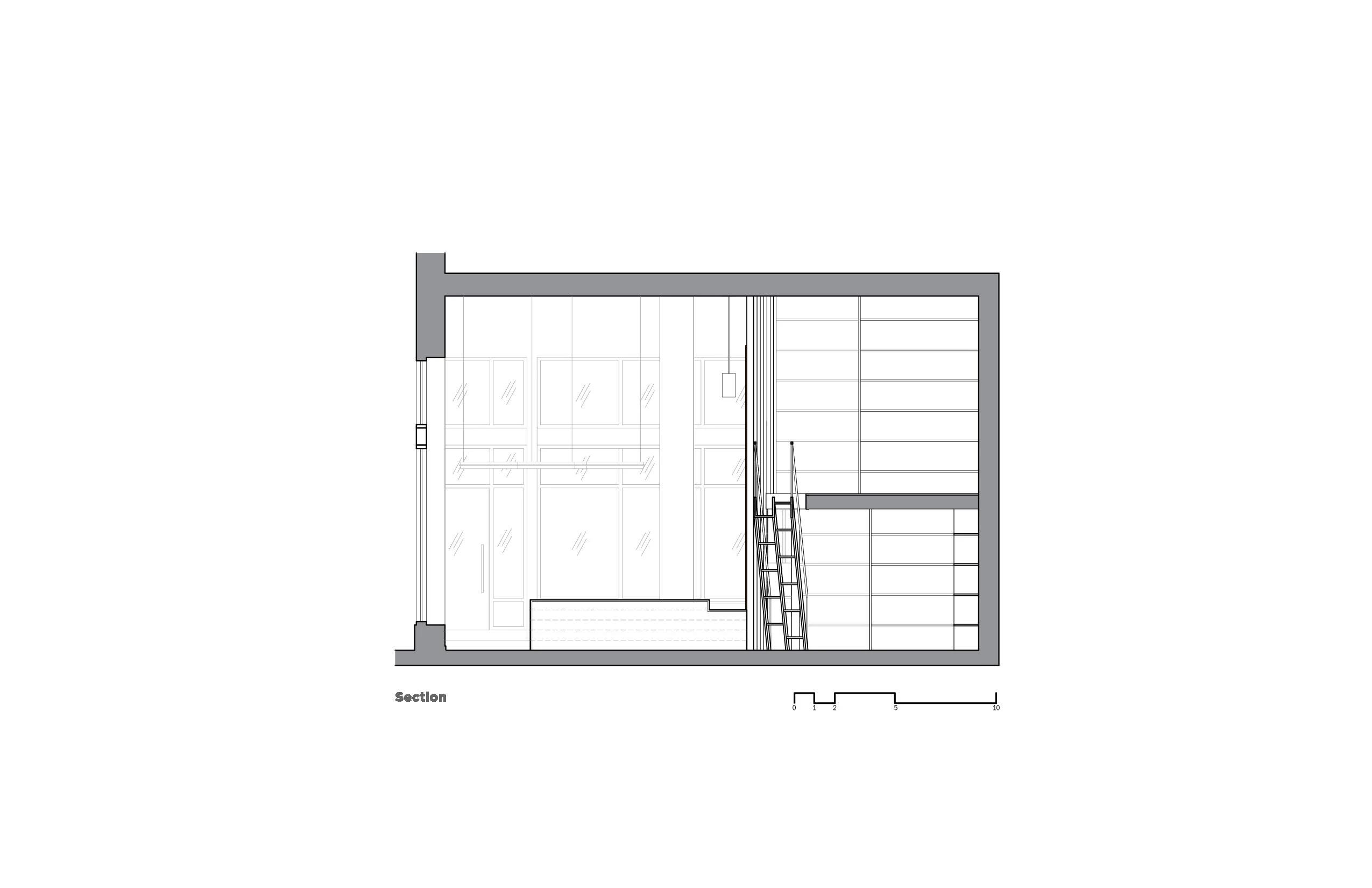
Likelihood aspires to elevate the level of footwear & fashion for the discerning Seattle gentleman. Designed by Best Practice Architecture in close collaboration with the owner, this shop makes its home in the busy Capitol Hill neighborhood. The space occupies a corner in a new residential building and has large windows on two sides that add plenty of natural light. Believing that the shoe shopping experience should feel fun, leisurely and exciting, the design elements are fairly restrained and seek to highlight the product. Clean lines and open spaces were critical for the look and feel of the boutique as well as the customer experience. Nods to mid-century design are expressed in the cedar wood screen wall that hugs the ziggurat style shoe display and divides the main space from the back of house & storage mezzanine. The Best Practice team designed and had fabricated the large, hexagon light fixtures to add presence and pattern in the tall space. Mirrors were placed to enliven and reflect the neon wall art by Canadian artist Kelly Mark, all while maximizing daylight from the large West facing windows.
▼项目更多图片
客服
消息
收藏
下载
最近

















