查看完整案例


收藏

下载

翻译
Firm: KP Architects & Interior Designers
Type: Commercial › Exhibition Center Cultural › Museum Educational › Auditorium
STATUS: Concept
SIZE: 25,000 sqft - 100,000 sqft
Planetarium – A Museum of Astronomy
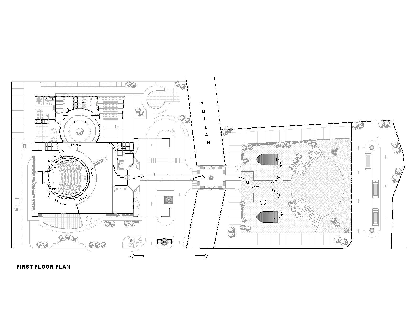
A design was presented by our firm in a competition for the proposed Planetarium in the city. Site was allocated adjacent to highway with an access through service road and a nullah dividing the plot midway creating separate zones for the main building & the parking area. Considering the landmark status this building may achieve, our objective was to project a simplistic and efficient design with a contemporary approach and achieve the essential principles of architecture required for such a public building.
It was conceptually achieved by our inspiration from the elements like water, land & the space, the three things that struck our mind on thinking about Planetarium- a study of the outer and deeper space from where we stand.
‘Water’ is one of the most crucial things required for life sustenance and it also signifies smooth flow and circulation. ‘Land’ is something limited that we have and conservation of resources is of utmost importance in today’s times.Mankind has always been in awe of ‘Space’ due to its limitless expanse and grandeur.The Space in itself seems to be functioning aesthetically.
For such a public building it is most essential to stress on the functionality and achieve good circulation system in order to create a smooth flow of movement throughout the complex. An effort was taken to move the visitors arriving in the complex in a way it will create a smooth flow of the public ensuring that they enjoy all the facilities in the building conveniently. Also, we worked on making it environment friendly and self-sustainable by energy efficiency, water conservation through rain water harvesting, material efficiency and various factors that are necessary to make it a green unit. The design with all these considerations and planning was done in a simplistic way adding a certain character to the building. The domed theater is placed at the upper level strategically to attain ample visibility from the flyover on the highway. It signifies the planet or a matter, engulfed in an outer spherical transparent shell denoting space, symbolic to leap of the mankind in space. The outer shell’s transparency also indicates that although man has reached space, its boundaries are way beyond his realm, pointing towards infinity.We proposed an ‘Astronomers Monument’ in the complex, commemorating the work of great people who have contributed in astronomical study by reaching out as far as possible in the space.
In this way, we derived the essential architectural principles of good circulation &functionality, self-sustainability thru energy efficiency and conservation of resources along with aesthetics through our inspiration from the natural elements, thus explaining our approach towards the design.
The design was declared as a runner up in the competition.
客服
消息
收藏
下载
最近






