查看完整案例


收藏

下载
吟一段烟花烂漫
听一曲月色未央
邂逅几许寒风透窗
烛影摇红,风舞幔帐
乱了流年
梭罗说“我愿意深深地扎入生活,吮尽生活的骨髓,过得扎实,简单,把一切不属于生活的内容剔除地干净利落,把生活逼到绝处,用最基本的形式,简单,简单,再简单。”
本案为现代简约风格,一点一滴都凝结着设计师的独具匠心。简约不等于简单,它是深思熟虑后的创新设计。
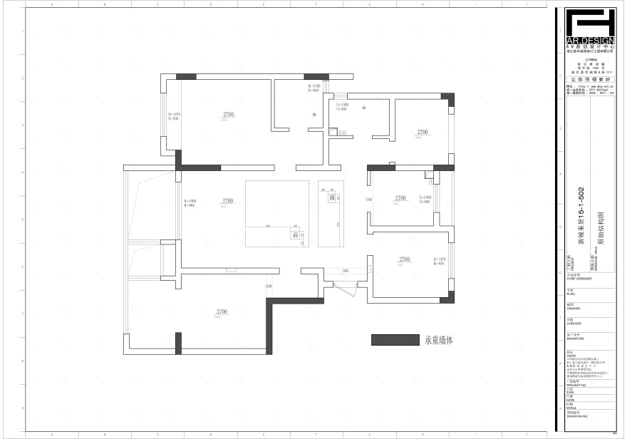
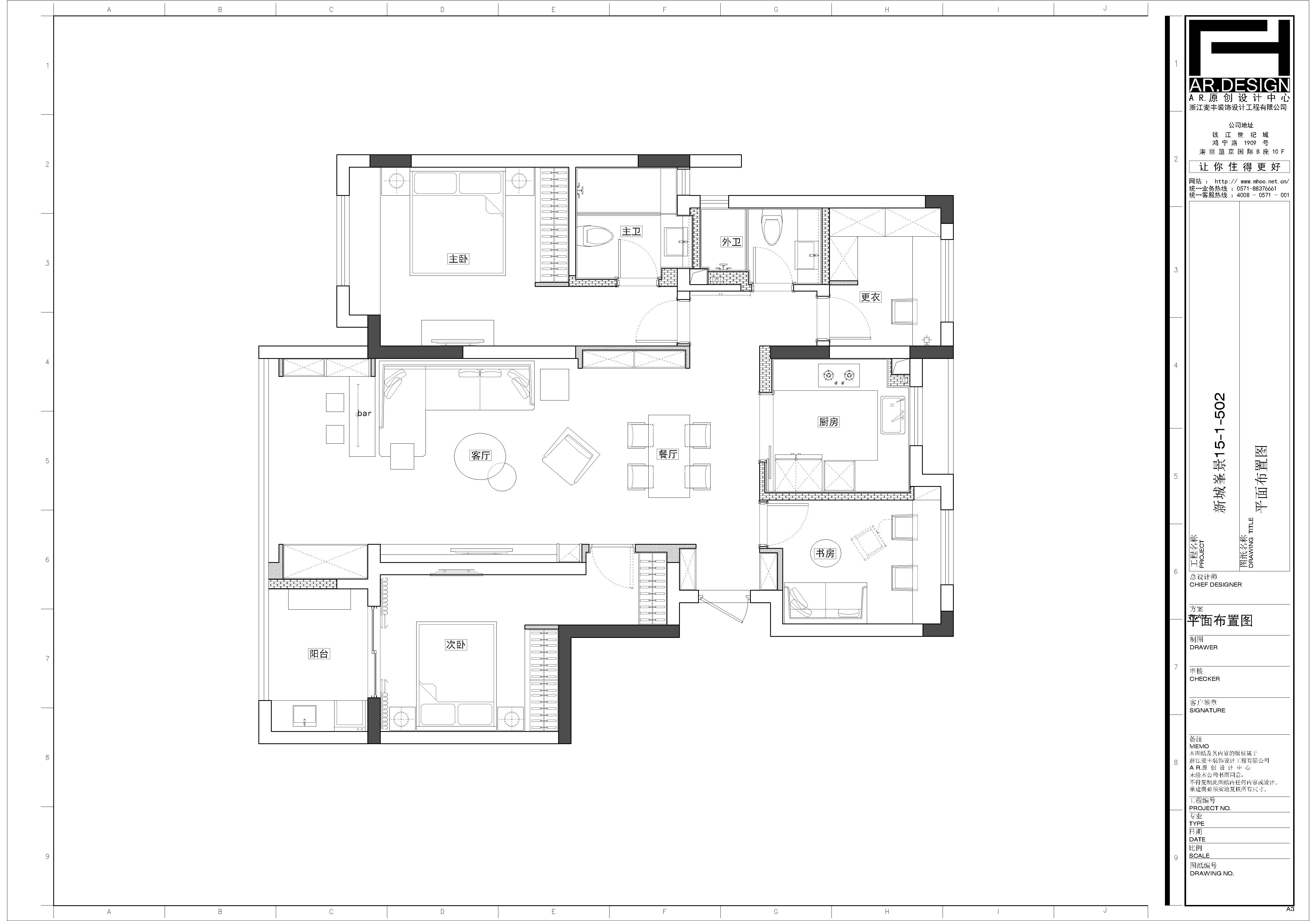
设计方案(户型对比图)
业主偏爱简约风格,希望设计师能够删繁就简,让家回到充满生活肌理的最初模样。本案户型比较方正,结合业主对功能的需求改动较小。
设计师根据业主的诉求,增加了全屋储物收纳功能;次卧的门朝向客厅,作了隐形门设计,关上的门能够与背景墙完全融合,拓宽视觉效果的同时亦增加了隐秘性。
客厅选用了些深色家具,稳重而有韵味,配原木色墙面漆,营造出最质朴的温馨感,让空间高雅而干净利落。黑白条纹的地毯与装饰画相呼应,将色彩、纹路和几何的搭配融于一身。
厨房是家里最有烟火味儿的地方,将厨房设计成U型,这样不仅可以容纳更多的电器、厨具等,几个人同时下厨也不会感觉很拥挤。
客餐厅采用了完全开放式的设计,不仅使得视觉上得到延伸,两个空间的光源也能通融交汇。温润的原木黑、雅致的米白落定餐厅空间的基调,柔和且大气。吊灯增加用餐的氛围,餐桌与餐边柜的色调统一。如果说厨房是家的心脏,那么,餐桌就是这心脏的语言,千言万语拼凑出生活的模样。
设计师希望能给业主简约的视觉感受,巧妙地利用隐形门来打破空间的格局,整个背景墙选用了木饰面板,既显轻盈一体又能够配合整体的原木风格,营造了惊艳的视觉效果。
次卧的落地窗不仅提供无限量的采光,增加空间亮度,还使视觉上更加开阔。浅色风轻云淡水墨墙纸配上床边木质装饰,让整个屋子多了些文艺的气息。
独具特色的床头灯是提升主卧格调很重要的一部分,皮质的床头装饰让卧室看起来更加奢华大气,搭配水墨墙纸,让卧室色彩上更加丰富。
完美的飘窗设计,让卧室充满韵味。闲暇之余,喝喝下午茶或看书、工作,享受属于自己的诗和远方。
壁纸装饰了书房,书房装饰了思想。书房那一片写满怀旧感觉的艺术墙纸仿佛被冲刷过一般,一点一滴似乎都拥有不同的记忆,唤起我们对古典书香的向往。
卫浴
看似很平淡的家,实则方方面面注入了我们对美好的向往,以及我们想和心爱的人共度美好时光的热忱之心。
案例信息
项目地点:杭州・新城峯璟
项目类型:住宅
项目性质:半包
项目面积:128㎡
项目风格:现代简约
设计师:麦丰国际设计
施工:浙江麦丰装饰设计工程有限公司
软装:东麦家居
主要用材:饰面板 乳胶漆 水泥砖 地板
文字编辑:叶子
客服
消息
收藏
下载
最近


















