查看完整案例


收藏

下载
生活的原貌是五彩缤纷的,赤橙黄绿青蓝紫是并存的。我们不能忽略当下的生活,也不应该忽略未来的生活。一缕阳光、一杯清茶、一株绿植,都会让生活多姿多彩。我们也应该享受多彩生活里的幸福。生活是动态的,时间流逝循环往复着一切。古典的典雅之美,潮流的前沿之美,都让人陶醉。都不想放过,想要都拥有,这次不用再说“鱼与熊掌不可兼得”,几经交流、多次易稿,终获得自己想要的舒适生活空间。
项目信息 / Project information
[楼盘名称]:国奥村
[项目面积]:77㎡
[装修风格]:现代美式
[硬装设计]:素朴设计.朱虹
[软装设计]:素朴肆月软装.大王
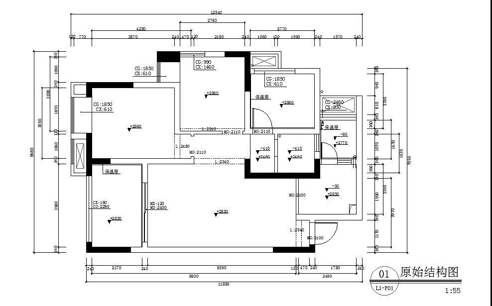
户型图
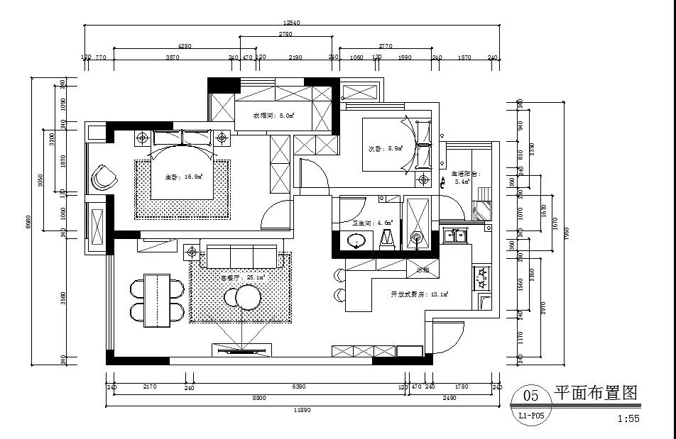
平面布局图
空间设计・「Space design」
・入户
原入户门洞不大,舍弃整壁柜子,留出足够的空间方便将家具迎进门。
・客餐厅
(1)把景观阳台与客厅放在同一空间,视野更开阔。餐厅移至窗边,虽然比不上曲水流觞的意境,却也能美食美景同享。
(2)改变生活阳台出入口,不再进入厨房叨扰烹饪美食的人,从卫生间进入,在两人居住的情况下,把功能最大化。
(3)原餐厅的位置,连接着操作台做一个吧台,也可以做为早餐台使用。
・卧室
(1)把三房改为两房,中间的卧室分到两边卧室,次卧可以正常使用,衣帽间也有了它的空间。
(2)在满足次卧能放一米五的床的情况下,在进门处增加一面收纳柜。
Living room | 客厅
大部分时间,我们都在客厅度过。在这里,可以看电视、看书、做手工、聊天……不得不说,客厅是一个多功能区。客厅墙面以灰色为主,搭配美式格调的家具,有档次的生活空间跃然眼前。
在这个空间,金色反复出现:茶几的边与脚、餐边柜的把手与脚、灯杆……仿佛在向人诉说未来生活的美好。
电视墙采用对称的线条设计,视觉上更平衡、稳定。可移动的绿植,不同的位置,不同的装饰效果。
大脸招财猫摆件。笑的快要裂到耳朵边的嘴角,给空间增添了一丝欢乐。它还可以容纳各种小物件,容纳生活的点点滴滴。
Dining room丨餐厅
俗话说,人是铁,饭是钢,一天不吃饿得慌。不管身在何方,不管多忙,都要好好吃饭,好好照顾自己。在这个属于味蕾的空间,打破了原有的特定设计。餐桌与窗户成了“邻居”,享受美味的同时也享受着窗外的风景。
The kitchen丨厨房
厨房是一个极具烟火气的地方,不仅有各种餐具、厨具,蒸腾的烟火,扑鼻的香气,更是承载着一家人对家和美好生活的眷念。一家人,朝与暮,饮与食,一辈子,胜却人间无数。
The master bedroom丨主卧
卧室,主人公的私人空间
选择了像橄榄果实那样的青绿色——橄榄绿
复古橄榄绿+原木地板
大地色系的相遇带给空间天然的感觉
静谧的氛围,可以酣然入睡
The secondary bedroom 丨次卧
每一间卧室都是一个优质的睡眠空间,亲友小聚,彻夜长聊,一张舒适的床,除去今日的疲惫,明日再续聊。
有的灯用来照明。有的灯除了照明,还可以用来观赏。
Cloakroom 丨衣帽间
客服
消息
收藏
下载
最近






























