查看完整案例


收藏

下载

翻译
Architect:SHAU
Location:Semarang, Semarang City, Central Java, Indonesia; | ;
Project Year:2021
Category:Shops;Restaurants
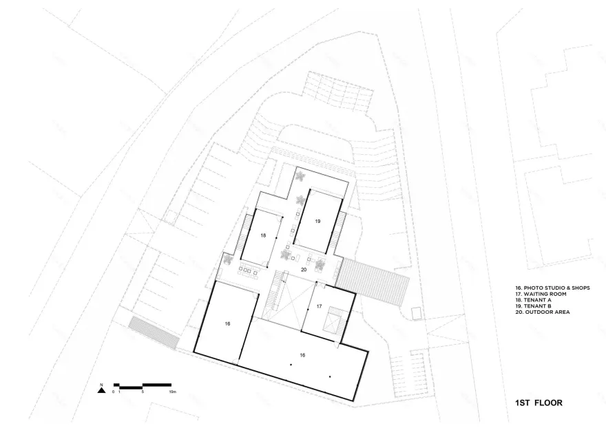
DipoMuria commercial center in Semarang, Central Java, Indonesia,hosts a photostudio, restaurant, café, and retail shopand is modelled after an urban village typology. On onehand this makes the design fit better into the low rise and small-scale residential neighborhood and on the other hand also gives the possibility to play with the volumes and provide more experienceable sequences of in-between spaces to explore and hang out.
The volumes are grouped around a central courtyard, the heart of the ensemblewhich is connected to the outside but also to terraces on the second floor.The courtyard features a slide for kids to play but is also usable as backdrop for action and group photo shootings.
The village-like massing is split horizontally through change in materiality and color having a more grounded plinth level containing all the outer stairs, materialized by rough plaster and a smoother and reflecting upper level in form of polycarbonate façade cladding.
Most of the larger, glazed façade openings are facing North-South direction and are shaded by overhangs whereas the East-West facades are more closed, and openings are located behind the polycarbonate facades. The window to wall ratio is also kept to a minimum to reduce unnecessary heat gains. The outdoor areas provide ample seating areas.
Brazilian fern trees with their slender appearance underline the minimal character of the assemble and provide an additional texture on the facades during certain times of the day in form of shadows cast by the filigree leaves.
Designing and realizing architecture in an Indonesian context requires a high level of commitment and soft communication skills unlike any other- this project is no exception. Despite budgetconstraints SHAU achieved an elegant and refined appearance generatingan atmosphere more related to cultural architecture rather than commercial architecture.
▼项目更多图片
客服
消息
收藏
下载
最近



















