查看完整案例


收藏

下载

翻译
Firm: NEOHouse CTy Thiết Kế Kiến Trúc Biệt Thự-Nhà Đẹp
Type: Commercial › Office
STATUS: Built
YEAR: 2021
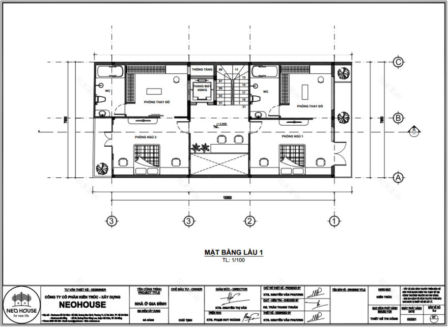
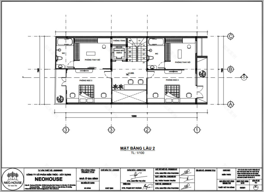
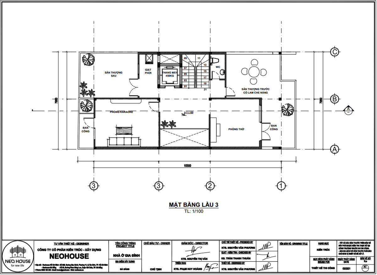
Thiết kế nhà phố cao tầng là một trong những loại hình kiến trúc nhà ở kiên cố về hình khối và mức chi phí đầu tư cùng thời gian thi công vừa phải. Tuy nhiên mẫu thiết kế nhà thể hiện một kiến trúc sang trọng, một không gian sống đẳng cấp và khoa học. Mẫu nhà phố mặt tiền rộng 8m 3 tầng 1 tum dưới đây được xem là một siêu phẩm kiến trúc đẹp bùng nổ với phối cảnh hoàn hảo từ ngoại thất cho đến nội thất bên trong nhà.
Hãy cùng chúng tôi khám phá và chiêm ngưỡng những điều tuyệt diệu về hình khối, cách phối màu, trang trí vật liệu hoàn mỹ của công trình nhà phố đẹp dưới đây để biết chi tiết nhé.
Xem chi tiết: https://neohouse.vn/portfolio/mau-nha-pho-mat-tien-rong-8m-3-tang-1-tum-hien-dai-tai-da-nang/
客服
消息
收藏
下载
最近








