查看完整案例


收藏

下载

翻译
Firm: NEOHouse CTy Thiết Kế Kiến Trúc Biệt Thự-Nhà Đẹp
Type: Commercial › Office
STATUS: Built
YEAR: 2021
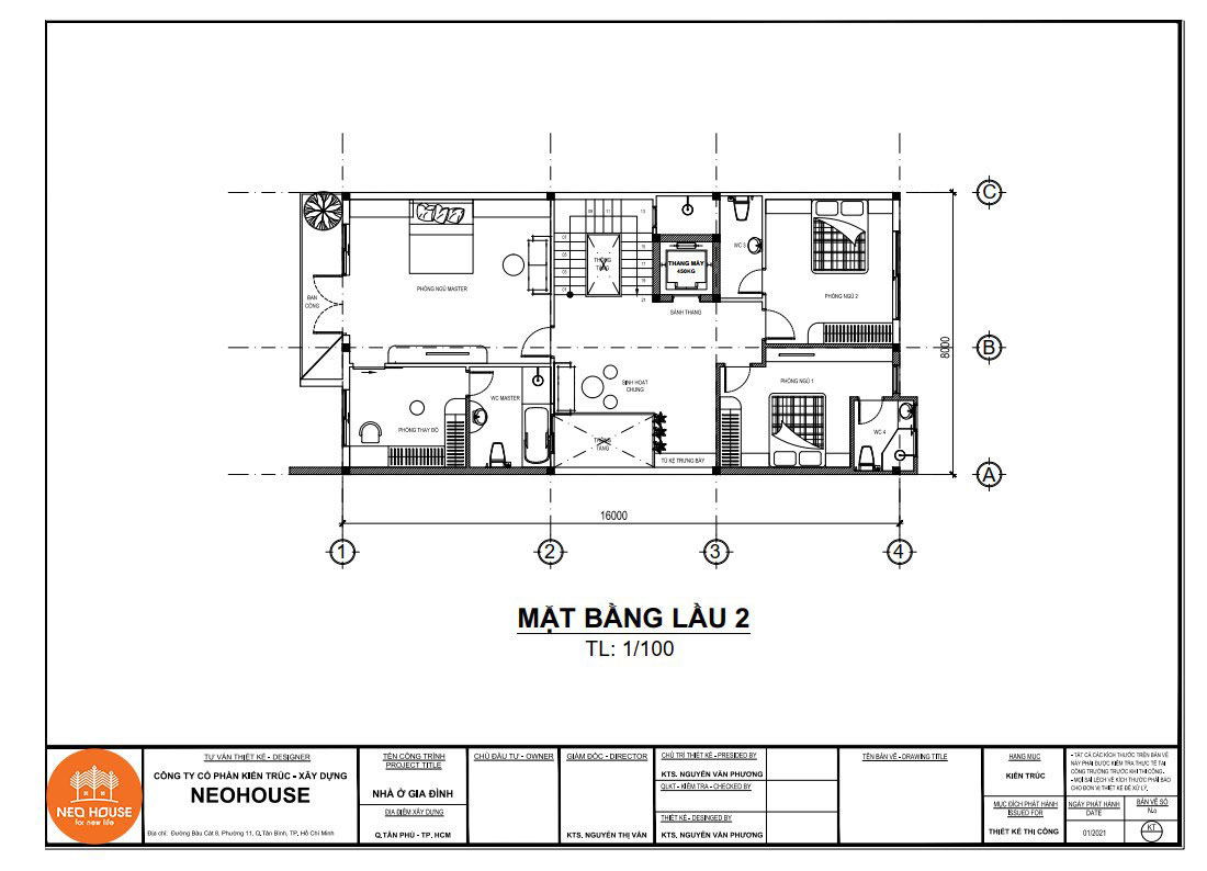
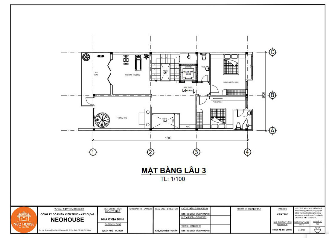
Mẫu nhà biệt thự phố tân cổ điển 4 tầng đẹp với phối cảnh kiến trúc sang trọng và bề thế, cùng với mặt bằng công năng khoa học, đã và đang mang đến những không gian sống hiện đại, tiện nghi nhất có thể cho các gia đình hiện nay.
Hãy cùng chúng tôi khám phá mẫu thiết kế nhà biệt thự phố tân cổ điển 4 tầng 5 phòng ngủ, nhiều chức năng sinh hoạt đáp ứng mọi nhu cầu sử dụng cho gia đình có nhiều thành viên cùng sinh sống. Hy vọng, chúng sẽ là một trong những phương án thiết kế mới mẻ, khoa học giúp bạn hoàn thiện ý tưởng thiết kế trong công trình tương lai của gia đình mình nhé!
Xem chi tiết: https://neohouse.vn/portfolio/thiet-ke-nha-biet-thu-pho-tan-co-dien-4-tang-sieu-dep-tai-hcm/
客服
消息
收藏
下载
最近












