查看完整案例


收藏

下载

翻译
Firm: NEOHouse CTy Thiết Kế Kiến Trúc Biệt Thự-Nhà Đẹp
Type: Commercial › Office
STATUS: Built
YEAR: 2021
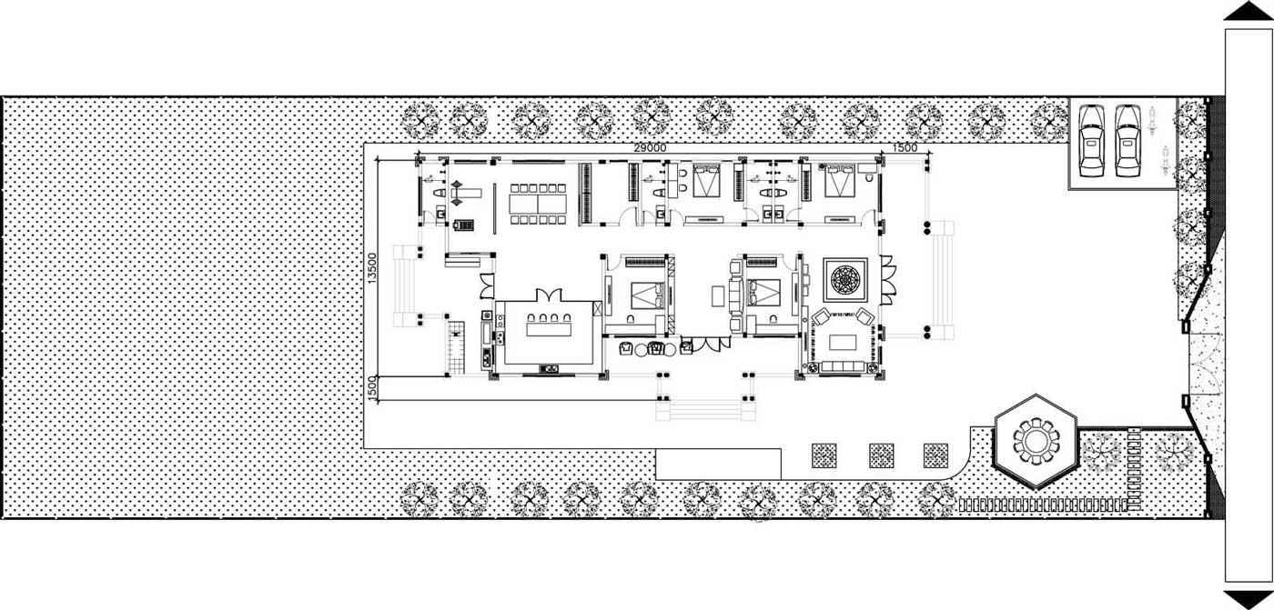
Với những gia đình có điều kiện về kinh tế ở quê, thì những mẫu biệt thự kiên cố luôn là một trong những lựa chọn hàng đầu. Mẫu biệt thự 1 tầng 4 phòng ngủ mà chúng tôi muốn giới thiệu đến quý khách hàng và bạn đọc dưới đây được xem là công trình vừa toát lên sự bề thế, chắc chắn của kiến trúc, vừa thể hiện sự mềm mại, uyển chuyển của các phào chỉ trang trí nhẹ, đi cùng mặt bằng công năng bố trí khoa học, được tính toán kỹ lưỡng, hứa hẹn sẽ là phương án đáng để bạn tham khảo và chiêm ngưỡng.
Ngôi nhà biệt thự 1 tầng 4 phòng ngủ có diện tích xây dựng 400m2, tổng diện tích 1200m2, khu đất còn lại được sử dụng cho việc thiết kế sân vườn, tiểu cảnh xanh. Công trình biệt thự được thi công hoàn thiện với kinh phi 3,5 tỷ và thi công hoàn thiện nội thất 1,15 tỷ có tại lạc tại Tiền Giang, thuộc quyền sở hữu của chị Vinh.
Xem chi tiết: https://neohouse.vn/portfolio/thiet-ke-nha-biet-thu-1-tang-4-phong-ngu-mai-thai-400m2-tai-tien-giang/
客服
消息
收藏
下载
最近









