查看完整案例


收藏

下载

翻译
Firm: NEOHouse CTy Thiết Kế Kiến Trúc Biệt Thự-Nhà Đẹp
Type: Commercial › Office
STATUS: Built
YEAR: 2022
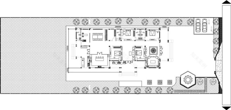
Xã hội đang không ngừng phát triển mạnh mẽ, giữa cuồng quay của cuộc sống hiện nay, có những người chọn một ngôi nhà cao tầng, xa hoa lộng lẫy để thể hiện sự đẳng cấp, lại có những người lựa chọn quay về với các mẫu nhà cấp 4 kiểu dáng cách tân hiện đại. Bởi vậy, mặc cho những công trình cao tầng đang mọc lên ở khắp nơi, nhà cấp 4 4 phòng ngủ vẫn đang được rất nhiều chủ đầu tư lựa chọn.
Một vài những ý tưởng thiết kế, các mẫu bản vẽ thiết kế nhà cấp 4 4 phòng ngủ đẹp dưới đây sẽ giúp bạn hình dung được rõ hơn về phương án thiết kế, ý tưởng xây dựng ngôi nhà cấp 4 cho gia đình mình trong tương lai. Cùng chúng tôi tham khảo những hình ảnh phối cảnh cũng như các bản vẽ mặt bằng công năng sử dụng dưới đây bạn nhé.
Link: https://neohouse.vn/nha-cap-4-4-phong-ngu/
客服
消息
收藏
下载
最近









