查看完整案例


收藏

下载
在7500平方米的万科云城设计公社里,古罗马建筑的各下沉式建筑、圆柱、多孔拱门,以繁为简,重塑建筑之美,整体感有趣得很像模块化的迷宫设计。
PokiLife外部发光字体打造的门头LOGO,轻易的就可以吸引顾客的目光,从室外观看PokiLife通透敞亮玻璃盒子的穿透,室内里精美家居以及灯光反射,波光粼粼的若隐若现的不仅是室内的空间还有被玻璃折射出室外的建筑,增添空间更多可能性,画面一虚一实,相互成影子。保证空间采光的充沛饱和,只叫人迫不及待想进入室内观赏。
PokiLife室外的用餐区,底部铺满舒心的大草地呼应着设计公社的草地主题,左右相对的两套桌椅,桌椅均由流利精致的金色线条组成。
贴心的遮阳伞为大家遮风挡雨,空气中弥漫着温暖的舒适,在温暖安静中惬意得闲聊望着设计公社的建筑元素就像在北欧沐浴着阳光。
进入大门一大面白色大理石与slogen映入眼帘还有精致网红家具的搭配美好映入眼帘,侧面的的蓝色大海洋更为突出室内海洋的设计主题,空间作为餐厅展示的缓冲区,创造出新的空间美学意涵。
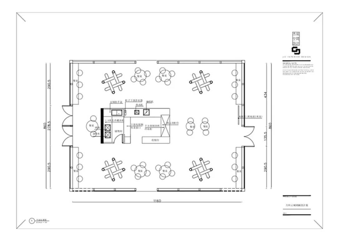
109㎡的PokiLife四建根筑主体高为4.5m的立柱,既稳固了空间结构有增强了空间气场。
用中轴对称的设计手法,让厨房部分作为一个大量体在空间正中央,但再利用镜子折射效果,弱化量体,呈现轻盈感;与周遭的吧台区,跟四边的立柱得到完美的空间上的平衡。达到空间比例的高度和谐与对比。再往前走到另一向门前,底部以透明玻璃下的蓝天白云的地板更是别具一格。
室内随处可见的绿植,增添了空间的生命力;PokiLife 的灯光浪漫而温暖舒适的色调反射到各种通透质感的软装不刺眼的亮晶晶bling bling光影,瞬间激活空间,波光粼粼地成为空间艺术不可缺少的一部分。109㎡的PokiLife功能模块区域划分、动线优化合理可接纳100人的承包派对活动。
▲平面图
▲立面图
▲剖面图
项目名称:波光粼粼
设计方:台北杰宸室内设计有限公司
项目设计时间:2018.8
项目完成时间:2018.12
项目地址:广东省深圳市南山区西丽街道万科云城设计公社A311
建筑面积:109㎡
合作方:软装设计—菁邸美学教育有限公司
客户:PokiLife指点生活餐饮管理(深圳)有限公司
装修主材:木地板,折叠门,隐藏门,吊灯,大理石
摄影版权:PokiLife指点生活餐饮管理(深圳)有限公司
客服
消息
收藏
下载
最近























