查看完整案例


收藏

下载
当淅淅沥沥的细雨光临,人们忘带雨伞,穿行小巷时总会往寮檐下行走,躲避不时飘落的绵绵雨丝。顺带还能听听落在瓦屋上的脆脆雨声,像是在听美妙的雨打芭蕉、水滴梧桐,轻轻重重、远远近近……偶然会遇见一两位做小买卖的,躲在寮檐下避雨,譬如卖白兰花的、或是卖糖粥的,一定会绕开她行走,决不会去侵犯她那一小片屋檐……
本项目是苏州思肴餐饮有限公司旗下第一个以“一城半点”作为品牌主营中式面点的实体餐饮店铺,“一城半点”旨在“古法研制,点心工坊”。与苏州新晋设计事务所——CHAO 巢羽设计事务所合作,联合打造新品牌,是思肴餐饮期望以全新的中式餐饮品牌走向大众的第一步。
CHAO 从“一城半点”的内涵出发,以“一座城市,半点生活”的理念创建全新的餐饮空间。手工包是“一城半点”的特色,在店铺入口,是CHAO 为“一城半点”设置的独立的手工包展示区,以最直接的展现方式让客户更加近距离的了解到“一城半点”的手工包从揉面,拌馅,包包,蒸包到热气腾腾摆在餐桌上的全过程。
门厅区域是“一城半点”的明档展示区,在这里,“一城半点”最经典的菜品足够吊足用户的胃口,而墙面的装饰架摆满的瓷包是CHAO特意为“一城半点”设计的艺术摆件,门厅顶面的木构架,将古法榫卯结构搬到空间里,传达“一城半点”的古法研制的理念。
中国古代造园家巧妙的通过“窗”的借景,使园林内外的不同风景产生联系、实现勾通、相为陪衬、相互借资;使园林空间得以扩展;使有限成无限;使园林内外构成了一个有机的、互为的艺术整体。为了契合“一城半点”的菜品定位,CHAO将古建中“窗”“檐”“墙”的元素在这个区域得到最大化的展示。透过一道圆窗,看到人星点点,再透过花窗看到苏式园林。《园冶》中有“借景,园林之最要者也。”的说法,CHAO希望让用户在这里可以透过窗来看到不一样的苏式生活。
用餐区长条桌区域,抽象化的“屋檐”造型,是木框装裱的半透白纱而成的,透光灯光,地面一缕缕剪影,光不刺眼,有的是苏式味道。卡座区,CHAO将古城的剪影抽象化处理,喷绘在了细质麻布上,通过柔性的灯带,营造安静的街巷生活。
透过带有水墨元素的玻璃隔断可以隐约看到包厢区域的人流攒动。包厢区域中,CHAO将古建墙上的青砖,苏式人家里的木质隔断,搬到空间中,在这里一二人嬉戏,三五人畅饮。开与闭,动与静是空间与空间之间的情感联系。
▼空间结构示意图
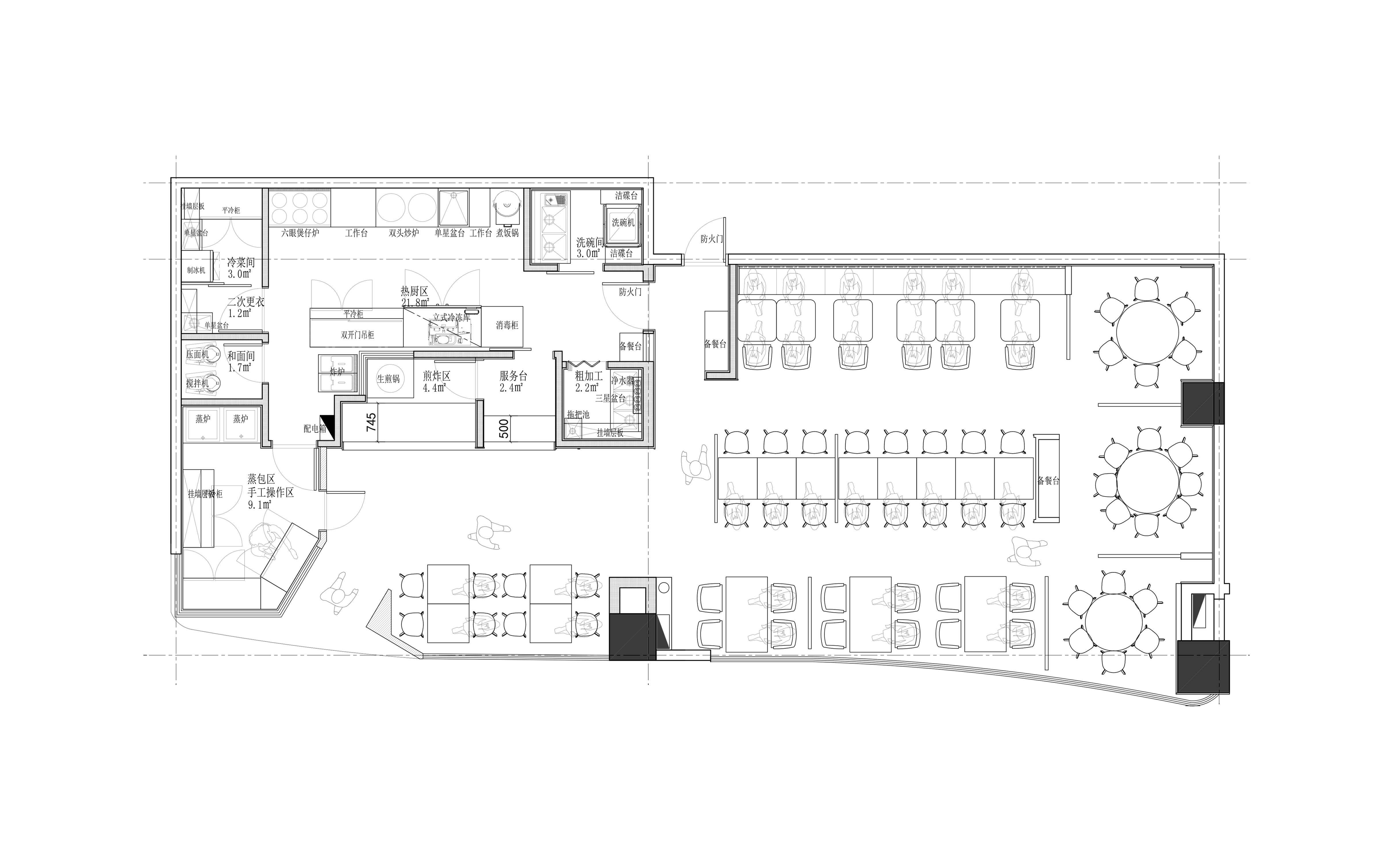
▼项目平面图
▼项目立面图
▼项目效果示意图
项目信息——
项目名称:苏州Ufun ”一城半点”空间设计
项目业主:苏州思肴餐饮有限公司
项目地点:江苏,苏州高新区Ufun
项目面积:175 m2
空间设计单位:CHAO苏州巢羽设计事务所
项目设计师:梁飞王星于爱华
VI设计单位:BOBRAND
使用材料:白橡木饰面,墙布,白纱构架,木格栅,青砖,夹绢玻璃,水泥砖,喷绘壁布
设计周期:02/2018-03/2018
施工周期:03/2018-04/2018
摄影师: SONG PHOTOGRAPHY
客服
消息
收藏
下载
最近























