查看完整案例


收藏

下载
江南水乡,千古文人骚客的桃源属地。湖光潋滟的嘉兴,一座以“平和报本”为精神的城市——平湖,成了JYDP间睦设计,文创零售书店新作“湖光里”的坐落地。
湖光里文创零售书店,位于平湖南河头历史文化街区。在古时南河头被称为“鸣珂里”,明宣德五年(1430年)时期,已初具规模,形成两街夹一河的传统水乡格局。空间依托于青砖黛瓦,富有江南水乡古韵的徽派建筑,既为设计的一大特色,也对改造保护古建带来了不少考验。
空间概念丨阴翳礼赞与光华洗礼
“美,不存在于物体之中,而存在于物与物产生的阴翳的波纹和明暗之中。”——谷崎润一郎《阴翳礼赞》
▲古建设计改造前原貌
书店本身的古建外立面,前后两向皆为透光有限的门窗。室内阴暗、柱体参差、楼梯陡窄。作为文创零售书店,只有阴翳波纹,美感缺失,也无法满足空间的使用需求。于是,在改造范围有限的古建内“引入光”,成了设计团队的首要考量。
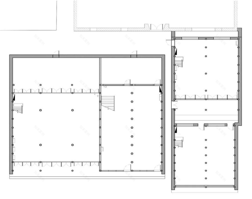
▲湖光里原始平面图
设计区域分属两栋独立建筑,中间相隔悠长小巷,依功能再进行细分。
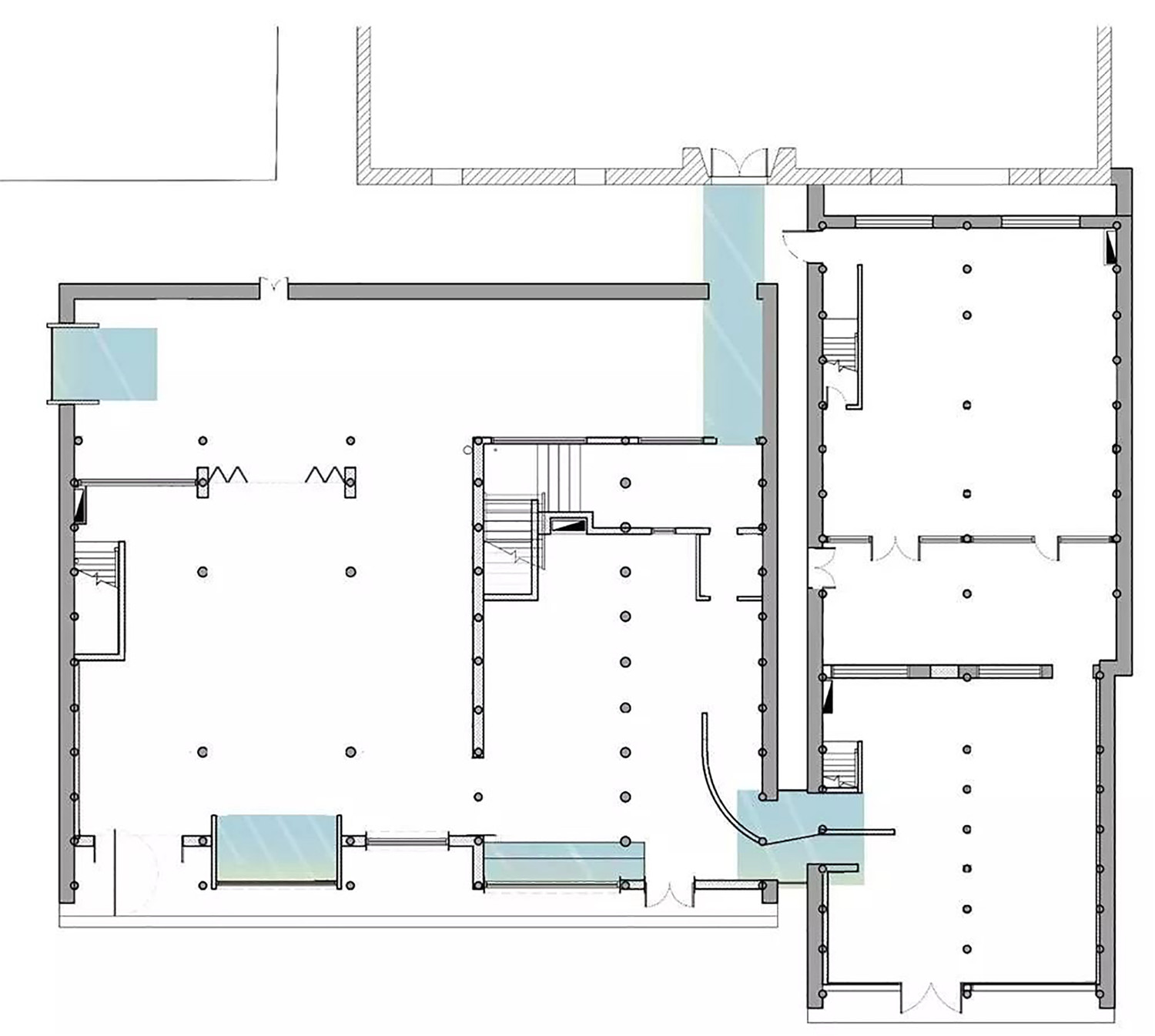
▲置入空间的“光盒”
植物的光合作用带来能量转换,促进万物共生。因此为空间“引入光”,采“光合”谐音的物理形态“光盒”之意,基于最大采光性,置入在原建筑前后外立面、小院白墙和两栋建筑的连接处。一切以光为指引,置入光盒后,空间自然开阔的光感开始流动,呈现一片明亮。
书架、陈列、桌案的加入,明确出空间格局、动线走向。
▲书店区功能性、空间格局形成
书店区以阅读氛围营造和书籍陈列为主,搭配定制化书架、桌案,集陈列、储物、美观于一室。
▲零售区功能性、空间格局形成
▲汉服馆功能性、空间格局形成
零售区和汉服馆以组合多变的定制陈列为主,配以珊瑚色系陈列道具,营造温暖平和的购物环境。
▲书架卡座
书店区“光盒”旁的定制书架卡座,是采光度最佳的阅读区。不论晴雨寒暖,坐在这里,轻翻书页,文字就能在光里生长,这大抵就是“光盒”为湖光里带来的最美好时刻。
▲正门及光盒阅读区
建筑外表,依旧保留岁月的阴翳礼赞,而内部充盈了自然光华,书香倏然而来。设计团队希望“光盒”之意,如光华为岁月洗礼,也为古老建筑注入新生的力量。
▲湖光里外立面
空间氛围丨江南森系书店的自然之野
湖光里有光华的洗礼,也有和平湖“平和报本”的一样自然质朴的人文气质。
在平湖“平和报本”的精神中,一个“平”字,既凸显了其地处杭嘉湖,平原腹地的自然禀赋,又涵盖《礼记·中庸》所云,“中也者,天下之大本也;和也者,天下之达道也”的平和境界。
▲湖光里外部环境
平和境界,可以是从容不迫的慢下来,允许生活露出原本的模样,舒缓身心,回归自然。或静听风雨,枕书而眠,或看湖光里依傍小桥流水日升月落,仿佛时光的流淌也变得缓慢。
▲小院内的“光盒”
设计书店之初,我们就颇为平湖,回归自然与生活的本真气质所动容。所以在书店氛围的营造上,我们通过充满自然之野的材质肌理,营造这间江南森系书店。
空间内部,完整保留了古建中密集的石底立柱,以顶托岁月的阴翳礼赞;四壁的书架陈列,采用具有透光感的PC背板,衔接以自然清新的绿色漆木层架,配浅色木纹书籍储藏柜,底衬湖光里的返璞归真。前者镌刻了江南的悠久历史,后者对照了自然的本真生活,宁静舒适的森系书店也由此而生。
空间陈列丨陈列功能的动静结合
▲灵活多变的陈列展架
零售区多以珊瑚色系的定制陈列组合道具,作为灵活多变的陈列展示货架,金属网格板与零部件可根据商品类型自由组合。
组合道具下方的移动式抽屉,满足了储货需求,附带两层推拉式抽屉,更增加货品的陈列选择。
▲改造后的书店区零售展示局部
▲透过玻璃,内外连接的楼梯结构和层次,形成了室内和室外的两个读书区
书店区域西北角的楼梯,被设计团队封顶改造为一个综合性的阅读、陈列展示区域,保留楼梯拾级而上的造型,结合镂空的绿色壁龛,作为静态的陈列展示。楼梯阅读、陈列展示平台延伸至窗外,形成庭院与室内通透相接的结构造型。
▲室内与室外的延伸连通
空间整体在保留原建筑风貌的情况下,以陈列功能为第一考量,以阅读环境氛围营造为重点,加以不破坏空间原有内部格局的保护性设计,将湖光里书店的温暖静谧,赋能于清新自然的文创零售空间,打造出南河头最赋江南气质的森系书店。
▲暮色下的湖光里
▲立面图
▲剖面图
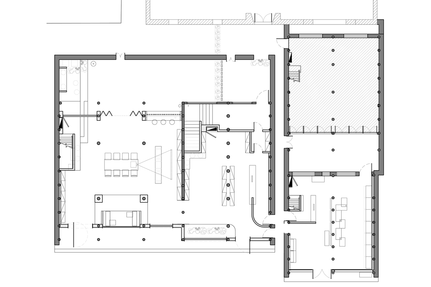
▲平面图
项目信息——
项目名称:湖光里文创零售书店
设计方:JYDP间睦设计
项目设计&完成年份:2019
主创及设计团队:Michelle Sun、 Leah Li、Mandy Zhang
项目地址:嘉兴平湖南河头历史文化街区
建筑面积:339㎡
摄影版权:JYDP间睦设计
装修主材:PC板、实木、玻璃
客服
消息
收藏
下载
最近


























