查看完整案例


收藏

下载
上海港汇恒隆广场,是蜚声国际的顶尖商业地产发展商——恒隆地产有限公司,在上海打造的地标式物业,坐落于上海徐家汇商业中心区域,也是上海市综合商业贸易、现代化写字楼和商务住宅功能的地标性代表之一。
▲上海港汇恒隆广场外景
2019年,JYDP间睦设计与恒隆地产公司达成合作,为其物业设计全新办公空间。
办公空间,是公司文化精神表现的外在场域,同时也是使用者交互表达的场所。在很大程度上,高效开放的办公环境,会直接影响工作效率。
▲丰富有趣的开放办公
▲传统无趣的办公模式
JYDP希望空间和使用者是能够双向给予创造力和价值感的,使用者可以切身感受到现代智能又张弛有度的办公空间带来的轻松与愉悦。
因而把第三空间(休闲场所)的氛围,融入第二空间(办公场所)的功能之中,打造灵活开放的现代智能化办公空间,成为我们对办公空间场景作出的一个重要设定。
恒隆地产贯彻的企业理念是“只选好的,只做对的”,相比单调乏味的格子间、拘束隐蔽的办公格局,丰富有趣的开放式办公,已然是这个位于商场B2层,无自然光源、空间层高较低的办公空间的整体格局首选。
▲潮湿阴暗的原始环境
01智能化布局,带来灵活多功能空间
平面布局的合理性分布及动线的逻辑性在办公空间中起到至关重要的角色,恒隆地产物业办公室,不仅要满足物业公司内部人员办公使用,同时也需要满足商场后勤人员的办公,及外来人员的会议,业务办理及培训活动,3种完全不同的需求及动线,有交叉的同时又必须独立及保障安全隐私,互不影响,根据现场情况JYDP 利用Diagramming分析出了最佳的高效排布方式。
▲平面区块分析
根据动线及功能需求进行平面区块分析
▲隔墙分布图
在Diagram analysis后设置隔墙布局
▲概念体块分析
在整体办公空间中,穿插设置“第三空间”概念体块
▲功能区分布
体块演变为功能区域
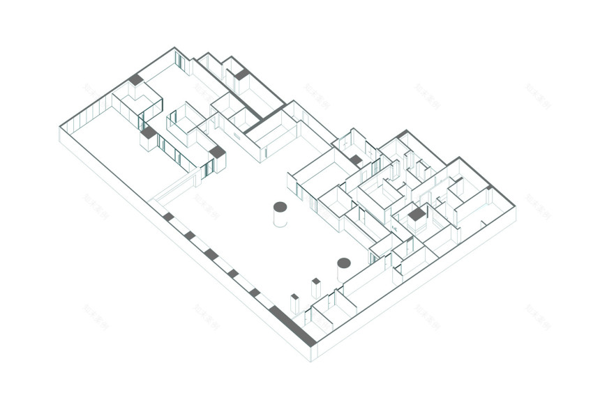
▲整体平面布局
形成最终高效/灵活的办公平面布局。
接待区域
为使接待台与收银台体现连贯的服务流程,L形框体造型形成天花与墙面的统一连接,木饰面突出了区域的连贯性和特征,木条纹背景墙更加强调了空间的层次感。
▲前台区域概念图
▲接待台
▲前台休闲区
▲接待休闲及收银区
接待台,休闲等候区与收银区最终形成3面统一的框体设计语言, 收银区墙面采用蓝绿色漆强调了空间的特殊性,并且与休闲区卡座形成颜色呼应。
会议及开放讨论区
通透的超白玻璃与黑色金属收边细节形成会议室隔断系统,同样以木饰面框体潜入墙内,形成的开放讨论区与会议室墙纸图案交相呼应。达到正式会议与休闲讨论功能的灵活切换。
▲会议室及开放讨论概念图
▲会议室
▲开放讨论区
▲多功能会议室
多功能会议室中间设置灵活隔音隔断,可切分为2个或3个独立会议室,打开时又能变为最多能容纳80人的培训空间。
开放办公区
在开放办公区域,共享/休闲/讨论等功能也合理的分布于空间各处,门禁入口处设计共享讨论和站立办公区并同样运用L形隔断进行分割,形成了入口处的缓冲地带。共享办公位与Locker柜紧挨,方便灵活办公人员的每日打卡出勤。
▲共享办公区概念图
▲共享交流区
▲共享办公区
茶水间与柱体在布局中相邻,故利用地板分割形成互动和缓冲地带,形成休闲空间和工作空间的隔离。为服务大量附近固定办公人员,打印与干茶水的区域与开放讨论区形成互动空间,同样利用天花与墙体的框体结构强调空间功能与区域特性。
▲开放办公区
整个开放办公区,虽保留较多的传统固定办公位,但是合理的分布共享区域和灵活讨论的空间,并且通过统一的设计语言和造型强调区域功能,不仅能打破空间的单一,凸显层次感的同时,使办公区域变得活泼及舒适。
02色彩运用打破沉闷,塑造企业品牌文化
随着办公新模式的演变和企业管理架构的优化,如今的办公空间更加强调环境带给员工满足感和企业品牌文化的体现,而色彩的合理运用可很大程度上帮助办公环境设计在以上两点上的提升。根据恒隆地产标示系统的色系及空间的服务特性,JYDP大量运用了蓝绿色系与黄色系来体现整体材质与饰面的选择,呈现出一个温暖,有辨识度,积极及开放包容的办公环境。
▲开放讨论区卡座
▲共享打印区
▲共享交流区
蓝绿色统一运用在L形框体造型所形成的共享及功能区,帮助空间强调了空间功能及连贯性。
▲办公桌屏风
绿色及黄色桌上屏有序形成间隔,带给固定办公区域一些灵活的颜色变化及活泼感,也利用系统家具颜色体现了区域的独立性。
03清晰的标示系统,体现办公环境逻辑语言
标识系统在办公环境中的应用经常容易被忽视,而创意平面图形及清晰的标识系统能在很大程度上帮助优化办公协作的效率及流程,并且缓解紧张和压抑的办公情绪。
企业的标识系统往往伴随着企业品牌文化的输出,在恒隆物业办公项目中,有着25中不同的功能区域,JYDP通过醒目统一的数字标识体现会议及独立房间,白色箭头指示引导方向的同时,打破墙面的单调性,统一的区域功能字牌与装饰黑色收边相呼应。
▲前台区域及会议室
▲开放讨论区
▲功能区标识
▲BOH 走道及标示
未来,智能化、现代化的开放式办公及ABW模式,将更多地取缔传统的办公空间成为主流。JYDP设计在以人为本人,满足空间使用功能,创造价值的同时,尝试打破刻板印象,消除办公的边界,做创造创新,为办公空间的带来丰富有趣的想象力。
项目信息——
项目名称:港汇恒隆广场物业办公室
设计公司:JYDP间睦设计
设计总监:Michelle Sun
参与设计:Leah Li、Shirley Wang
项目地址:港汇恒隆广场
项目类型:办公
项目面积:1400㎡
图片摄影:Raitt Liu
客服
消息
收藏
下载
最近



































