查看完整案例


收藏

下载
在都市区的工作环境多半缺乏良好条件(较少的自然光线和空间),JSPA建筑事务所首创实验性的新方式去重整现今的工作环境。
透过优化其工作空间,可以释放大量的空间进而扩大共享的区域,与传统单调的系统式“开放空间”有所不同,JSPA建筑事务所侧重于将自然引入建筑的想法,组织空间,以便尽可能的带入更多的自然采光至设计项目中。最为重要的是,设定了许多区域保留种植茂密的植披,如同其建筑物深化殖民在大自然当中。
JSPA针对当代工作环境的设计实验体现在四个不同的联合办公空间项目,每个项目皆呈现其适应现有场地之特点,创造出如何整合自然与内部空间的独特答案。
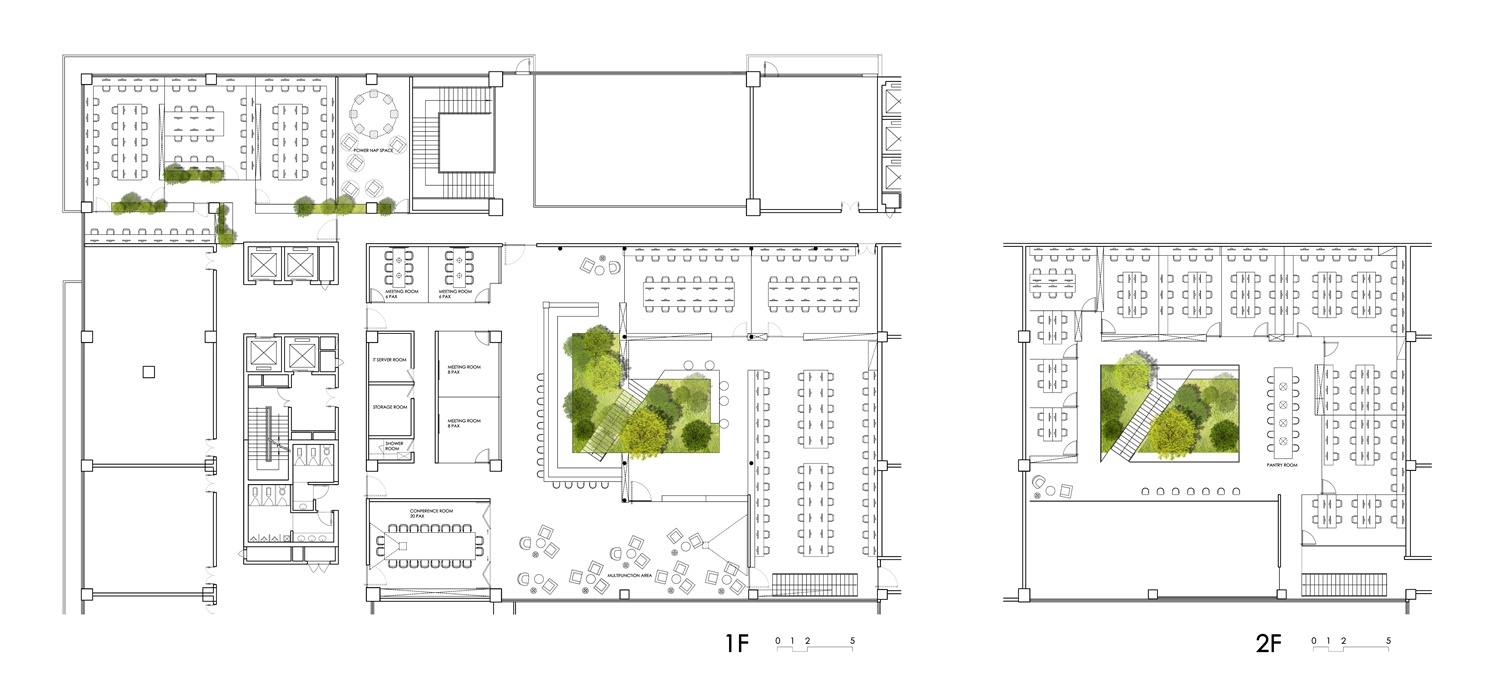
望京
这个项目为天花高度相对较低的单层空间,由于中心区域较暗,因此在自然光线方面非常具有挑战性。
主体的设计想法是颠覆传统的办公空间规划以会议室为中心,办公区域则围绕在四周。相反地,尝试利用最黑暗的中心区域该项目的亮点,阐述出方案中的所有不同功能。
透过明亮的天花板演绎出茂密的植被,这个热带花园反转了整个空间的感觉,使中心部分成为一个舒适的公共区域。
绿色植被覆盖着大多数的空间:沿着休息区的墙壁和入口处。
工作区域的设计则尽可能的简单,水泥地板,白色办公桌和黑色椅子与休息区的温暖氛围形成对比。
项目信息——
项目年份:2016
地点:北京
室内面积:1123平方米
工位数:220
南山
该建筑位于综合办公楼的二楼,为两座高层建筑之间的建筑连接,拥有独特的结构,挑高的天花板和面朝西的全玻璃外立面。
该项目的组成内含由东面延伸出的夹层,由于夹层并无与西侧全玻璃的外立面连结,因此自然光线能完整的穿透进入空间。
西区则是延着玻璃外立面的左开落地拉门,设计出一个活动空间,透过可完全打开的折叠隔板一路延伸至主会议室。
该项目的重点是在建筑物的中心设计一个穿透夹层的绿色植被,植物从下生长至室内空间的顶端,且四周围绕着规划完善的垂直动线。
使用红砖做为新的分隔墙,使其与建筑物的现有结构产生对比。
项目信息——
项目年份:2017
地点:深圳
室内面积:1335平方米
工位数:262
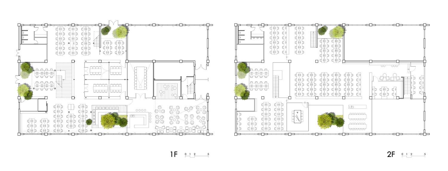
北新桥
此项目的现有工业建筑是由强大的混凝土结构所构成,并在大部分区域辅以钢结构的夹层。
一进入这个双层挑高的空间,映入眼帘的是公共活动区域,其透过一个延长的混凝土台面与办公空间连结,也使接待台和酒吧重组为一整体。后方区域则规划出一个很大的植栽地,植物围绕着员工与访客会面休憩的空间。
在靠近外立面的夹层结构中有一些孔洞,可以让阳光穿透进来,使植被生长于第一层和第二层之间。
会议室集中在此空间的中心,并设计可拆卸的隔版以灵活运用,并可根据使用情况的不同变换不同的组合。
在活动空间旁,休息区营造出的粗旷感与项目其他部分形成鲜明对比,并以木地板和红砖形成温暖的氛围。
项目信息——
项目年份:2013
地点:北京
室内面积:1372平方米
工位数:276
金华
为延续现有工业建筑的扩建,我们的设计想法是创造出新旧的对比。这个现有的建筑物是由混凝土结构构成,透过薄钢板结构向东南侧延伸,形成一个有趣的空间,为建筑物创造了一个新的外立面。
由于杭州气候温和,延伸出的空间向户外展开,绿色植披沿着建筑物的外立面和屋顶生长,与其融为一体。
在旧建筑的内部,新的设计部分保持简单和单色色调以凸显原先就存在的颜色和纹理的质感。
现有的建筑物同样地身处在大自然的环境中,植被沿着天窗生长,更重要的是,大范围的植栽区可更有利的让树木生长于挑高的双层混凝土建筑当中。
近期市场上针对办公空间经常运用科技感导向的设计,不同的是,JSPA建筑事务所选择了相反的方向,而是致力于实现科技和自然两者之间的共存。创造出一个同时尊重工业遗产和符合现代工作要求的有趣空间。
项目信息——
项目年份:2016
地点:杭州
室内面积:985平方米
工位数:188
(版权归JSPA所有)
客服
消息
收藏
下载
最近




























