查看完整案例


收藏

下载
传统的东方禅意表达方式很多种,而我们想要表达的不是刻意贴上东方禅意标签的表达语言,而是一种重意轻形的静谧表达方式。此项目包含100平方米的展厅和700平方米的办公区域,展厅主推品牌OUALLIN的基因内核也是我们赋予的-追本溯源,返璞归真。
Traditional expressions of eastern Zen are diversified. However, what we want to express is not the language deliberately posted with such labels but a kind of quiet expression that attaches importance to meaning instead of form. The project covers a showroom of 100 square meters and an office space of 700 square meters. Gene core of the major brand QUALLIN in the showroom is also created by us–trace to its source, and return to simplicity.
我们想打破一下太过形式化的东方禅意,就此和甲方一致认为需塑造带点东方感觉但不会太刻意,有禅意的感觉但也不要太高冷的主体思路。整体传达出一种质朴时尚的感觉-有格调重气质的空间。入口的设计没有多余的元素,利用形体的自身逻辑和材质光影的质感塑造时尚现代的感觉。我们把光带作为一种几何设计语言整合到空间中,塑造另一种质感。
We intended to break the part that is too formal in eastern Zen. Both our client and us agree to the idea that the design should gives a eastern feeling yet not deliberate, and a feeling of zen style yet not indifferent. The whole design conveys a feeling of simple fashion-a space with style and quality. The entrance design does not present any superfluous element but brings the modern feeling with its own logic of shape and the quality of materials and light. We have integrated the light bands into the whole space as a kind of geometric design language to create another kind of texture.
前厅临时接待区设计了与空间一体化的木台代替了传统的座椅,凹陷的部分放置了一个品牌自身的可移动模特,可方便定期更换主题模特。
In temporary reception area of the front office, space-integrated wooden table is used instead of traditional seats. For regular change of theme models, a movable brand model is placed in the sunken part.
前厅的空间并不大,进门左侧的区域设计了一块通体镜面拉伸了空间的层次。天花的内嵌条形灯带与地面条形灯带形成呼应形成强有力的空间设计语言。
As space in front office is not large, an entire mirror is designed at the left side of the entry to stretch the space levels. The embedded light strips on the ceiling and the light strips on the ground echo with each other, creating a powerful space design language.
入口的接待台设计了分体结构,左侧的生锈铁板制作的自循环水池为空间注入一丝活力,水泥制作的服务台粗狂有力。
The reception area in the entrance adopts separate structure. The self-cycling pool made of rusty iron plate on the left has breathed new life into the space; while the cement reception desk is rough and powerful.
质朴的生锈铁板、水泥、条纹石在光影下各自释放自己低调的光泽。
The rusty iron plate, cement and striped stone sheds its own gloss under the shadow.
空间梯度与均衡很重要,通道的虚实进深更为讲究,不仅考虑在整体空间中的逻辑关系,自身的虚实也非常重要。通道尽头的一幅抽象水墨山水为这个通道做了一个视觉聚焦。
Spatial gradient and balance is very important, yet the virtual-real depth of corridors requires much more attention. It’s necessary to consider both the logical relationship in the overall space and the virtual and real space. The abstract ink landscape painting at the end presents a visual focus for the corridor.
质朴的禅意风必须非常谨慎的运用造型和图案以避免浮夸。此处通道右侧的处理则是放置了四个历经岁月冲刷的朽木与背后的冲孔山水图案的屏风呼应-山水木石的主体场景。尽可能做到深藏若虚。
When presenting the Zen style, we must be cautious in the selection of shapes and designs to avoid exaggeration. The right side of the corridor is decorated with four rotten wood through years, corresponding to the screens punched with landscape paintings on the back–forming the main scene of mountain, water, wood and stone. The purpose is to best presenting the Zen style yet burying it deep.
干净利落的大面积留白使空间层次更为分明也会给人联想的空间。
The large area of clean blank space makes the level more distinct and also leaves space for association.
展厅的设计在空间上没有做过多的造型和分割,而是利用原木、水泥、铁板、软装等材质用非常平实的手法将服装的质感凸显出来。整体风格以自然质朴深邃为主调,不拘泥于固定的风格和定式的思维。在这个空间你可以感受到欧美的质朴也能体会到东方的禅意。
We did not make too much shaping and segmentation in the design of showroom space but made efforts to highlight the texture of clothing by the plain technique of wood, cement, iron plate and decoration. The whole style displays the subject of nature, simplicity and depth, and gets rid of fixed style and pattern of thinking. You could feel the simplicity of Europe and America and also the Zen style of the East in this space.
休息区的沙发是从法国的旧货市场淘回来的,带有很重的后现代印迹,小圆桌是旧木褐色树脂的融合工艺,几个看似不相关的物件组合起来形成一种不拘一格时尚格调。
With heavy post-modern imprinting, the sofa in the rest area was hunted from the flea market of France. The small round table was processed with the integration of old brown wood resin. These unrelated items, while placing together, present a different fashion style.
装饰立柱的旁边则是一组旧货市场淘来的储物箱和几本19世纪的外文书籍,一双极具调性的舞鞋被陈列其中尽显优雅与格调。
Beside the decoration column is a group of storage boxes hunted from the flea market and several foreign language books of 19th century. A pair of chic dance shoes displayed among them gives a sense of elegance and style.
塑造质朴的时尚格调,考虑到各种材质之间的关系采用的是定制的LED聚焦射灯,整个空间利用散点照明凸显材质的质感和整体氛围。
Considering on the relationship between various materials and creation of simple fashion style, we have adopted customized LED spot lights so as to highlight the texture of materials and overall atmosphere through the scatter of lighting in the whole space.
展厅中央的摆台,利用原木板和天然旧石槽进行了重组设计,石槽内注水之后养了浮游绿植,塑造一种自然清新的质朴感觉。
The table in the center of showroom is restructured with wood and natural stone tank. The green floating plant is cultivated in the stone tank filled with water, presenting a feeling of freshness and nature.
试衣间的设计更多是舒适自然,和谐温馨的灯光氛围是这个区域的重点。
The design of the fitting room should be comfortable and natural, as a result, the harmonious and warm lighting atmosphere is the key point for this area.
办公室中间的主通道没有刻意设计,而是在设计功能立面的时候把通道的效果直接考虑进去。通道的转角处定制了一幅水墨写意山水使狭长的通道有了聚焦点。
We do not deliberately design the main corridor in the middle of the office but take the effects of corridor into consideration when designing the functional facade. The corner of the corridor is customized with a painting of ink landscape, which gives the narrow and long corridor a focus in visual sense.
设计部是更为开放的布局,考虑到每个设计师都会有样衣货架等工具,特意把走道设计的很宽敞方便样衣货架的推拉移动。裸露的天花被有序的”米”字型吊灯统一起来。
The layout of design department is more open. With the consideration that each designer should have their own tools such as shelves for sample clothing, we leave the corridor wide so as to made it convenient for moving the shelves. The bare ceiling is unified by the orderly distributed lamps in the shape of Chinese character “米”.
销售总监的办公室基装部分处理非常简洁,主要通过家具的陈设品凸显其空间格调。整板的原木办公台和新中式的家具相形益彰,黑铁板定制的书柜则极为现代,空间整体塑造出一种东方现代禅意的气质。
The office of sales director is very concise. Space style is highlighted through the display of furniture. The entire wooden office desk echoes with the new Chinese furniture, while the customized black iron plate bookcase is extremely modern. The whole space presents an atmosphere of eastern modern Zen style.
会议室的右侧墙面是一幅手绘复古风格的中国地图,为品牌后期拓展提供直观的物理参照。
The hand-painted retro-style map of China hangs on the right wall of the meeting room provides an intuitive physical reference for future brand development .
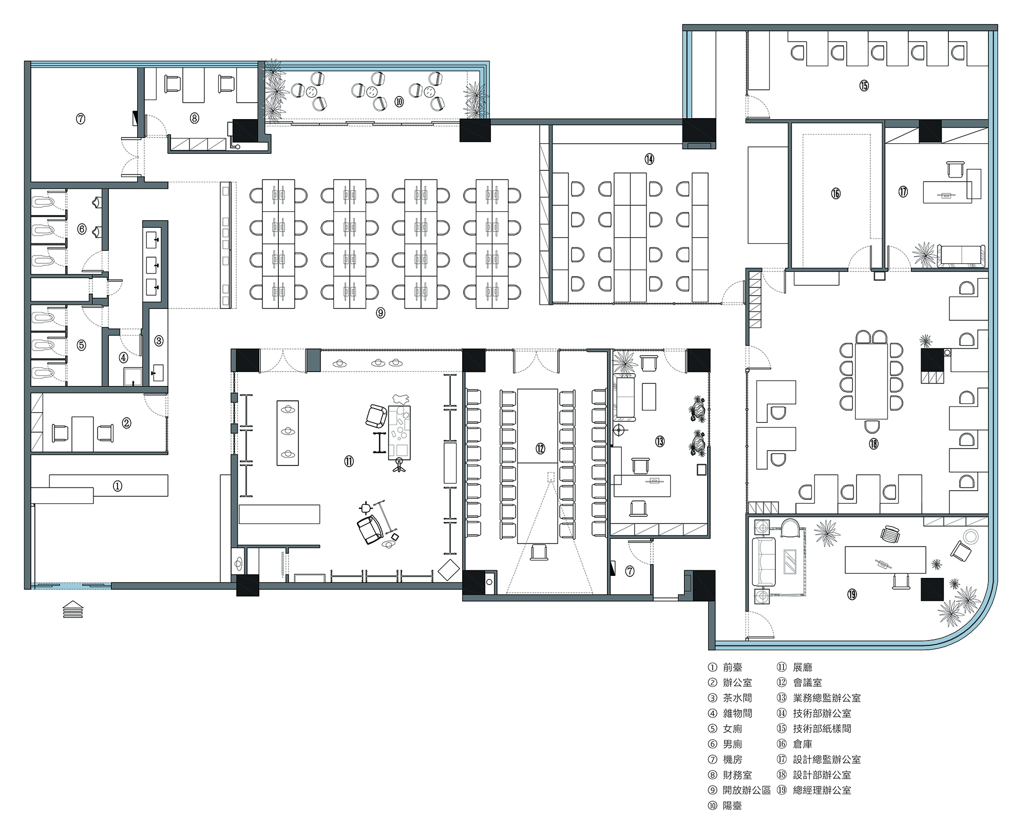
▼平面图
项目信息——
设计师信息——
张志文
Zhang Zhiwen
柏纳德空间设计创始人兼设计总监
The founder and design director of Bernard Space Design
从业10年,专注于品牌商业空间的策划与设计,多年的品牌商业空间设计经历造就了团队从项目定位分析到具体的设计呈现有着一个系统的设计流程。每个项目都会从商业行为、模式、功能、创新点四个维度来考量,立足于项目自身定位着力用艺术的感染力来塑造品牌的气质。擅长审视趋势但不盲从潮流,他始终认为跟随内心的设计才能立于流行浪潮之上,这使柏纳德在对待每个项目时都会把独创性放在非常重要的一个位置,从而迫使整个团队不断创新、跨界,甚至是颠覆,从而让作品的价值超越预期。
With ten years’ practicing experience, he has been dedicated in the planning and design of branded commercial space, based on which Zhang Zhiwen set up the team to complete the systematic design process involved with positioning analysis on projects and specific design presentation. Every project will be analyzed and considered from point of commercial behavior, pattern, function and creativity. brand image is built with the appeal of art which is based on the positioning of the brand itself. Being expert in identifying the trend but never follow it blindly, he always believes that only designs that follow hearts could lead the trend. Thus, Bernard attaches great importance to the originality for every project and requires the whole team to stick to innovation, crossover and even subversion, so that all works could be completed in a manner beyond expectations.
客服
消息
收藏
下载
最近































