查看完整案例


收藏

下载
项目地点丨河北省唐山市
建筑类型丨办公建筑
建筑面积丨24,579.1 ㎡
设计时间丨2017-2018
竣工时间丨2019
设计单位丨清华大学建筑设计研究院
项目负责人丨刘泱 聂仕兵
建筑设计丨张赟 康洁 滕文毅
结构设计丨朱彤 白凡玉 倪然
给排水专业丨翟莎莎 李爱莲 罗新宇
暖通专业丨刘慧丽 汤小京 李希
电气专业丨钟新 杨莉 孙永刚
图片摄影丨三景影像
01项目概况
Project Survey
▲场地关系俯瞰
惠达卫浴股份有限公司研发中心主楼位于唐山市黄各庄镇惠达企业厂区,建筑面积 24579m2,地上 10 层,地下 1 层,采用框剪结构。建筑主要功能包括展销厅、企业博物馆等对外开放区,员工办公区和报告厅、活动室等对内办公区,属于综合办公楼。
▲东北角人视
02设计理念 DesignConcept
雕塑美感的体型
▲总平面图东侧人视
▲南侧鸟瞰
建筑设计理念来源于“坚实的苍岩”,寓意作为民族品牌的企业顽强进取的精神。造型运用大体块的咬合和切割,体现雕塑美感,富有张力,在视觉上统领整个厂区甚至周边地区。立面通过不同形式的开窗体现虚实对比,处理得干净利落。由于当地粉尘较大,这种体形及开窗方式也易于保持清洁。同时,这种精致完美的细节设计,也与企业精工细作的质量方针相契合。
▲形体生成
▲下沉庭院
▲东北角人视
自然通风技术
▲提升办公空间措施
对高层办公楼自然通风进行了大胆尝试,即将一贯集中设置的核心筒进行拆分——楼电梯分散设置于中部和北部,设备机房和卫生间等辅助公共用房设置于通风采光不利的西北角和东北角,将其他舒适度高的房间全部留给办公。
▲室内大堂
另外设置了通风弄和中庭等公共空间,为南北房间创造了开门即可通风的室内环境条件,同时兼作员工休息交流的弹性空间。
▲ 室内大堂
休息区
结合其他适宜被动绿色技术的应用,使建筑达到了良好的自然通风效果,降低空调运营成本。在实际使用中,得到了业主高度认可。
▲室内展销厅
精准配合施工技术
▲南侧人视
▲西北角人视
由于建筑造型存在较多折角和斜线,设计中所有幕墙角点均通过计算机模型准确定位三维坐标,确保项目高精度落地。同时预先设计了土建构造及拉梁,为立面幕墙提供受力支撑,有效减少了幕墙钢结构的用量,大量节省了造价。
▲立面细部
03 综合效益
▲南侧办公主入口
▲东侧公众入口
项目于 2019 年 9 月竣工完成,成为主板上市企业、民族卫浴领军者的产品与服务展示平台。项目的设计理念和高品质的设计与建造传达了企业重要的价值观,提升了企业影响力,增强了企业投资者信心。同时大大提升了周边环境,为当地政府招商引资提供了更好的条件,现已成为该区域标志性建筑。
▲下沉庭院
04项目图纸
Drawings
▲总平面图
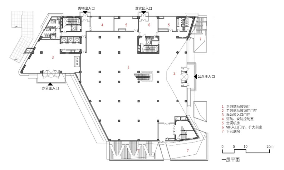
▲一层平面图
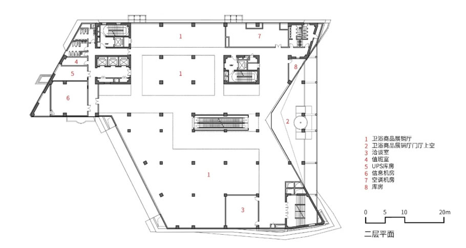
▲二层平面图
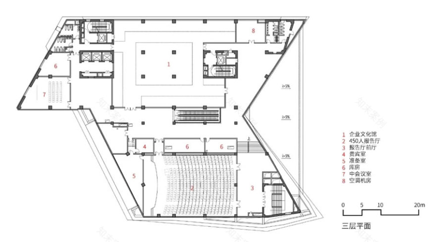
▲三层平面图
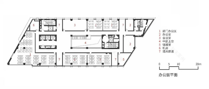
▲办公层平面图
▲剖面图
▲墙身大样图
客服
消息
收藏
下载
最近


































