查看完整案例


收藏

下载
拥有2700多年历史的平遥是国家历史名城也是世界遗产,而平遥国际电影展是国家正式批准的五项国际影展之一。电影宫建成之前,平遥虽早已声名赫赫,但旅游风貌单一,古城内的空间场所缺乏多样性,古城居民生活方式也渐行渐滞。
Pingyao is a 2700-year old national historical city in China, as well as a world heritage site. Pingyao International Film Festival is one of the five official international film festivals. Although the ancient city of Pingyao has been well known before this project, it has also long remained standstill with its old urban fabric, facilities and spaces that has started to encumber its development and the life of local inhabitants.
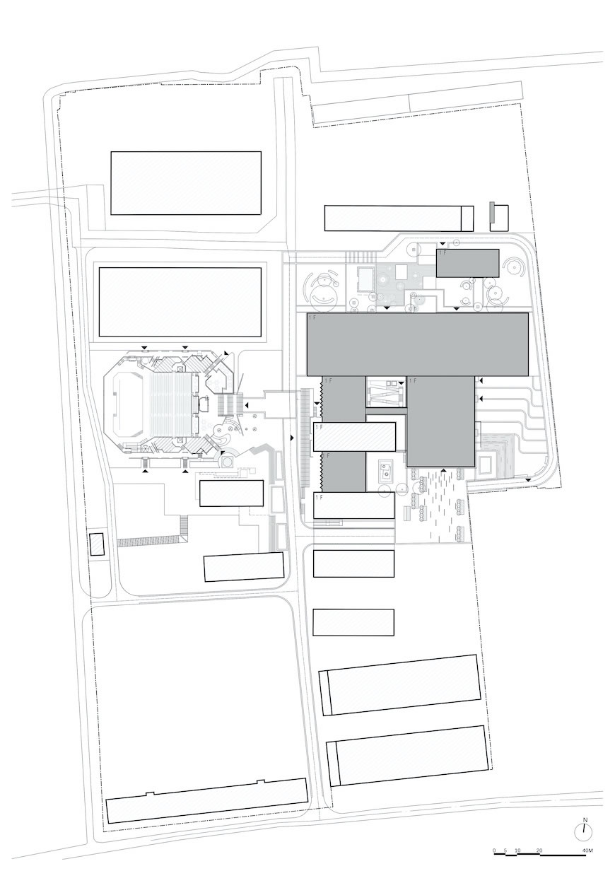
首届平遥国际电影展选址于平遥原柴油机厂。厂区内多数厂房建于 70 年代,不具备突出的工业建筑历史风貌。电影节所需要的大尺度公共活动空间,由四栋原有厂房改造而来,基本维持立面的原貌,只是整顿门窗,并加建部分建筑。
The first Pingyao International Film Festival was held in the original diesel engine factory of Pingyao, most buildings of which were built in the ’70s with an industrial feature that is subtly less brutal than most industrial sites. As usual, this film festival requires large-scale public spaces, which were met by renovating four existing plants. Except for some necessary new constructions to accommodate more programs, the renovation design maintains the original historical presence of the plants with a restrained touch on façade openings.
古城内的改建必须合乎对于控高、体量、屋顶形式等的基本保护要求,在规划层面最大限度保留原有肌理。建筑设计提炼和使用一些本身存在的符号,不强调特立纯粹的风格,仅在特殊位置采用戏剧化加强,符合电影节的气质,让人产生模糊的历史共生感受。
Constructions in Pingyao should comply with heritage protection codes, such as regulations on building height, volume, and roof form, etc. The renovation design prioritizes the historic preservation, following the original factory campus fabric, absorbing the inherent architectural elements from the factory, being conservative about introducing any new style except form some dramatic emphasis at limited locations, which responds to its program as a film festival, thus creating a combination of history and modern that blurs the sense of time belonging.
增建的 500 人影厅,延续了与厂区相适的坡屋顶形式,材料以青砖砌筑为主,局部利用红砖镂空突出交替,加强砖在新建建筑上的活跃感,与已有厂房的工业砌筑形成对比与反差。砖材料的使用结合少量节点的钢材,结构简单,四个月完成了建设使用,造价非常低廉。
The new 500-seat cinema hall continued the sloped roof as the surrounding factory buildings. The main material throughout the campus is grey bricks, highlighted by limited red bricks with special brick laying manners that differs from the existing buildings. The combination of bricks and steel requires simple structure that allowed the construction to be completed within 4 months at a low cost.
在古城内做超过15米高的IMAX放映厅是与保护规划相背的。最后设计决定利用略有高差的地块,完成一座露天剧场。设计中努力保留场地内几颗大树,通过下挖、上抬等地形处理方式,将舞台、屏幕、主入口散置于露天剧场周边,流露出古城的印象属性与工业的秩序属性,又能将古城墙和城楼作为借来的远景,将观众的视觉感受融入到历史体验中。
Although it’s strongly required by the film festival sponsor, building a 15-meter high IMAX hall is over the height control of Pingyao. Instead, an outdoor film theatre that takes advantage of the topography is built, around which the stage, bleachers, and circulations are efficiently organized, and large trees are preserved to create multi-function spaces that would accommodate different activities. The old city walls and gate towers are set at the background of the scenes that take the historical perception into the visual experience of the audience.
电影节后,电影宫成为常设运营的电影院,并辅以配套娱乐文化内容成为电影文化广场开放运营。昔日服务于城市发展的工厂,带着新文化新方式和公共意义,用老邻居的样子,重新回归城市使命的方式,远比作为审美的凭吊更有意义,也更有挑战。
After the international film festival, the buildings would be reused as a film culture plaza and cinema open to the public. Having witnessed its transformation from an old factory to a contemporary international film palace, it’s realized that the factories that ceased to serve the city could continue to play new roles in cultural industry. Instead of just being static antiques for reminiscence, the industrial heritage sites could be brought back to the public life of the city as stimulations.
项目名称:平遥柴油机厂改造设计,平遥国际电影展主场馆
设计方:清华大学建筑设计研究院有限公司
项目设计&完成年份:2017
主创及设计团队:廉毅锐、任飞、许笑梅、刘磊、陈宏、焦泽通、陈猛、李丹、Brian Wong、周宇、郭玉夏、谭静、王笑宇、刘思嘉
项目地址:山西省平遥县平遥古城西大街
项目面积:4357㎡
摄影版权:苏圣亮
客户:平遥县住房保障和城乡建设管理委员会
客服
消息
收藏
下载
最近


























