查看完整案例


收藏

下载

翻译
Designed by Emre Arolat Architects, Sancaklar Mosque located in Buyukçekmece, a suburban neighborhood in the outskirts of Istanbul, aims to address the fundamental issues of designing a mosque by distancing itself from the current architectural discussions based on form and focusing solely on the essence of religious space.
photography by © Thomas Mayer
The project site is located in a prairie landscape that is separated from the surrounding suburban gated communities by a busy highway. The high walls surrounding the park on the upper courtyard of the mosque depict a clear boundary between the chaotic outer world and the serene atmosphere of the public park. The long canopy stretching out from the park becomes the only architectural element visible from the outside. The building is located below this canopy and can be accessed from a path from the upper courtyard through the park. The building blends in completely with the topography and the outside world is left behind as one moves through the landscape, down the hill and in between the walls to enter the mosque.
photography by © Thomas Mayer
The interior of the mosque, a simple cave like space, becomes a dramatic and awe inspiring place to pray and be alone with God. The slits and fractures along the Qiblah wall enhances the directionality of the prayer space and allows daylight to filter into the prayer hall.
The project constantly plays off of the tension between man-made and natural. The contrast between the natural stone stairs following the natural slope of the landscape and the thin reinforced concrete slab spanning over 6 meters to form the canopy helps enhance this dual relationship.
photography by © Thomas Mayer
Project Info:
Architects: Emre Arolat Architects
Location: Turkey
Area: 700.0 m²
Year: 2012
Photographs: Thomas Mayer
Project Name: Sancaklar Mosque
photography by © Thomas Mayer
photography by © Thomas Mayer
photography by © Thomas Mayer
photography by © Thomas Mayer
photography by © Thomas Mayer
photography by © Thomas Mayer
photography by © Thomas Mayer
photography by © Thomas Mayer
photography by © Thomas Mayer
photography by © Thomas Mayer
photography by © Thomas Mayer
photography by © Thomas Mayer
photography by © Thomas Mayer
photography by © Thomas Mayer
photography by © Thomas Mayer
photography by © Thomas Mayer
photography by © Thomas Mayer
Floor Plan
Floor Plan
Section
Section
Section
Section
Section
Section
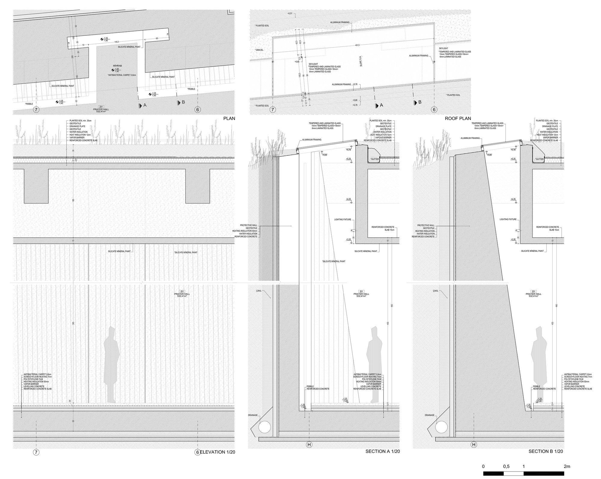
Detail
客服
消息
收藏
下载
最近




























