查看完整案例


收藏

下载
© Thomas Mayer
(Thomas Mayer)
架构师提供的文本描述。该办公楼位于梅西迪耶科伊-马斯拉克轴心上的项目,土耳其的外国资本以其最明显的形式,受其周围环境密度与项目场地紧绷之间的紧张关系所制约。这是客户的愿望,该建筑物将是一座有声望的建筑,就像所有其他周围的建筑物,这只是为了突出,发展没有一定的规则,计划或秩序。
Text description provided by the architects. The project for the office building to be situated on the Mecidiyekoy-Maslak axis, where Turkey’s foreign capital takes its most visible form, was conditioned by the tension between density of its environ and the tightness of the project site. It was the client’s wish that the building would be a prestigious building, just like all the other surrounding buildings which only meant to be prominent, having been developed with no certain rule, plan or order.
© Thomas Mayer
(Thomas Mayer)
除了伊斯坦布尔主要商业区Buyukdere大道沿线的其他项目外,Maslak第一办公楼的设计目的是通过垂直花园丰富典型办公空间的质量。为此,在8.25x8.25m网格上设计了一个合理的办公大楼,并以自由形成的玻璃系统包裹。围护结构,作为南、西方向的二次立面,与建筑物分离达17米,让垂直花园在20米高。在两个立面之间的空间被认为是一个缓冲区,无论是在声学和气候意义上。简单的钢筋混凝土办公楼采用基本的、可操作的铝框架和玻璃系统,与同类投资相比,便于施工,预算减少,不受直接风荷载和阳光照射。钢结构中的围护结构,在创造气候控制的同时,通过一群类似的结构为建筑提供了威望、身份和特性,这是客户简介的一部分。
Apart from the other projects along the Buyukdere Avenue, which is the main business district of Istanbul, Maslak No.1 Office Tower was designed to enrich the quality of the typical office space by vertical gardens. In order to accomplish that, a rational office block which was planned over a 8.25 x 8.25 m grid, enveloped with a free formed glazing system was designed. The envelope, acting as a secondary facade in south and west direction is detached from the building up to 17 meters, let vertical gardens in 20 meters high. The space in-between two facades was considered as a buffer zone both for the acoustical and the climatic sense. The simple reinforced concrete office building with a basic, operable aluminum framing and glazing system helped in ease of construction and decrease in budget compared to similar investments, being free of direct wind load and sun rays. The envelope in steel structure, while creating the climatic control, provides the building with the prestige, identity and peculiarity through the crowd of alike structures that is a part of the client’s brief.
© Thomas Mayer
(Thomas Mayer)
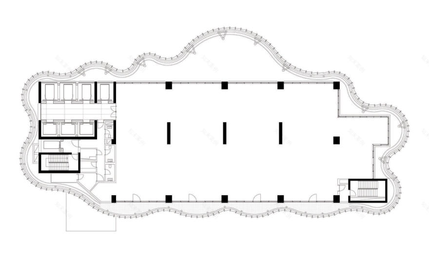
Ground Plan
© Thomas Mayer
(Thomas Mayer)
设计了由150×200 cm矩形模块构成的立面的曲线平面图。这些玻璃板被布置在鱼鳞的质地中,让空气流过,并且在上面有一个半透明的薄膜层。薄膜层的不透明度多种多样,直至曲线正面的方向;在南立面上,选择了较不透明的图案;而在北方,则几乎采用了根据环境控制问题设计的透明膜。
The curvilinear plan of the facade formed by the 150 x 200 cm rectangular modules was designed regarding the perception from the highway. These glass panels are arranged in the texture of fish-scale letting air flow through and they have a translucent film layer over it. The opacity of the film layer diverse, up to the orientation of the curvilinear facade; on southern facade a less transparent pattern was chosen; however in north, almost a transparent film was used which are designed according to environmental control issues.
© Thomas Mayer
(Thomas Mayer)
该地区的办公楼是规划和管理的私人封闭社区,独立安全和控制。即使是在公共地面层,也不允许自由进入或通行,这样就无法与街道和邻近的建筑群发生任何可能的互动。作为在城市一级制造空隙性的问题,一楼相当大的一部分,连同Maslak No:1大楼的缓冲区和外部露台,除建筑物内安全的私人区域外,还保留着自由欢迎公众的地方,希望该区域今后的发展或翻修能够保持这种态度,增强整个地区的城市生活能力。
The office buildings at this district are planned and are being managed as private gated communities, independently secured and controlled. No free access or passage is allowed even at the communal ground levels, that prevents any possible interaction with the street and neighboring alike complexes. As a matter of creating porosity on the urban level, a considerable part of the ground floor, together with the buffer zone and the outside terrace at Maslak No:1 Tower is kept except the secured, private areas of the building, that welcomes public freely with a hope that future developments or refurbishments at the region may carry on this attitude to empower the urban life throughout the district.
2009年初提出的概念项目是与所有各方和地方当局共同制定的,直至2012年。与土耳其的许多其他项目不同,该项目于2014年开始施工,所有文件都经过精心组织和控制的程序准备并完成。
Concept Project presented at the beginning of 2009 was developed with all parties and local authorities until 2012. As opposed to many other projects in Turkey, the construction started then with all documents ready and completed in 2014 through a well-organized and controlled process.
© Thomas Mayer
(Thomas Mayer)
可持续性声明
Sustainability Statement
Maslak 1号获得LEED Gold认证,被认为是该地区高质量、高要求的写字楼之一,尽管与市场上的同行相比,这里的材料选择非常简单,主要租户是德勤(Deloitte)等国内和国际知名公司。
Maslak No.1 is certified with LEED Gold and is considered among the high-qualified and highly-demanded office buildings of the district, in spite of notably simple choice of materials compared to the counterparts in the market, inhabiting national and international significant companies such as Deloitte as the main tenant.
该项目的主要体积组成取决于一个简单的钢筋混凝土办公大楼和一个控制建筑物一般气候的多孔封套。当气流通过以鱼鳞排列的玻璃板时,封套过滤气候的直接影响。提供了办公室框架的设计,这取决于技术上最简单的参数;低风荷载和最小量的UV控制。该外壳还提供了声学舒适性,在合适的季节通过可操作的窗户使自然通风成为可能,这也降低了在对雇员的广场效应中工作的感觉。这些玻璃板上的薄膜涂层上的点的存在和密度根据太阳的运动参数进行参数设计,以降低太阳能增益并提供阴影控制,同时让全景在眼睛水平上。
Main volumetric composition of the project depends on a simple reinforced concrete office block and a porous envelope that controls the general climate of the building. While letting air flow through the glass panels arranged as fish-scale, the envelope filters direct effects of the climate. The in-between buffer zone, provided the design of the office framing dependent on most simplest parameters technically; low wind loads and least amount of uv control. The envelope also provided acoustic comfort, made natural ventilation possible at suitable seasons by operable windows which also decreases the sense of working in a plaza effect on employees. The existence and density of the dots on the film coating on these glass panels are designed parametrically according to the movement of the sun in order to decrease solar gain and to provide shade control while at the same time letting panoramas at eye level.
© Thomas Mayer
(Thomas Mayer)
一般的办公规划策略考虑到灵活性和适应性问题,在外壳和核心设计的范围内进行设计。停车场的水平,大厅空间和流通核心,以及最小数量的公共厕所完成与最优预算简单完成。大量的外露混凝土和部分吊顶构件的使用,加上地面上简单的局部石材是主要使用的材料。其余的办公楼层作为一个简单的裸露网格结构完成,配备了凸起的地板和干墙结构。混凝土表面的质量再次鼓励租户保持暴露或部分天花板元素。(鼓掌)
General office planning strategy takes into account the issues of flexibility and adaptability, designed in the scope of shell and core design. The carpark levels, lobby space and circulation core together with minimum amount of common restrooms were completed with simple finishes of optimum budgets. Large amount of exposed concrete and use of partial suspended ceiling elements, together with a simple local stone on the floor are the main materials used. The rest of the office floors were finished as a simple naked grid structure, to be equipped with raised floor and dry wall structures. Concrete surfaces were finished in a quality that once again encourages the tenant to keep it as exposed or with partial ceiling elements.
© Thomas Mayer
(Thomas Mayer)
根据建筑材料、照明和机械系统的最新技术,该建筑具有最大的节能设计。三维变制冷剂容积(VRV)系统和热回收式暖通空调(HVAC)机组使其达到高效率水平,与同类建筑相比达到40%的节能水平。该建筑配备了最大限度的冷却/加热和基于层控的三管VRV系统和强化新鲜空气循环新鲜空气单位。再生电梯自己生产电力,安装节水型电器和固定装置,使用LED和T5照明装置节约能源,
The building has maximum energy efficient design based on the latest technology in building materials, illumination and mechanical systems. The 3D Variable Refrigerant Volume (VRV) system and heat recoverable HVAC Units help it to reach high efficiency level, aiming to reach an energy saving level of 40% compared to buildings with similar features. The building is equipped with maximum cooling / heating and story based control with three tube VRV system and reinforced fresh air with recycling fresh air units. Regenerative elevators produce their own electricity, water efficient appliances and fixtures are installed, energy saving is provided by the use of LED and T5 lighting fixtures,
© Thomas Mayer
(Thomas Mayer)
在施工过程中,现场的位置对材料供应有好处,以及它与公共交通的接近程度;步行几分钟就能到达公共汽车和地铁。最后,该项目试图在地面水平上创造一个城市孔隙度,如项目说明文本所述,而不是在整个社区中作为未来考虑城市进入和社区使用的种子的地区其他地方。
The location of the site had benefits of highway access for material supply during construction as well as its close proximity to public transport; bus and metro that are a few minutes walk away. Finally, the project tries to create an urban porosity on the ground level, as described in the project description text, as opposed to the rest of the district that would behave as seeds for a future consideration of urban access and communal use throughout the neighborhood.
Architects EAA - Emre Arolat Architecture
Location Istanbul, İstanbul, Turkey
Category Skyscrapers
Architect in Charge Emre Arolat
Area 31850.0 m2
Project Year 2014
Manufacturers Loading...
客服
消息
收藏
下载
最近





































