查看完整案例


收藏

下载
1场 域
“阳澄湖美,巴城蟹肥”, 以出产大闸蟹和美景而闻名的阳澄湖畔,宁静的环境和美丽的风光,可以告别都市的尘网,在此布置一处度假酒店再合适不过了。
本案场地为70X200米的狭长形状,短边朝向阳澄湖打开。一面是优美虎鲸,三面是居住小区,至此我们思考的是设计应该融入环境而不是再造幻境,希冀以建筑为媒介唤起人与原始自然的共鸣。
▲场地环境
2在 地
不同于常规与历史文脉呼应的在地性研究,酒店设计遵循“尊重自然环境,融合场域气质”的宗旨,通过在地化建筑营造,实现自然与人文的连接与共生。
一是建筑与场地的尺度关系,离散形小体量的空间布局,不会让酒店这位后来者成为阳澄湖以及周边居民突兀背景的存在,二是选用更具亲和性及自然的建筑材料,三是含蓄的通过三段式立面语汇的转译,与周围法式建筑形成微妙相融的关系。
3表 情
常说“建筑是凝固的音乐”,二者美的共性说的就是韵律之外的节奏感,恰如建筑立面的语汇。本案中将动态的节奏关系与静态的比例关系相结合,取译于徐徐展开的屏风,上中下三段分别采用不同比例及旋转角度的立面构件的阵列及组合,呈现出不同程度透明性的表达。深灰色铝板反坡屋檐,使得建筑更加轻盈,释放出围合式布局的拘谨感。
▲剖立面图
公共半私密是个人室内生活与周遭环境的连接与罅隙,更是将自然美景引入室内的窗口。本案中每间客房,大面积的落地窗将自然光线和美景引入室内,亲近自然、简朴生活。
面向西侧阳澄湖,“落霞与孤鹜齐飞,秋水共长天一色”,为避免西晒成为欣赏美景的搅局者,设计通过阳光的分析,将立面构件进行恰当角度的旋转以及选择合适的尺寸,提供了一处美景欣赏的完美窗口。
▲光线分析图
4
院 居
面对狭长的场地和周边被法式合院建筑所围合的不利干扰,设计取法于传统园林,以小见大。借空间的层叠与递进,营造一方静美怡人的庭院空间。通过三进院落的层层铺垫与引导,最后面向自然湖景喷薄而开。
▲景观
分析图
在底层,通过迂回的景观连廊将动线围绕内庭院循环,两进院落中间布置的是庭院餐厅,宛如传统园林中的“榭”,是一个连续的通透空间,是景色和庭院的延伸。落入夜晚,这是又一个温暖宽敞的场所,泳池派对和休闲游园都围绕着它展开。在折扇般的立面中,透着温馨的灯光和活动的人影,成为了空间的中心。整个场景既裹挟着度假酒店的放松,又不失居家的温暖。
虽然,阳澄湖畔从来不缺各形各色的酒店,但昆山玫瑰园酒店在充分尊重场地的前提下,用冷静的手法与恰当
的建筑语汇,
勾勒出“君子如玉,温润而泽”的独特气质,构
建出令人耳目一新的酒店居住环境。
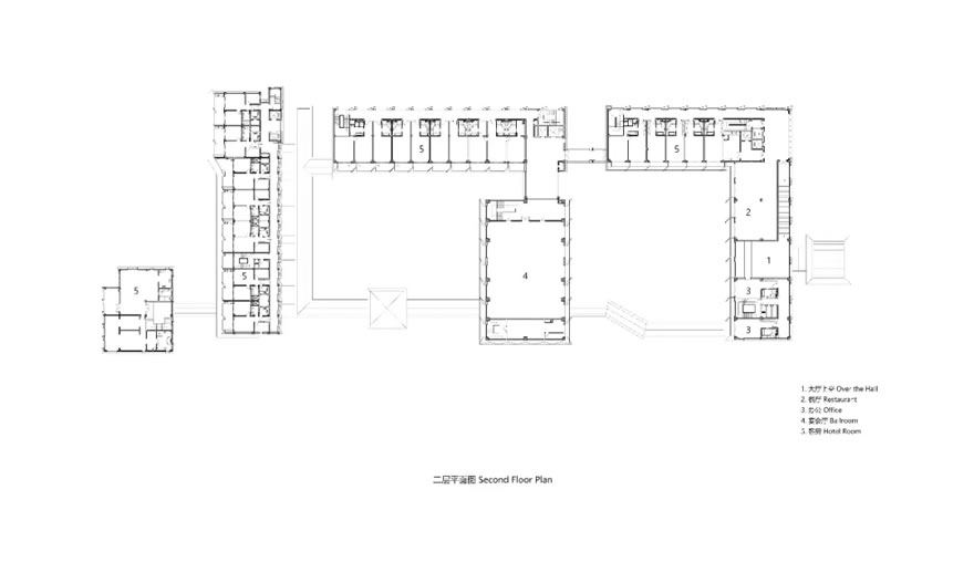
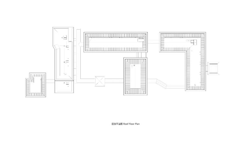
相关技术图纸
建筑设计:GLA建筑设计项目地点:江苏昆山建筑面积:84018平方米完成年份:2019建筑摄影:建筑译者姚力
客服
消息
收藏
下载
最近





















