查看完整案例


收藏

下载
梦想·麓隐桐溪
中国·长沙
设计伊始,建筑师不仅仅只关注于建筑本身,更注重环境场所属性,通过不同时段的现场调研,我们发现展示区所处的十字路口及整个外部环境比较杂乱,且各种车辆和施工噪音嘈杂。我们希望创造一个内向型的建筑,即是功能和空间的载体同时又承担隔绝外部嘈杂环境的屏障,从而营造内部静谧的场所空间,使人“不出城廓而获山水之怡,身居闹市而得林泉之趣”,达到“虽由人作,宛若天开”的艺术境地。
△ 概念手绘图 01
取静于市·枕山栖谷
-项目背景-
麓隐桐溪位于大王山旅游度假区,紧邻河西南北发展主轴线,是未来城市西南扩张的主要片区,新城核心,发展潜力巨大。项目毗邻湘江欢乐城、华谊兄弟电影小镇、恒大文化旅游城等大型文旅项目,狮峰山森林公园环抱,形成宜居、宜业、宜游的山居大宅。
基于场地及城市道路条件,东侧潭州大道为城市快速路,连接主城区,地块东北角成为展示中心和前期体验区的最佳城市接驳点和人流导入点。
02几何美学·空间探寻
-设计概念-
我们要做的不是一个单纯为了售卖行为而生的建筑,而是贯彻工艺美学理念打造的一个精神场所,需要极具昭示性的形象引发关注。示范区以建筑界面与场所空间的联合打造作为设计切入点,用极具雕塑感的建筑形体来界定空间,重塑环境、建筑与人的角色关系。
△体块生成图
建筑形体利用几何构造的美学理论,面向十字路口方向升起,沿城市方向形成线性变化,打造独特的城市印记。以三角形为母题做出几何变化,让建筑形体与场地环境形成较为犀利的几何构图关系,在有限的场地之中营造静谧且丰富的空间游览体验。对外界面只保留功能上必须的通透区域,对内界面大面积使用玻璃幕墙,使得内外空间相互渗透。
我们希望在展示区打造一种空间序列,让游览成为一个愉悦的探寻过程,以场景叙事的线索串联“隐”的完整故事,诠释其东方自然山水的哲学韵味。
△展示区流线串联图
序曲——通过具有标识性的建筑形象结合前场树阵景观引起人的好奇心,树林阵列、洁白小径,隐匿展示建筑,抵御外界喧哗。
铺垫——具有神秘感的入口空间让人忍不住想进去一探究竟,狭长连廊将游览视线限制在一定范围内,让游览者进入建筑与景观界限模糊的空间。
高潮——从入口空间出来进入冥想室前,会突然豁然开朗看见整个内院的全貌,“静谧后院”是建筑内外交融的空间,建筑洞口与外部庭院映衬,形成框景。
尾声——冥想室的萦绕路线,从各个角度浏览建筑,感受环境氛围。
隐是哲学,是境界,也是一种生活方式。以现代的设计语言诠释隐之道,隐之境,空间对话自然,置身其中,与山麓、桐林和溪谷一同呼吸、成长、演变。精神场所的塑造本身也是隐的追求,迎合案名梦想麓隐桐溪,以修行的方式追求“隐”的精神内核。
03 溯本归源·心归自然
- 材料与调性 -
通体发泡陶瓷幕墙与横纹拉毛涂料的结合,填缝用热膨胀系数小的瓷砖胶,与少量的玻璃元素穿插,目的就是为了打造成一个不设分缝纯粹的建筑,使建筑本身形成尖锐、简约又极具昭示性几何形态的造型。
通体灰白色的横纹拉毛涂料给建筑赋予更为自然厚重感受,甚至将这种材质延伸至建筑内部,来营造建筑向室内的空间延续,使得建筑更为整体。
04精工建造成就品质项目
-精细化设计-
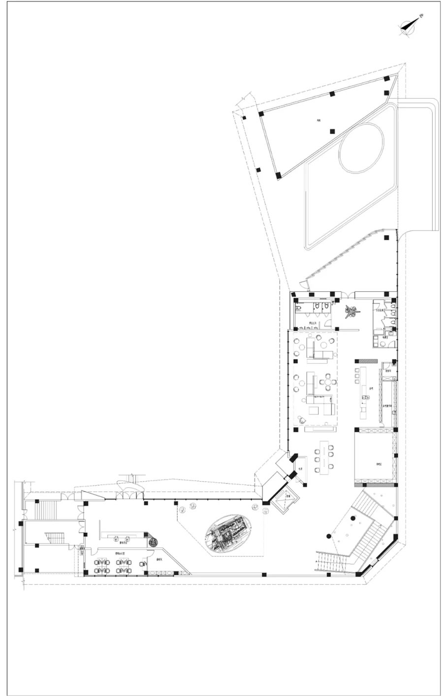
△一层平面图
△二层平面图
△北立图
△剖面图
△典型墙身
项目信息
项目名称:长沙梦想·麓隐桐溪
开发商:湘江集团梦想置业
建筑设计单位:基准方中建筑设计有限公司
示范区建成时间:2020.08 月
项目总建筑面积:352291.98㎡
示范区建筑面积:1195.57㎡
项目地点:长沙市潭州大道与清风路交汇处
主创设计团队成员:邢春辉 邓天驰 饶文超 邝林峰 陈禹熙
景观设计:易兰(北京)规划设计股份有限公司
室内设计:深圳市中深建装饰设计工程有限公司
摄影:埃比尼泽(上海)文化传播有限公司
客服
消息
收藏
下载
最近






































