查看完整案例


收藏

下载
↑建成环境的综合品质创新提升点击关注我们
△力波建成鸟瞰
项目概况
Project overview
上海力波啤酒厂旧址位于上海闵行区梅陇片区,总占地约 8 公顷,1987 年投产下线的力波啤酒是沪上最早的合资啤酒品牌,随着时代的发展现生产功能已迁走。用地中有河道穿过,将用地分为东、西地块。
△改造前场地鸟瞰
在整体规划中,东地块被定为为闵行区城市名片,业态为商业办公综合体;而西地块则采用城市更新的方法,改造成文创办公园区。2019 年,竖梁社对西地块包含干煤场、锅炉房、麦芽车间、仓库、工作楼等在内的建筑景观进行改造。
△西地块原貌
西地块的设计与东地块是互补关系,即在焕然一新的城市更新过程中保留“怀旧”“温情”的片段,在国际大都市的华丽中穿插民族工业的回忆,让项目整体的体验就像好的啤酒味道一样,有丰富的层次。
设计思路
Design ideas
两区+两轴+点式规划布局
项目整体以 9#号楼北侧道路以北为商业北区,共四栋建筑和一座工业烟囱;以南为办公南区,由 5 栋组合而成的大体量建筑。南北区通过贯通南北的轴线相连,南区办公区则顺应东西两地块的流线关系以东西轴线贯穿。整体呈现十字形空间结构。沿着南北轴线周边提供大量不同尺度的共享花园公共空间,充分利用大面积的屋面打造成为宜人的空中花园。
△总平面图
设计一方面优化了各功能模块之间的联系,解决消防疏散等问题;另一方面他们自成体系,围合出活动广场,延伸为观景平台,甚至打破室内外边界,模糊了公共和私密的绝对界限。
△轴测图
△空中连廊系统
我们希望改造后的园区能从市民体验上实现曾经的广告语:“因为力波,爱上上海”。场地的处理也本着“绣花针功夫”的原则,尽可能多的保护原有的工业厂房、设备,为上海守护珍贵的记忆片段。
对工业遗产的保护和活用
啤酒厂留存的工业遗产承载着上一代人的青春记忆,如煤棚、烟囱、锅炉等有明显的独特的风貌价值,同时建筑风格具有上世纪 80 年代海派工业风建筑的特征。项目在保留原有框架的前提下,对整体进行了修复和改造,保留老建筑的立面肌理、质感,建筑轮廓线,将耐候钢板这一具有力量感与岁月感的新元素注入,打造极具厚重感的工业园区风格,同时以现代简约的手法处理新元素形成新旧对比。
△场地原有独特的工业风貌
△精酿体验馆正立面
原本的锅炉房一楼被改造成精酿啤酒体验馆,大片裸露的红墙、水泥立柱和老式工业管道,原有的建筑风貌和器械设备为工业复古的氛围打下了优秀的底子。
△精酿体验馆内部
麦芽筒仓则改造为多元创意空间,承载着婚纱博物馆、展览中心、沙龙多种活动。仓体沿竖向刷灰白两色质感涂料,延续仓体本身竖直挺拔的形态,使筒仓在园区中有着十分特殊的地位和形象。且筒仓顶端结合原有建筑的形态对外打开,成为可以鸟瞰整个园区的观景平台,具有独特的视觉观赏体验。
△麦芽筒仓改造前
△麦芽筒仓改造后
多元业态的复合使用
在产品设计上,充分考虑项目定位及业态后续的复合使用,项目地处闵行成熟商圈,并且已有商业综合体规划,所以业态不仅提供基本衣食住行常态需求,更希望针对不同兴趣爱好的小众人群,达到专程且可驻留的目的。
△更新后的力波园区
力波先天独特的大平台以及保留的历史文化气息对城市人群有着天然吸引力,我们在这些灵活的公共空间上,结合啤酒精酿的生产流程及园区的步行流线,打造极具特色的啤酒花园主题系统。
喜欢自由与随性的人们可以随时漫步这里,休憩、交流、创作、分享…是工作也是生活。
△ 啤酒花园主题
系统
△屋顶花园系统
设计上通过灵活的微改造方式,保留场地多元性与空间灵活性,为后期不同业态的引进提供可能,从功能单一的车间厂房,向现代多功能空间进化,满足承载企业办公、商业、展示需求,并且赋予项目“文化创意”主题,引入具有文化生长力的创新业态,成为园区其他办公和商业的有效和差异化补充。
△丰富的空间应用
△现代化的内部办公空间
△办公区建筑立面
△展示性办公中庭
△旧筒仓与新的办公空间
人本主义原则
本项目的天然环境—开阔、私密、安静、慢时间,是个能够缓解压力的地方。
上海历史悠久的力波啤酒厂,虽经城市快速变迁,然而却难得保留一个闹市中的后花园。在这里,没有闪耀着反射线的玻璃大楼;没有让人窒息火辣的摩天楼宇;没有到处散发机械气息的钢筋水泥。在这个地方,只有绿树成荫、低矮的楼宇、散落和隐藏各处的工业记忆。
△后街
整体尺度设定、环境设计以人为本,重视使用者身在其中的体验感受,通过宏观层面上的总体规划,与微观层面上的具体细节设计相结合,强调人性化的规划设计原则。
结语
conclusion
上海力波啤酒厂改造成为上海首个零星工业用地转型成功的项目。在更新策略上,采取保留改造和拆除重建的方式,既留存了城市历史文化记忆,又形成了“新”与“旧”的碰撞。期待看到力波更精彩的未来。
△设计手稿
△从办公屋顶平台看向南北轴线和精酿体验馆
技术图纸
Technical drawings
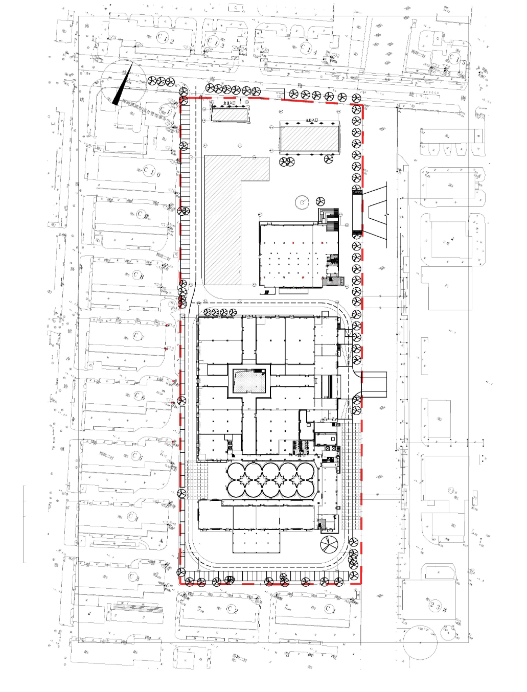
△一层总平面
△啤酒博物馆北立面
△42 栋北立面
△42 栋剖面图
项目信息:
项目位置 |Location:上海市闵行区|Minhang District, Shanghai
业主|Proprietor:深圳市深城投商业经营有限公司
|Shenzhen Shencheng Investment Commercial Operation Co., Ltd
主持建筑师|Design Director
朱志远、宋刚、钟冠球| Zhiyuan Zhu,Gang Song,Guanqiu Zhong
方案设计团队 | Project Design Team
伍荣娟、段哲、张铭添、谢冠杰、高琛、张佳然、姚晨、郑卓威、李文炎| Wu Rongjuan, Duan Zhe, Zhang Mingtian, Xie Guanjie, Gao Chen, Zhang Jiaran, Yao Chen, Zheng Zhuowei, Li Wenyan
结构设计团队 | Structural Design Team
竖梁社钢砼工作室| S&C DESIGN
合作设计单位 | Cooperative design Team
日清设计| Lacime Architects
用地面积 | Plan area
23774㎡
建筑面积 | Architect area
23000㎡
设计时间 | Design Period
2019
完成时间| Completion time
2020.12
摄影 | Photographer
余润、张光伟、戴伯威、日清设计| Yu Run,Guangwei Zhang,Bowei Dai,Lacime Architects
END
86 166 7677 3437(招聘)
传真:+86(0)20 3863 2956
地址:广州市海珠区唯品同创汇黑盒子社区
客服
消息
收藏
下载
最近



































