查看完整案例


收藏

下载
前言
公路旅游,作为一种新的旅游形式,实现了公路与旅游的融合,使公路本身成为一道风景线,也推动了沿线乡镇发展旅游观光产业,充分发挥了经济廊道的拉动和辐射作用。
驿站,作为古代供传递军事情报的官员途中食宿换马的场所,经过几千年的演变和当代旅游业发展的影响,功能逐步扩展,被赋予全新的含义。驿站的建设,不仅完善了旅游公路的服务配套功能,而且主题各异,成为彰显本土特色风貌、传承弘扬在地文化的重要窗口。接下来,我们将陆续和大家分享“旅游公路驿站”的设计案例,本期推出【溧阳 1 号公路的黄岗岭驿站】。
居游共享型节点
黄岗岭驿站
黄岗岭驿站的规划设计遵循“居游共享”的理念,充分考虑了当地村民日常休闲、村委议事、公路管理与游客服务的协调关系,能同时满足村民和游客的需求,并强调各类设施在尺度、体量、风貌上注重与周边乡村整体环境协调,达到“居寓于游、游融于居”的和谐效果。
黄岗岭服务驿站是位于溧阳 1 号公路南线上的“二级驿站”,南线又称竹海大道,是溧阳市区通往南山竹海景区的主要旅游通道,全长 7.4km。
区位图
基地现状为黄岗岭村村委和 1 号公路养护单位,现有建筑 414㎡,建筑整体风格与环境契合度差,功能单一,无法满足二级驿站的需求;现状黑色路面和建筑立面色彩沉闷、景观效果不佳,场地功能不完善、空间失活。
基地现状图
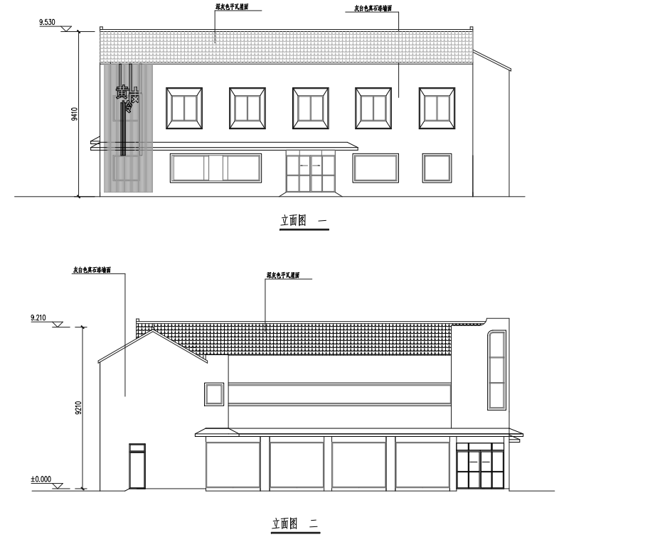
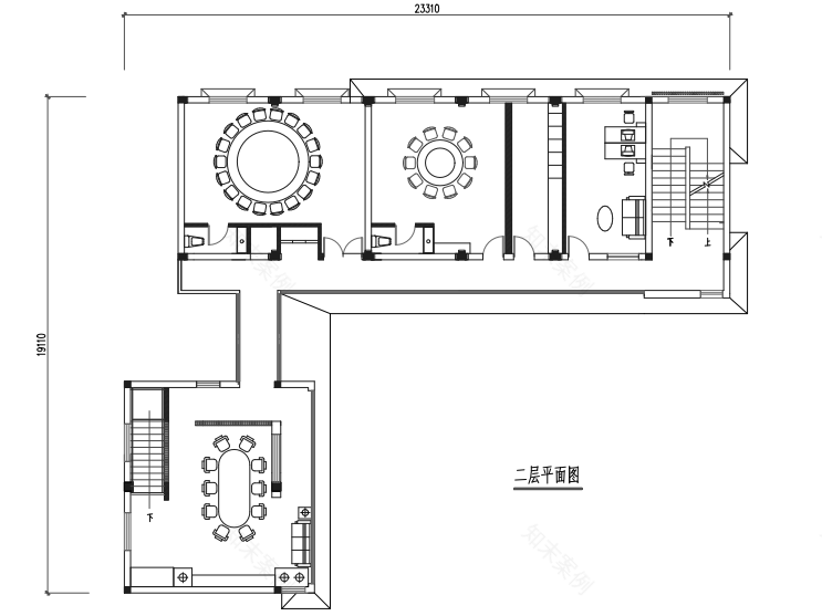
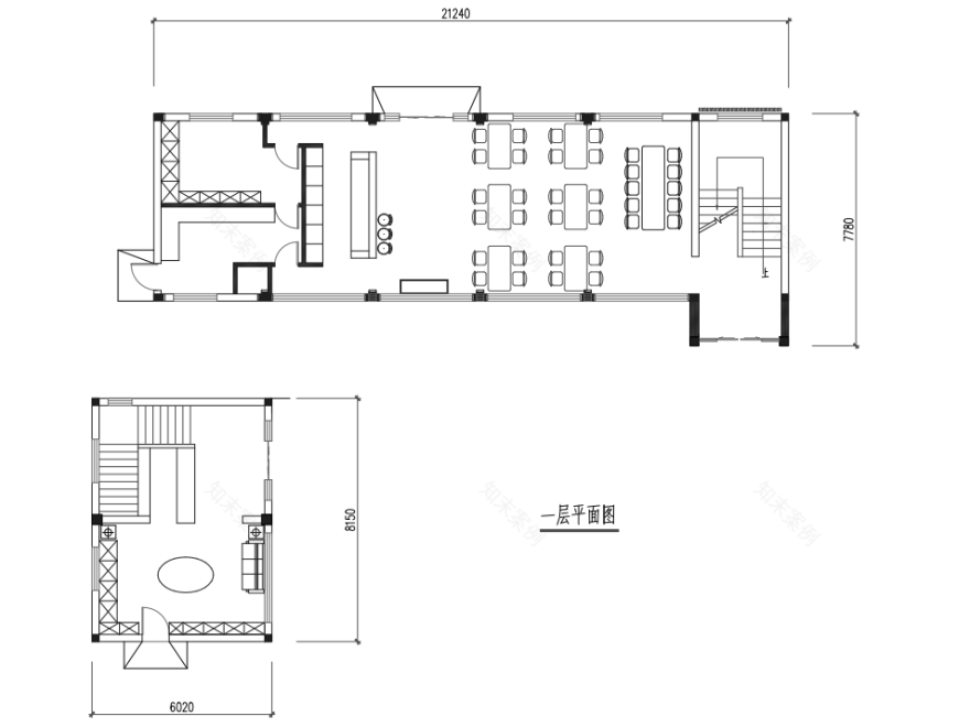
驿站设计以钢板和岩石等材料与环境自然融入,场地以彩色流线划分并强化功能空间,根据二级驿站的功能需求,在现状场地导入复合功能,进行合理分区,进一步梳理交通流线,使黄岗岭驿站成为溧阳 1 号公路沿线一个功能复合、居游共享的特色驿站。
设计平面图
驿站入口
从 1 号公路提取亮色彩虹元素,形成多彩的地面指引系统。
改造前↓ 效果图→
改造后↑
改造后↓ 效果图→
驿站内庭
综合服务中心
保留现状建筑中的办公功能,置入餐饮和特色商业等功能,形成综合性的服务中心,满足自驾游客中的青年群体和家庭群体的需求的同时,也为周边村民提供便捷服务,可实现村民议事厅、党群服务室、妇女儿童关爱、健康监测、公路养护管理办公室等功能。
改造前↓ 效果图→
改造后↑ 改造后↓ 效果图→
设计图↑
新建厕所
新增建筑 83㎡作为公共厕所,进一步提升了二级驿站的服务供给能力。
改造前↓ 效果图→
改造后↑
改造后↓ 效果图→
改造前↓ 效果图→
改造后↑改造后↓ 效果图→
改造后↓ 效果图→
黄岗岭驿站目前正在运营筹备中,敬请期待!
近年来,国家全面实施乡村振兴战略,大力推动文化和旅游产业深度融合、优化升级。亦境团队联合上海交通大学设计学院风景园林研究所,积极把握市场契机,以满腔热忱与开拓创新的先锋精神,不断拓展“文旅与美丽乡村设计”业务板块,完成了一批具有引领、示范性的精品。多个文旅融合、农旅融合、交旅融合的美丽公路与风景道项目成为旅游网红目的地,引领全国交旅融合的美丽公路建设,先后获得上海市优秀工程勘察设计一等奖、国际风景园林师联合会(IFLA AAPME)荣誉奖、中国风景园林学会科学技术奖规划设计奖二等奖等荣誉。
【项目档案】
项目名称:溧阳 1 号公路黄岗岭服务驿站景观提升
项目地址:江苏省溧阳市戴埠镇黄岗岭村
业主单位:溧阳市农村公路建设指挥部
设计单位:上海亦境建筑景观有限公司、上海交通大学设计学院风景园林研究所
设计时间:2021-2022 年
项目规模:3445㎡
Copyright:亦境建筑景观
亦境招聘
建筑方案设计师 / 助理、实习建筑设计师 / 景观方案主创设计师 / 助理景观设计师 / 工程预算员……(点击链接了解详情)
地址:普陀区中江路 388 号国盛中心 1 号楼 3001 室
邮编:200062
联系人:苏小姐
关注 上海亦境
客服
消息
收藏
下载
最近






































