查看完整案例


收藏

下载
地下室客餐厅,这里是缓慢、是舒展。去除了繁杂无意义的装饰,简洁的体块之下,内敛与细节便凸显了起来。清晨五点的阳光,灯火可亲的夜晚,我知道这是最好的选择。
本案所在地位于福州亲水别墅群内,环拥洞江。设计以空间中流动的光来诠释生活的节奏感,简洁留白的体块、内敛沉稳的材质,去呼应在城市节奏快速的日常里, 居住者能回归心灵的居所,规避城市喧嚣,去寻求精神内核,既是远处的江水,也是近处的人。
地下室入户,以光为引,以框景绿意为延伸,渐入佳境。
地下室客餐厅,这里是缓慢、是舒展。去除了繁杂无意义的装饰,简洁的体块之下,内敛与细节便凸显了起来。清晨五点的阳光,灯火可亲的夜晚,我知道这是最好的选择。
会客厅,通过恰如其分的块面造型,材质肌理间的明暗对比,去营造素雅明净、温润内敛的空间氛围。搭配家具花艺,描摹生活的温度、本真。
餐厅,去淡化设计的痕迹,尽可能地去承载生活,回归最基本的关乎生活的本质。
楼梯与过厅,空间中流动的光,楼梯呈螺旋式的上行,光影斑驳地映照出建筑的植物;时间是流水般的湍急,是光阴飞箭似地穿梭,但此刻,我希望它慢下来。
书房,如果说舒曼的钢琴曲是细腻的音乐表达,那内敛而不虚华外烁的空间就是他们的联动。沉浸的音乐,内敛的空间,是对现实世界的遗忘。
卧室,延续简素的空间氛围、布艺、家具,尺度与触感亲近且舒适。
漫漫暮色裹住了屋舍,这暮色属于昨天、属于今日、滞留不去。
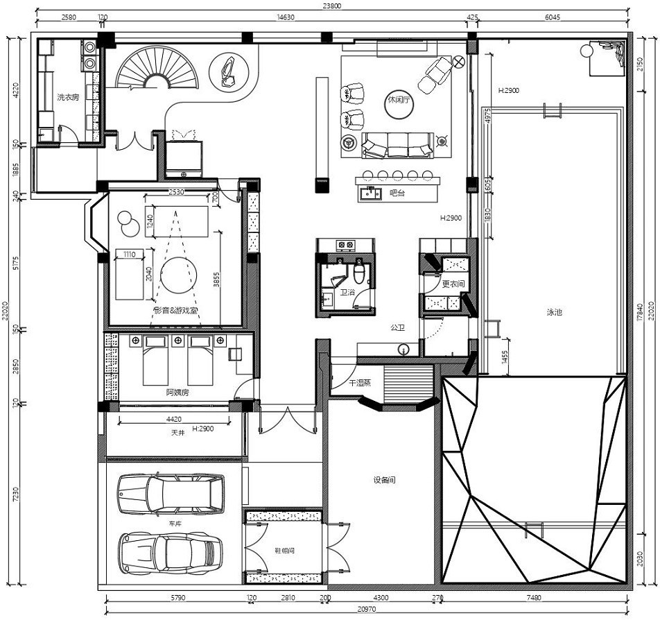
▲地下室平面图
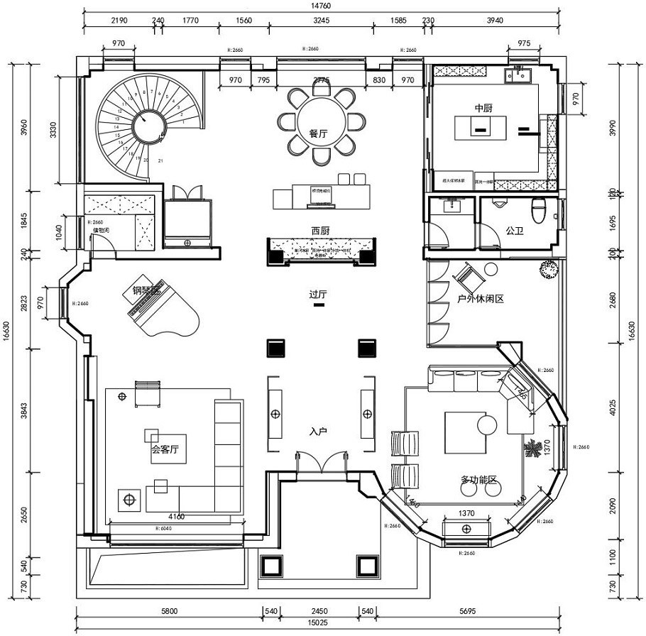
▲一层平面图
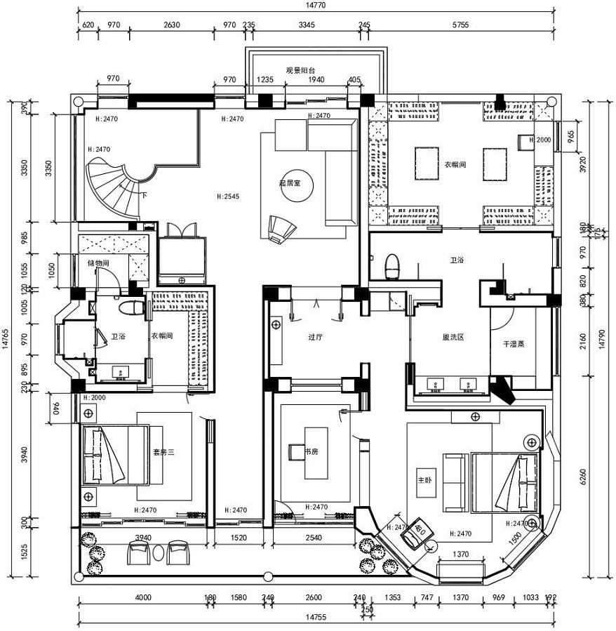
▲二层平面图
▲三层平面图
项目名称:凝结的此刻
室内设计:十上设计 | 陈辉
软装设计:十上设计 | 廖小燕,林滢
项目地点:中国福建
部分品牌:lema家居、远步国际、凯乐福玻璃·金属、旭格·鼎坚门窗、中净地暖、百玛地板
摄影师:视方摄影 | 翱翔
项目撰文:十上设计 | 陈鸿妮
客服
消息
收藏
下载
最近
















































