查看完整案例


收藏

下载
曾经的梦想是如何一步步偏离我们的生活
我们都曾拥有一个共同热爱的东西,就是摇滚。然而现在老孟在创业做饮品,我在创业做设计。我们都梦想过组建一支伟大的乐队。
然而,
业主和我一样现在都不以音乐为生活收入来源,音乐最终也没有成为我们引以为豪的事业。业主有业主的事业重心,我有我的。但是摇滚作为我们青春时期最为热爱的事物,提供了摇滚特有的独立和自我的意识启蒙。这在以后的生活和工作中都起到了至关重要的作用。
但是音乐最终不再像以前离我们那么的近了。
现在我们都有各自的生活重心,各自独立的生活圈子以及工作。曾经的梦想已经被挤占到越来越边缘。因此在第一次提案中,专门经营了一个安放吉他的位置。这个位置像卡洛斯卡帕的墓碑一样具有几何的仪式感,但位置却在整个平面中的角落。我希望和我们生活一样,虽然音乐已经不在成为我们生活的中心,但是以前的梦想还是需要有一个安静的位置使其偏安一隅,因为,音乐曾经是我们青春时期最为炙热的梦想!
偏安一隅的吉他陈列
使用几何营造一个祭奠“吉他”同时也是缅怀以前梦想的“纪念碑”
吉他纪念碑来衍射出整体空间格调和氛围
因此整个空间开始的时候是从吉他的“纪念碑”开始的,我希望在角落中有一个盛放吉他的装置。像宝盒一样藏在我们内心之中,尽管吉他已经不是我们生活中最为重要的支撑了。
整个空间的体量关系也从这个点开始出发延伸到客厅以及餐厅。而起居空间作为有具体使用目的和功能,因此会减少这种仪式感,更多的状态是舒适。
突出舒适和精致的起居室
因为业主也是一个吉他手,因此自然很喜欢我的创作思路。但是!
最终作为客厅延申的休闲区域,被否定了!现在回头来讲述一下整个项目的背景。业主是山东人,父母不在南京。因此父母需要一个固定的房间作为起居。虽然综合娱乐室可以作为老人以及朋友和亲人的居室,有推拉门作为隔断以及沙发床作为起居。但是业主父母依旧坚持要一个隐私很高的起居室。同时孟宅也是一个品质不错的江景房。因此购买成本较大。业主父母要求这座房子必须就是一个三室两厅,因此彻底否决了休闲区域的设置。因此之前苦心经营的盛放吉他的位置不复存在。这里并不是口诛笔伐上一辈的要求,只是特别感慨这个变故和的生活多么的相似!我们有多少人是因为长辈或者其他巨大的因素诱导我们放弃了我们曾经挚爱的事物或者人啊。最终项目彻底修改,那个吉他作为出发点已经彻底沦陷。最终安放我们青春的记忆的位置被其他生活的方面挤占掉了。这些都和我们的生活是多么的相似!吉他的墓碑没有了,梦想也渐行渐远,曾经挚爱的人也没有走到最后。这里吉他只是一个代号,其意指范围能达到几乎我们所有人。最终空间呈现的状态依旧美观,只不过,如同原研哉所云“漂亮的独角仙再也回不到幼虫时代了”
空间完成后的效果1
空间完成后的效果2
空间完成后的效果3
空间完成后的效果4
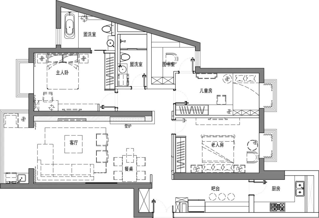
最终平面布置图
预告:梦想家三部曲第二部《漫画家之宅》
业主喜欢漫画,尤其喜欢海贼王,同时收藏了各种手办以及漫画书,因此设计了一个属于业主自己的漫画博物馆!
客服
消息
收藏
下载
最近


















