查看完整案例


收藏

下载
项目概述
展示中心导引出生活本质的思考,从生态环境接入室内空间出发,启示着不可或缺的生活能量。
整体室内空间构思以园林绿化及生态角度出发。水是生态之源为主题。
重构
“
形
”
随机能;将具有信息化的商务区域连接着绿化交流区域以对称性矩形作格局。规划上首要改造場地及優化建筑條件不足下的空間动线,改造入口位置,并增加商业展示手法的园林式橱窗设计,附LED屏与街景相融合。
重构内部的二重结构;我司领导
林伟而
先生一次去工地现场,一瞥前方货车上满载的水管,从而得到灵感,把水管用作设计的选材继而研展及提炼出设计手法。
首先不以传统实墙来区分空间,尝试以学术性角度探索墙体的可能性,以点阵列序出纵向玻璃纤维管来区分空间,管与管之间以等分比例划分出多个情景交换的空间互动对话,管状墙体层层迭加使之为内部的二重结构; 同时,管状墙体相互产生趣味性观察的张力,巧妙地突破传统实墙固化空间之陋规。
顺沿着生态主题延展出简洁明快、强调质感的设计手段到设计构思不以常规、高价材料作装饰铺设,而是以大面积的朴素暖色调材料结合点状、面状情境光源,导引出生活本质的思考。
静中思动。
所有空间当中同样怀着各具形态呈现的绿化植物(垂直面状、悬挂线状及结合家具)多元化的连贯着空间生活气息。
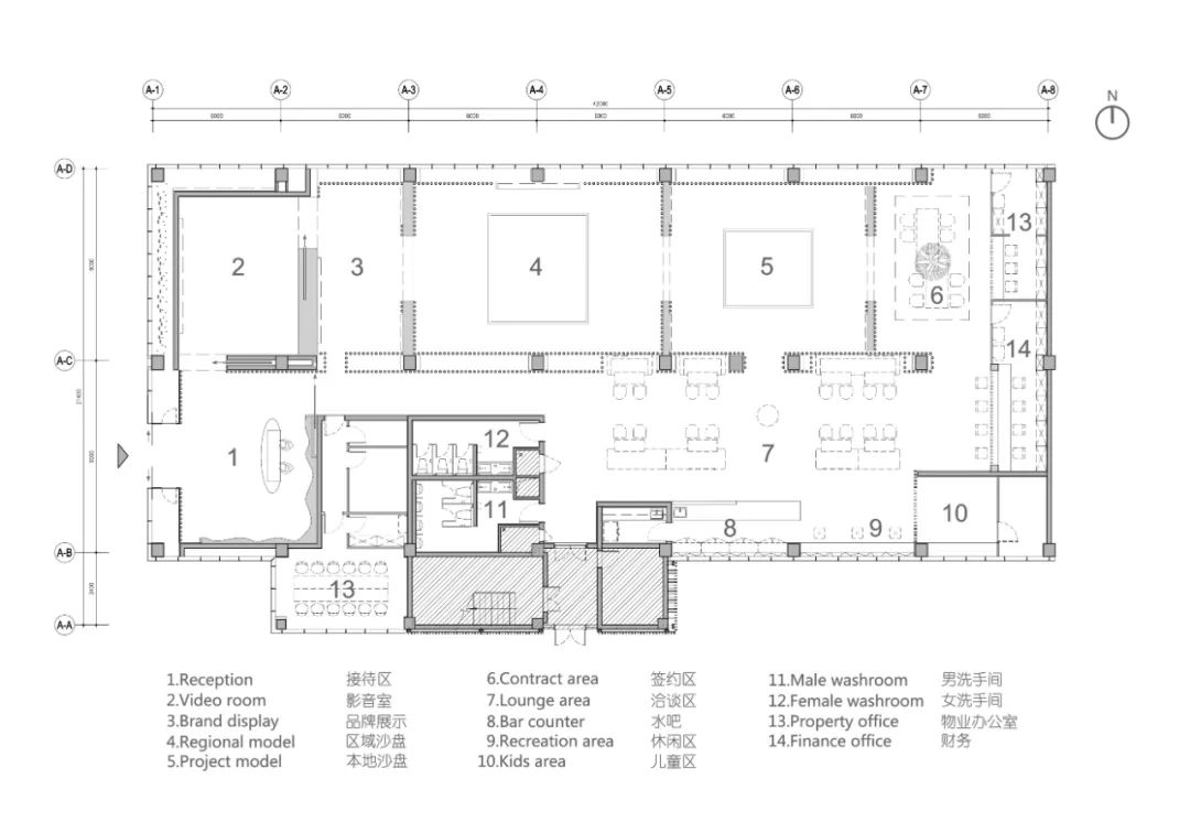
信息化的商务区域 : 接待、影音、沙盘区的管状墙体与镜钢的反射拉伸了空间感, 注重结构统一性且极致纯粹、化繁就简并扭转典型沉闷的销售商务属性,更多的是人与空间的体验。
绿化交流区域 : 洽谈、签约、儿童区,暖色的朴素木纹墙配合矩形水波纹理的镜面吊顶和谐地散发着園林式生活体验之感。
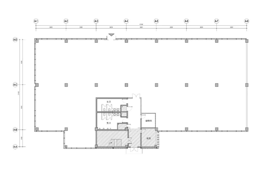
▲原始平面图 Existing
Layout
Plan
▲平面布置图 Layout Plan
▲材料 Materials
展示中心从概观角度看世界,
慢慢地开始察觉生命之规律
,
寻找及遵守自然的基本法则。
Project Information
项目信息
项目名称 / 深圳万科•万致天地展示中心
项目业主 / 万科企业股份有限公司
项目地点 / 深圳市龙岗区东坡路云里Mix
完工时间 / 2020年5月
设计公司 / 思联建筑设计有限公司
Website
/
设计团队 /
William Lim,
Ricky Chung
,
Aking Zhu
,
Ting Lai,
Tim Liu
, Alan Wang,
Hu Yun,
He JingCai, Zhichao Guo,
Jam Li
项目摄影 / 深圳市山和诚文化传播有限公司
软装设计 / 上海澍田空间设计有限公司
照明顾问 / 惠州市西顿工业发展有限公司
消防顾问 / 高力建设集团有限公司
五金顾问 / 多玛凯拔门控系统有限公司
机电顾问 / 筑博设计股份有限公司
CL3 Architects Limited
聯絡我們:
地址 |
香港灣仔港灣道2號
香港藝術中心15樓
電話 |
(852) 2527 1931
傳真 |
(852) 2529 8392
電郵 |
客服
消息
收藏
下载
最近



































