查看完整案例


收藏

下载
项目概述
精致生活品质,以物唯心,重构生活思维。
静凝
缓随园林景观静态水景步入至望林府建筑主入口设置为艺术馆式接待区域,人与空间之首连接载体,故以现代手法处理删减不必要的造型及繁复感官信息,
精致简约排列有序,合适分布造型及多维度灯光效果(墙面、天花以及局部针对性光源),光源变化丰富
了
第一印象空间的独特性。
步于接待区的朦胧光影后驻足在文化区观赏。经过内廊通道
(
浅卡色装饰板与原木色板
)
,简洁光明、曲径通幽,设置两间高私密性之
VIP
贵宾室。
设计上
VIP
室引借层叠的天花来延伸空间感,色彩配置上用静谧的蓝色与暖棕色营造出舒适氛围,方寸间见大天地。
谧稳
中庭位置挑空约
7.5
米高之重点商务信息互动区域,横向式叠层造型充实的包围着中庭空间,仿似连绵山势环抱着安稳吾家。
连接着通往二层样板区的白色石材造型楼梯,巧妙设计为云端般轻盈通透,作感性符号同时有效的不阻碍引光入室。
仁和
中庭位置后方的洽谈区域以低调温和色调设计出发
,
两区之间顺延感官拓展
,
提供多组散座及半私密深度洽谈沙发组合的布置,旁及附设水吧服务台、洗手间和独立财务室,另外以幸福感糖果色调设计的儿童互动区域合理地设置在采光位置。
由中庭至洽谈区有排列合理的建筑柱子,室内设计以视觉差异的设计手法为直向造型且配以壁灯,针对性处理减少柱子的横向粗宽度且有效拉整为拔高之感,增强空间的灵动通透性。
自然
整体装饰材料选型定位在中等饱和度
:
原木色、浅卡色装饰板、暖灰色大理石为主配以稳重黑色石材作点缀及金属收边,控制灯光色温在融和不争的温和米白色。
中等饱和度就是自然本质。
空间价值注重脉络
:
感官延伸拓展、显现迭进有效之取向
;
人与空间产生之层次性美感在有序的变化。
▲
Sketch
▲首层原始平面图 Existing 1st Floor
Layout
Plan
▲
首
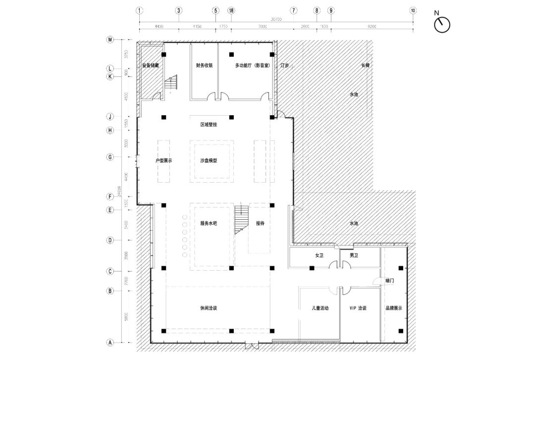
层
平面布置图
1st Floor
Layout Plan
▲
首
层
平面布置图
1st Floor
Layout Plan
▲二层原始平面图 Existing 2nd Floor
Layout
Plan
▲
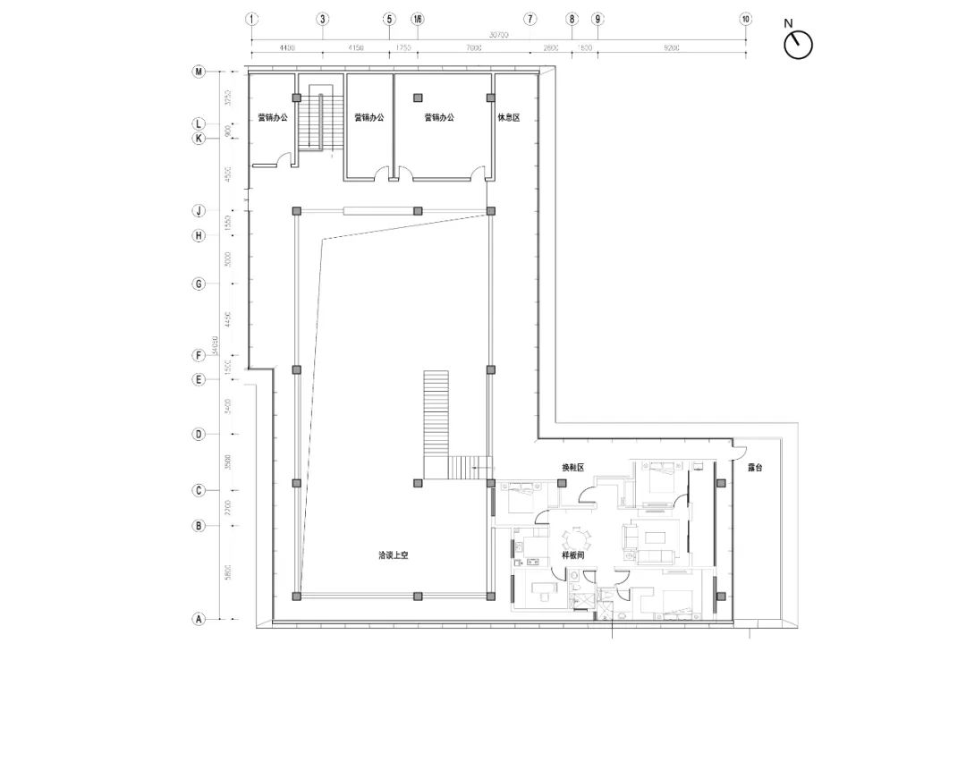
二
层
平面布置图
2nd Floor
Layout Plan
▲
二
层
平面布置图
2nd Floor
Layout Plan
▲
剖面图
Section
▲
3D Rendering
▲
3D Rendering
▲材料 Materials
Project Information
项目信息
项目名称 / 杭州祥符望林府
项目业主 /
禹洲集团
和
宋都集团
项目地点 / 杭州市拱墅区星桥街
完工时间 / 2020年5月
建筑设计 / GLA
室内
设计 / 思联建筑设计有限公司
Website
/
设计团队 /
William Li
m, Ricky Chung, Aking Zhu,
Alan Wang,
Zhichao Guo
,
Hu Yun,
He JingCai,
Ting Lai,
Tim Liu,
Jam Li
项目摄影 / 深圳市山和诚文化传播有限公司
软装设计 / 杭州蓝幄装饰设计工程有限公司
工程
顾问 /
浙江震霆装饰设计
工程
有限公司
照明顾问 / 欧普照明股份有限公司
五金
顾问 /
斯力高五金装饰制品
有限公司
机电顾问 /
美的集团股份
有限公司
CL3 Architects Limited
聯絡我們:
地址 |
香港灣仔港灣道2號
香港藝術中心15樓
電話 |
(852) 2527 1931
傳真 |
(852) 2529 8392
電郵 |
客服
消息
收藏
下载
最近




































